新房热搜 海棠颐和府售楼处电话丨2025 海棠颐和府预约电话/项目地址/项目户型

搜狐焦点慈溪站

2025-10-06 21:19:39

购房群

买房如何避坑,加入购房群,看看他们怎么说

立即进群

海棠颐和府

🚩售楼处电话【已认证】🌈 :400-033-1899转接 5555☑️

🚩营销中心电话【已认证】🌈 :400-033-1899转接5555☑️

🌴温馨提示:本项目采用预约制,前来营销中心请提前拨打400热线电话预约,感谢您的配合🌴

【基础信息】

开发商:三亚亿隆

占地面积:83710㎡

建筑面积:59357.81㎡

容 积 率:0.4

总 户 数:25户

产权年限:40年

停车位:206个(包含酒店停车位)

绿 地 率:50.8%

建筑密度:18.6%

交付标准:毛坯交付

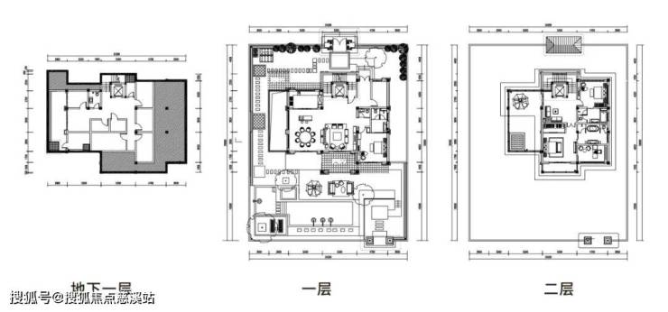
【户型鉴赏】B户型品鉴

地上面积204.85㎡,庭院净面积403-810㎡,占地面积0.8-1.4亩

D户型品鉴

地上面积330.99㎡,庭院净面积767-1826㎡,占地面积1.1-3亩

E户型品鉴

地上面积447.03㎡,庭院净面积564-1051㎡,占地面积1.24-1.97亩

海棠颐和府

🚩售楼处电话【已认证】🌈 :400-033-1899转接 5555☑️

🚩营销中心电话【已认证】🌈 :400-033-1899转接5555☑️

🌴温馨提示:本项目采用预约制,前来营销中心请提前拨打400热线电话预约,感谢您的配合🌴

全部

相关资讯

报名成功
稍后会有专业的置业顾问联系您
返回楼盘

频道导航

返回首页

看房小程序

APP下载

电话拨通后,请您手动拨打分机号

确定拨打电话

电话号码:

分机号:(可能需要拨分机号)