2025(广州)保利天曜(售楼处)首页网站-保利天曜-保利天曜欢迎您-楼盘详情 @售楼处

搜狐焦点慈溪站

2025-06-10 11:26:39

购房群

买房如何避坑,加入购房群,看看他们怎么说

立即进群

广州保利天曜

售楼处电话:400-033-1899转接9999【营销中心】

☎️保利天曜售楼中心电话:400-033-1899转接9999【已认证】

✅户型图丨项目介绍丨最新房源丨周边配套丨售楼处地址丨样板间丨备案价

保利天曜——户型图爆光,保利在天河员村绢麻厂的项目!

最新消息,保利天曜南地块(即大地块)将主打135-205平望江板楼大户型。

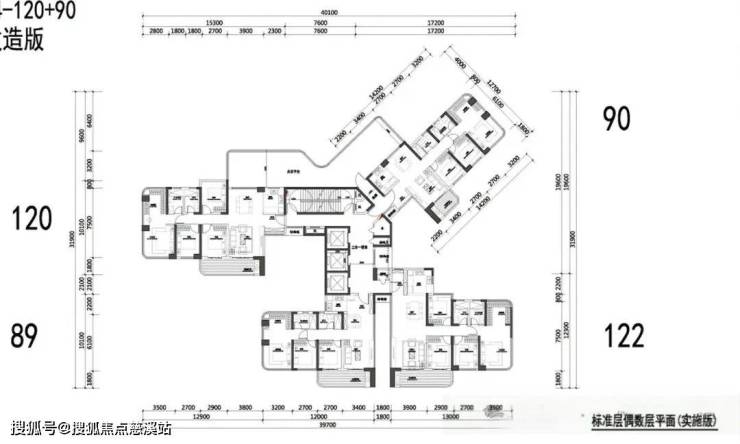
从上图可以看到北地块规划3栋住宅,有2梯3户和2梯4户两种布局。1栋有两条梯腿为90平小户型,还有两条梯腿是120平产品 ,2栋和3栋均为120平。地块容积率3.5,预计建成40层高的超高层。

只有84套的90平户型稀缺,吹风价是8+万/㎡+-,这样算一下7**万+-,对预算有限又想进核心板块的家庭很有吸引力。

保利天曜

北地块90平户型图

1#户型平面图

北地块120平户型图:

南地块(大地块)140平户型:

南地块170㎡户型

南地块205平户型:

✅广州保利天曜

售楼处电话:400-033-1899转接9999【营销中心】

☎️保利天曜售楼中心电话:400-033-1899转接9999【已认证】

✅户型图丨项目介绍丨最新房源丨周边配套丨售楼处地址丨样板间丨备案价

全部

相关资讯

报名成功
稍后会有专业的置业顾问联系您
返回楼盘

频道导航

返回首页

看房小程序

APP下载

电话拨通后,请您手动拨打分机号

确定拨打电话

电话号码:

分机号:(可能需要拨分机号)