成都「俊屹中心」售楼处热线电话|项目最新规划与户型全景解读|实时房价走势追踪|11月限时购房优惠及新政深度解析

搜狐焦点重庆站

2025-11-18 14:41:00

购房群

买房如何避坑,加入购房群,看看他们怎么说

立即进群

【俊屹中心】售楼部热线:028-85558833(已认证)

【俊屹中心】项目客户经理电话:13281850333(微信同号)

温馨提示:为了给您提供更高更好的接待服务质量,看房请提前致电售楼处预约!

【有免费看房车接送服务,如需预约,请致电售楼处】

成都俊屹中心:城市中心的品质生活新地标

在繁华的成都市中心,耸立着一座集商业、办公、居住于一体的综合性地标——成都俊屹中心。凭借独特的地理位置、完善的配套设施和高品质的生活环境,吸引了众多投资者的关注,成为成都楼市中的一颗璀璨明珠。

【项目基本参数】

公寓参数:

总体量:7.4万方

建筑面积:14.22万方

产权性质:商办

占地:25亩

在售楼栋:2#2单元

物业公司:四川景佑物业

物业费用:4.5元/㎡

停车位:机动车位798个,非机动车位996个

2号楼:

面积:37--67㎡

总层高:35层

在售楼层:24楼

层高:3.2米

装修:清水交付

梯户比:5T20户

公摊:34%

交房:2024年4月30日交房

均价:11000-12000元/㎡

是否通气:不通气,带烟道

建筑设计独特,居住品质卓越

俊屹中心由三栋高层商办产品组成,总建筑面积约14万平方米,占地面积约25亩。整个建筑的外立面采用深咖啡色铝板和玻璃幕墙,现代而典雅。项目内部采用写字楼的硬件配置,配备锋速电梯和5.9米挑高大堂,营造出高端、舒适的商务氛围。高层部分则主打精品商业办公和公寓产品,拥有270°转角风景和21米环幕天际视野,让居住者尽享城市美景。

在户型设计上,俊屹中心提供了多种选择,满足不同家庭的需求。无论是25平方米的一室一厅,还是36-66平方米的两室一厅,亦或是9-291平方米的公寓,都注重空间的合理利用和居住体验的提升。项目还配备了全套智能家居及智能安防系统,为业主打造安全、便捷的生活环境。

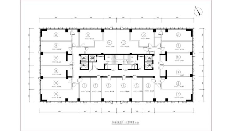
公寓楼层平面图:

2号楼:

投资价值凸显,未来可期

作为成都市中心的综合性地标建筑,俊屹中心不仅具备优越的地理位置和完善的配套设施,还拥有巨大的投资潜力。随着周边商业氛围的不断浓厚和知名企业的入驻,项目的商业价值将进一步提升。此外,项目周边还规划有多个文创项目和高端酒店集群,未来将成为成都新的文化创意产业高地和商务休闲中心。

【俊屹中心】售楼部热线:028-85558833(已认证)

【俊屹中心】项目客户经理电话:13281850333(微信同号)

温馨提示:为了给您提供更高更好的接待服务质量,看房请提前致电售楼处预约!

【有免费看房车接送服务,如需预约,请致电售楼处】

全部

相关资讯

报名成功
稍后会有专业的置业顾问联系您
返回楼盘

频道导航

返回首页

看房小程序

APP下载

电话拨通后,请您手动拨打分机号

确定拨打电话

电话号码:

分机号:(可能需要拨分机号)