成都天府半岛_售楼热线开通_热销户型深度评测_实时房源动态追踪_1月最新楼盘资讯

搜狐焦点重庆站

2026-01-22 17:58:00

购房群

买房如何避坑,加入购房群,看看他们怎么说

立即进群

【天府半岛】售楼部电话:028-85558833(已认证)

【天府半岛】项目经理电话:13281850333(微信同号)

温馨提示:为了给您提供更高更好的接待服务质量,看房请至少提前1小时致电售楼处预约!!!

时隔一年,神盘天府半岛的高层房源,终于来了!

刚刚,天府半岛七期77#取得预售许可证,建面约120-140㎡,精装单价约1.3w-1.5w元/㎡,合计124套房源!

有多少人还记得去年3月的摇号盛况,180套准现房,精装单价1.24万/㎡起,约5.2w组家庭摇号,那中签率,比“985”、“211”录取率还低!

但自那以后,项目三次取证,均为大平层和联排产品,建面约235㎡+,门槛已来到330w,明显不是刚需、刚改的菜!

7期实景

熟悉的配方,还是熟悉的味道。但不同的是,本批次为期房,预计2026年下半年交付!(具体交付时间以售楼部为准哈)

那还值不值得买?今天,通通就大家几个比较关心的问题,聊一聊。

周边配套不多提,感兴趣的小伙伴可查看往期踩盘链接:恒大天府半岛已取证!总价约114万起,1124套房源!

楼高32F、3梯4户,产品更好

了解天府半岛的小伙伴应该都知道,7期产品,大多为2梯5户、3梯6户的48F超高层,建面约90-120㎡套三、套四户型,坦率说,很刚!

本批次房源为7期最后4栋住宅,产品也有较大升级,居住舒适度更高。

根据去年天新官网公布的规划,7期77-80#楼由39-48F统一调整为32层,楼栋高度调整为99.6m,同时增加一台电梯,升级为3梯4户!

同时,这四栋住宅取消了底商规划,首层架空公共活动空间有约993㎡,较之前大幅提升。

7期总平图

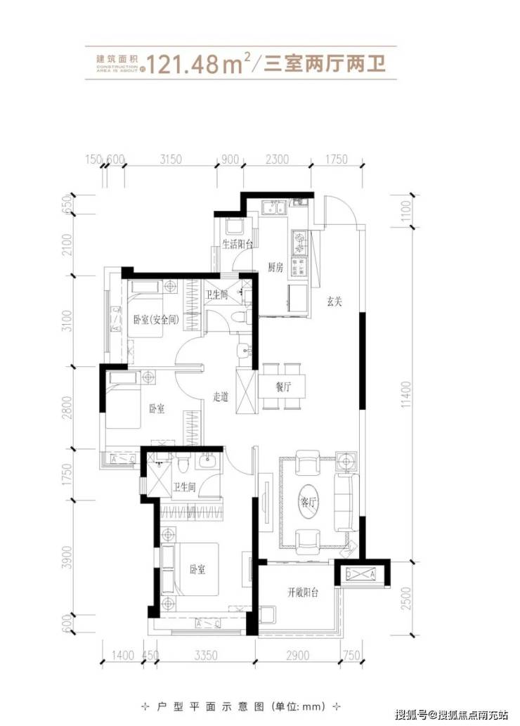
其次,本批次只有建面约121㎡套三双卫、142㎡套四双卫两个主力户型,更偏向刚改、改善,且相对纯粹!

并且,4栋住宅所有户型的主采光面,均朝西南方向,中高楼层只直接俯瞰府河,视野还是挺霸道的。

来,体验下:

天气不好,不怪我哈

不过户型设计上,和之前并无太大差别。

拿121户型来说,竖厅设计、进深超过10m,但开间只有6m出头,阳台只有约2.9m;两个次卧面积都不足10㎡,整体相对紧凑、无太多浪费空间。

功能性是给够了的,但尺度感相对一般!

价格方面,去年3月,6期高层精装单价约1.24w元/㎡起,而本批次精装单价1.3w-1.5w元/㎡,差异不大。

目前,7期紧挨着的三期,今年以来的二手房成交价1.4w-1.8w元/㎡;四期稍高一些,成交价1.6w-1.8w元/㎡。

【天府半岛】售楼部电话:028-85558833(已认证)

【天府半岛】项目经理电话:13281850333(微信同号)

温馨提示:为了给您提供更高更好的接待服务质量,看房请至少提前1小时致电售楼处预约!!!

全部

相关资讯

报名成功
稍后会有专业的置业顾问联系您
返回楼盘

频道导航

返回首页

看房小程序

APP下载

电话拨通后,请您手动拨打分机号

确定拨打电话

电话号码:

分机号:(可能需要拨分机号)