【中港ccpark】售楼部热线:028-85558833(已认证)
【中港ccpark】项目客户经理电话:13281850333(微信同号)
温馨提示:为了给您提供更高更好的接待服务质量,看房请提前致电售楼处预约!
【有免费看房车接送服务,如需预约,请致电售楼处】
位于繁华的成都市锦江区,中港CCPARK是一个集自然美景、商业繁荣和高端住宅于一体的综合社区。这个项目坐落于东二环和琉璃路交汇处,由成都中港置业有限公司精心打造,凭借其独特的地理位置、完备的配套设施和优质的生活环境,成为城市中一颗璀璨明珠。

中港CCPARK坐落于成都市南二环核心地段,紧邻地铁6号线和8号线的换乘站点,周边路网发达,多条公交线路穿梭其间,无论是前往市中心还是其他区域都极为便利。项目不仅坐拥百万方潮流阵地,还连贯东湖、望江、沙河三大公园,构建起城市的绿肺系统,让居民在繁忙的都市生活中也能享受到自然的宁静与美好。
【项目基本参数】
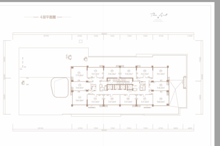
在售面积:47-75平(主力55平)
层 高:4.2米
在售均价:18500元/平
交付标准:清水(隔板未搭建)
总层高:23层
物管:6元/平
物业公司:中港物业
总货源:168套
梯户比:1-3楼为商业,4楼起售
4-13楼:4梯14户 ,14楼:4梯13户
15-22楼:4梯14户,23楼:4梯4户
交房时间:2022.6月30号
公摊:28%
三通情况:通水电不通气(有烟道)
付款方式:全款/首付5成
平面图:
4.2米户型



中港CCPARK的建筑设计同样令人瞩目。项目采用超高层、塔楼等现代建筑形式,结合钢筋混凝土结构,打造出一座座挺拔而优雅的建筑群。项目还邀请了全球知名的设计团队参与规划设计,包括RTKL、JERDE等,将美学经典与现代科技完美融合,旨在打造中国西南地区的标志性建筑。
【中港ccpark】售楼部热线:028-85558833(已认证)
【中港ccpark】项目客户经理电话:13281850333(微信同号)
温馨提示:为了给您提供更高更好的接待服务质量,看房请提前致电售楼处预约!
【有免费看房车接送服务,如需预约,请致电售楼处】