高投启鸣宸序_售房部电话_户型测评_楼盘口碑_购买价值分析

搜狐焦点重庆站

2026-01-20 19:05:00

购房群

买房如何避坑,加入购房群,看看他们怎么说

立即进群

【高投启鸣宸序】售楼部热线 028 84720058(已认证)

【高投启鸣宸序】客户经理热线 13281850333(微信同号)

温馨提示:为了给您提供更高更好的接待服务质量,看房请提前致电售楼部预约!

【有看房车接送服务,如需预约,请致电售楼部】

2025成都高投,点亮金融城双塔

高投置业新规战略作品

启鸣宸序 惊艳亮相

约120-143㎡新规越级四房

?2025置业成都必看红盘?

2025年高新必看项目,新川新作

【项目核心价值】

★ 【高新3.0 全城改善必看新川】

★ 【产城交融 · 全球未来城市样板间】

★ 【865亩新川之心 · 黄金一公里极核区】

★ 【高投启鸣系 · 全T2板式四房 | 全系互动架空层 | 更高得房率 】

建面约120㎡ | 超配四房•光厅双厅双卫

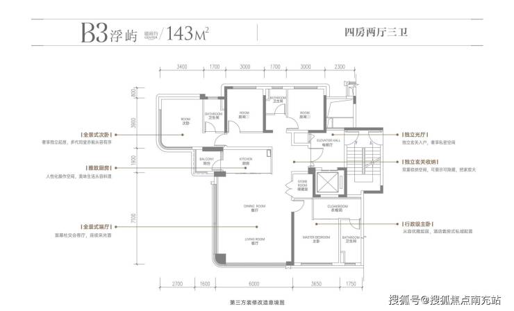
建面约143㎡ | 高奢四房•光厅双厅三卫

?立体交通 · 两横三纵-新通大道 | 新程大道 | 天府大道|蓉遵高速 | 梓州大道

?地铁500米内6号线换乘通达全城

☆ 三大TOD ☆红星路车辆基地TOD(在建中) | 新川路站TOD(在建中) | 陆肖TOD(在建中)

?名校环伺:一街之隔?上海师范大学成都海川学校·K12、高新区实验小学、新川科技园小学

?1公里内享受千亩公园生态:约865亩新川之心公园、约210亩兰花博览园、约250亩新川南北环伺公园、约174亩新川湿地公园

?商业环绕:2km西南首个万象天地(在建)、2km远达购物中心、伊藤洋华堂(蓝润店)、4km山姆会员店、2/4/8号邻里中心

?低密全四房纯粹住区,新派享受

【启鸣宸序】

占地面积:30.2亩

绿地率:35%

总户数:383户

建筑类型:小高层

梯户比:2T2

装修情况:臻装大平层

建面约120㎡ | 超配四房•光厅双厅双卫

建面约143㎡ | 高奢四房•光厅双厅三卫

【户型鉴赏】

【配套篇】

?交通圈——立体交通,纵横全城路网

【两横三纵】「新通大道 | 新程大道 | 天府大道|蓉遵高速 | 梓州大道」

【公共交通】地铁6号线-新通大道站(距离17亩项目约300米)新川站(距离30亩项目约500米)三大TOD 「红星路车辆基地TOD(在建中) | 新川路站TOD(在建中) | 陆肖TOD(在建中)」

?名校圈——优质名校,城南精英主场

?上海师范大学成都海川学校

「该校为沪蓉教育合作的里程牌式项目,作为一所十二年制公办学校(含择机开设的高中部),将于2025年9月正式启航」

高新区实验小学|新川科技园小学 | 金苹果锦城第一中学

?生态圈——千亩公园,让生活住进自然

新川之心中央公园|新川湿地公园|新川环城公园

?商业圈——繁华商圈,品质消费目的地

(2km)西南首个万象天地(建设中)|(2km)蓝润置地广场(伊藤洋华堂)|(2km)远大购物中心|(4km)山姆会员店|2/4/8号邻里中心

?医疗圈——权威医疗 健康护航

(1.7km)四川省中西医结合医院高新院区(三甲医院)| (3.8km)四川大学华西第二医院高新区妇女儿童医院

❀启鸣宸序——【新派假日花园】

①、安缦酒店式度假基因设计

②、13座假日剧场花园

③、8大全系互动架空层

④、原野系亲子互动场

【高投启鸣宸序】售楼部热线 028 84720058(已认证)

【高投启鸣宸序】客户经理热线 13281850333(微信同号)

温馨提示:为了给您提供更高更好的接待服务质量,看房请提前致电售楼部预约!

【有看房车接送服务,如需预约,请致电售楼部】

全部
报名成功
稍后会有专业的置业顾问联系您
返回楼盘

频道导航

返回首页

看房小程序

APP下载

电话拨通后,请您手动拨打分机号

确定拨打电话

电话号码:

分机号:(可能需要拨分机号)