重庆「桃源居」售楼电话(最新)|房价查询|优惠活动|特价房源

搜狐焦点重庆站

2026-03-10 04:15:00

购房群

买房如何避坑,加入购房群,看看他们怎么说

立即进群

桃源居售房部电话:023-68855575(官方认证)

温馨提示:了解最新楼盘动态、房源信息、户型房价、优惠活动等,请致电售楼部!

【看房请提前致电预约,享内部优惠政策】

十年城就——桃源居

空港核芯蔚然大城

开发商:香港世外桃源发展有限公司

地址:两江新区空港经济示范区桃源大道

在售产品信息

六区香榭郦:光幕高层

1#2#3#号楼 (现房)

总共17层 2T4户

A户型 四室两厅两卫

套内:106㎡ 建面129㎡

特价:127-136万

B户型 四室两厅两卫

套内:103㎡ 建面125㎡

特价:125-133万

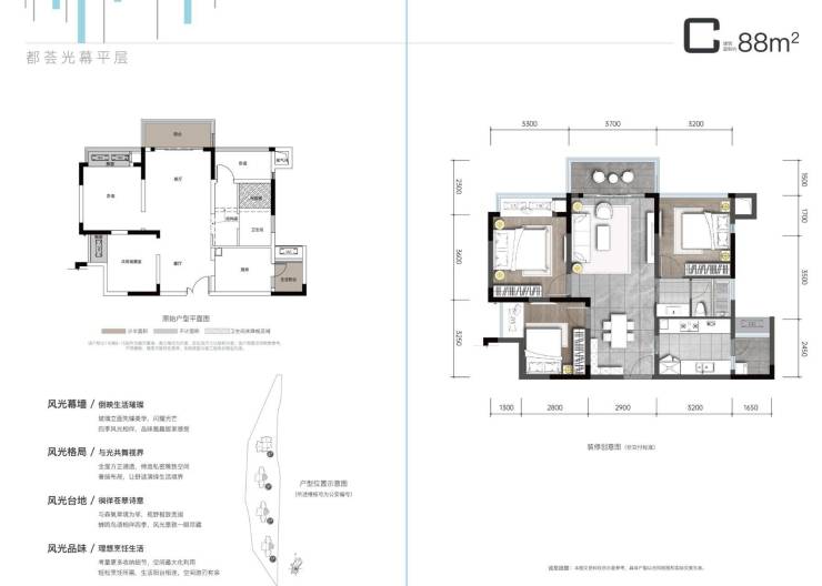
C户型 三房两厅单卫

套内:72 建面88

特价:88-92万

16-17层是跃层产品 建面199平 带70平左右露台

总价:256万 剩2套(工抵特价210万)

项目总占地1275亩,总体量120万方

容积率:1.93 绿化率35%

车位配比香榭郦1:1.58香澜山1:1.15

物业费:高层2.8元/平 洋房3.8元/平

户型图品鉴

桃源居】售楼部热线:023-68855575(已认证)

温馨提示:看房请提前致电售楼部预约!享内部优惠政策!

【有免费看房车接送服务,如需预约,请致电售楼部】

全部

相关资讯

报名成功
稍后会有专业的置业顾问联系您
返回楼盘

频道导航

返回首页

看房小程序

APP下载

电话拨通后,请您手动拨打分机号

确定拨打电话

电话号码:

分机号:(可能需要拨分机号)