成都「复地金融岛商铺」售楼热线|楼盘深度评测:户型解析、价格区间详解|11月购房优惠及近期活动资讯全汇总

搜狐焦点重庆站

2025-11-13 09:36:00

购房群

买房如何避坑,加入购房群,看看他们怎么说

立即进群

【复地金融岛商铺】售楼部热线:028-85558833(已认证)

【复地金融岛商铺】客户经理电话:13281850333(微信同号)

温馨提示:为了给您提供更高更好的接待服务质量,看房请提前致电售楼部预约!

【有看房车接送服务,如需预约,请致电售楼部】

十年金融城~唯一金融岛

滨江商业街 品牌租约现铺限量发售

30-400㎡全业态吸金铺

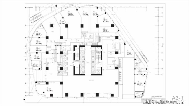
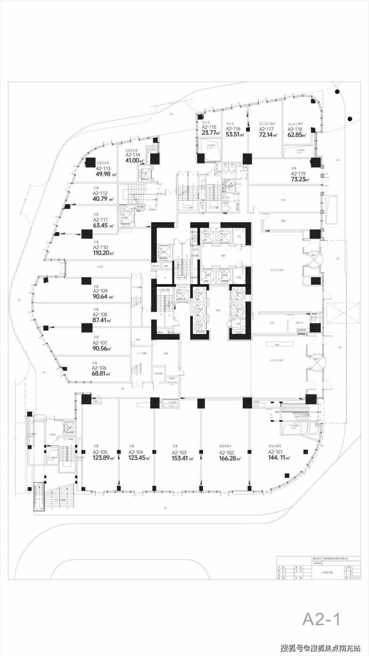
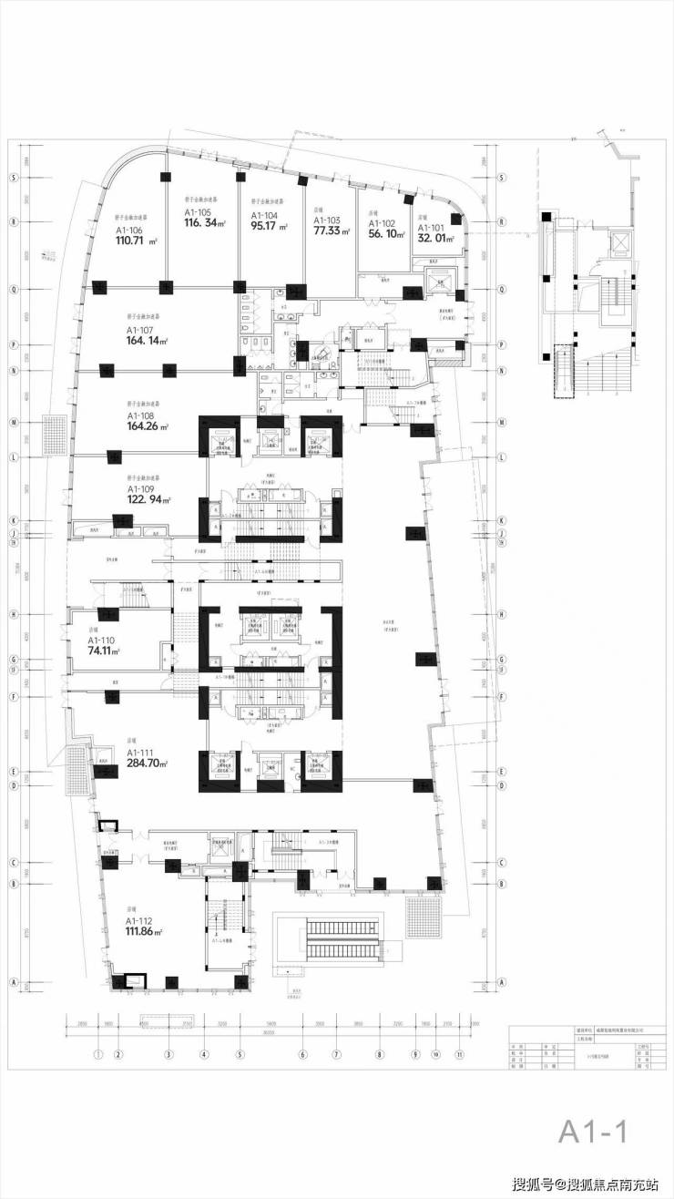
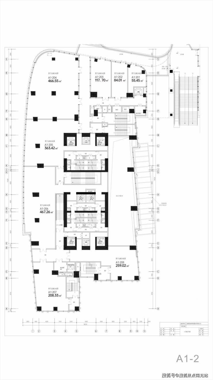
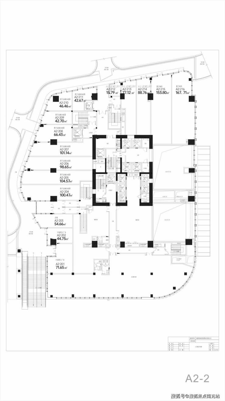
【基础信息】:

占地面积:350亩

业态涵盖:高端住宅、酒店、总部办公、大平层公寓、购物中心、滨江商业街

总套数:46间

价格:一楼 4-6 万,二楼 2.5 左右

总层数:2层

层高:1F 6米、2F 5.4米

业态:全业态(带外摆)

付款方式:全款/按揭

公摊: 28%

拿地时间:2015 年

交房时间:2017 年

物业费:19 元/m²

交房标准:现状交付(大部分带租约)

销售面积30-400㎡,主力面积区间60-100㎡

|核心卖点|

金融城 全业态现铺 带品牌租约 区域内唯一在售

|经营价值|

享金融城1、2期成熟配套 拥金融城3期巨大潜力 5Km内百万人客流

|收藏价值|

成都唯一江岛商业项目 唯一滨江商街 唯一水秀广场

【区域价值】

【岛上业态完善】

住宅、酒店、写字楼、公寓、艺术中心、购物中心、商业街

岛上自带高净值人群,具有很强消费力

CBD业态布局,带来百万级别的人口吸附力

【金融城唯一滨江在售现铺】

主力面积60-100㎡,带租约、高收益、易转手

360°环江街区旺铺,开放式布局拥有超强昭示性

24h经营,满足全时段消费人群

统一运营管理,避免业态失控

背靠购物中心,自带客流,便于引流

【复地金融岛商铺】售楼部热线:028-85558833(已认证)

【复地金融岛商铺】客户经理电话:13281850333(微信同号)

温馨提示:为了给您提供更高更好的接待服务质量,看房请提前致电售楼部预约!

【有看房车接送服务,如需预约,请致电售楼部】

全部

相关资讯

报名成功
稍后会有专业的置业顾问联系您
返回楼盘

频道导航

返回首页

看房小程序

APP下载

电话拨通后,请您手动拨打分机号

确定拨打电话

电话号码:

分机号:(可能需要拨分机号)