都江堰「人居未来城」售楼部电话|楼盘信息|户型价格|国庆中秋优惠活动

搜狐焦点重庆站

2025-10-04 17:47:00

购房群

买房如何避坑,加入购房群,看看他们怎么说

立即进群

【人居未来城】售楼部热线:028-85558833(已认证)

【人居未来城】客户经理电话:13281850333(微信同号)

温馨提示:为了给您提供更高更好的接待服务质量,看房请提前致电售楼部预约!

【有看房车接送服务,如需预约,请致电售楼部】

中国 · 成都 I 兴城人居 · 未来城

一丶【基本信息】

项目位置:一环路江安河畔

开发商:成都兴城人居地产投资集团股份有限公司

占地面积:约69亩

建筑面积:约11.5万平米

交付标准:精装

物业费:暂定2.5元/㎡/月

容积率:约1.8

绿化率:约35%

总户数:640

机动车位:843

梯户比:1T2丶1T3

楼层总高:8-10

产品面积:112-120-140-142

产品均价:1-1.3万

二丶区位图

三丶项目价值

主城一环高光大作、江安河畔

尽享绿道临近三遗、主城生态中心

全覆盖式商圈、自带河景商业????

5分钟生活圈、教育医疗资源广泛、3-18岁一站式教育服务

智能家庭管家

以成都建设未来公园社区的愿景为基底

为都江堰创新探索未来社区的新型城市人居模式

引入浙江未来社区打造经验历经深研,运势而生

未来社区、智慧生活,一部手机掌控专属住宅

必买理由

国企品牌房企翘楚、九子营城建设都江

核心力

一环主城城市中心

未来社区高端之作

世界级

临近三遗,天府之源,宜居圣地????

稀缺性

帝王标杆,一环土储????

生态绿道,阔尺河景????

超便利

都会醇熟中心圈

拥抱市井的浪漫与热闹????

立体式交通体系 高效生活链

优渥成长教育 修炼未来品格

品质感

人居纯改善高端生态住宅

最宜居

风水宝地、河边晨跑、平均温度10-22℃、清新氧离子、慢生活

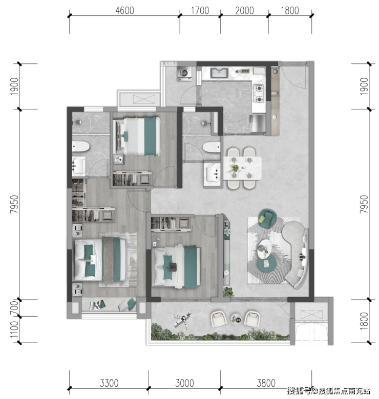
户型图

112㎡

○ 户型方正朗阔,南北布局全明通透;努厅设计,通透布在局,满足中国家庭生清习惯;

○ 约68米大尺度景观阳台,品茗幕天、惬意赏景;

○ L型阳光大制房,科学规划美食变饪流线;

○ 大主卧套房,配步入式衣帽间、卫浴间,尊享私密生活。

120㎡

○ 纯板式智阔三居,约16.6米全景采光面宽,极享调透视野;

○ 约7.1米大尺度情厅,待客与居家的瘫容之享;

○ 约6.6米大尺度景观阳台,曼妙星它与城市灯海美量入怀;

○ 智阔尺度主卧套房,配步入式衣幅闻卫浴间,尊享私密生活;

○ 明厨独配生活阳台,居家厨乐,纵向精客生活。

140㎡

○ 约5.8米开阅愿厅链接阅台,杨数视野接量无拟;

○ 大尺度中式餐厅,适合家庭给聚,礼遇大户人生;

○ 超大厨房链接生活阳台,风光与英味尽享;

○ 室室大飘窗观景识计,时刻沐浴清风与阳光;

○ 套房式主卧,摊交卫浴与涉入式衣罐阅.目成私享字间。

【人居未来城】售楼部热线:028-85558833(已认证)

【人居未来城】客户经理电话:13281850333(微信同号)

温馨提示:为了给您提供更高更好的接待服务质量,看房请提前致电售楼部预约!

【有看房车接送服务,如需预约,请致电售楼部】

全部

相关资讯

报名成功
稍后会有专业的置业顾问联系您
返回楼盘

频道导航

返回首页

看房小程序

APP下载

电话拨通后,请您手动拨打分机号

确定拨打电话

电话号码:

分机号:(可能需要拨分机号)