去年开始,新规楼盘如火如荼,甚至带火了成华区楼市。
最近几天,宇宙高新,终于迎来了「新规产品」首秀:
高投启鸣宸序
前两天去踩盘了,看完后用几个词描述:
高得房率、T2板楼、低密小高、1楼全架空、公区不错、大门气派... ...
但也,略有不足。不过,
其它楼盘,或许内心比较翻腾!

小高通透板楼
启鸣宸序占地30.2亩,容积率2.5,全17层小高,阵列+围合式排布。均2T2通透板楼,独立电梯入户,独立入户光厅。
难得的是,1楼全架空。
除了豪宅,基本都做不到全架空,顶多局部架空。
不足:1栋一单元,7栋二单元,楼间距24m,略显不足。其他楼间距,视野开阔度都还可以。

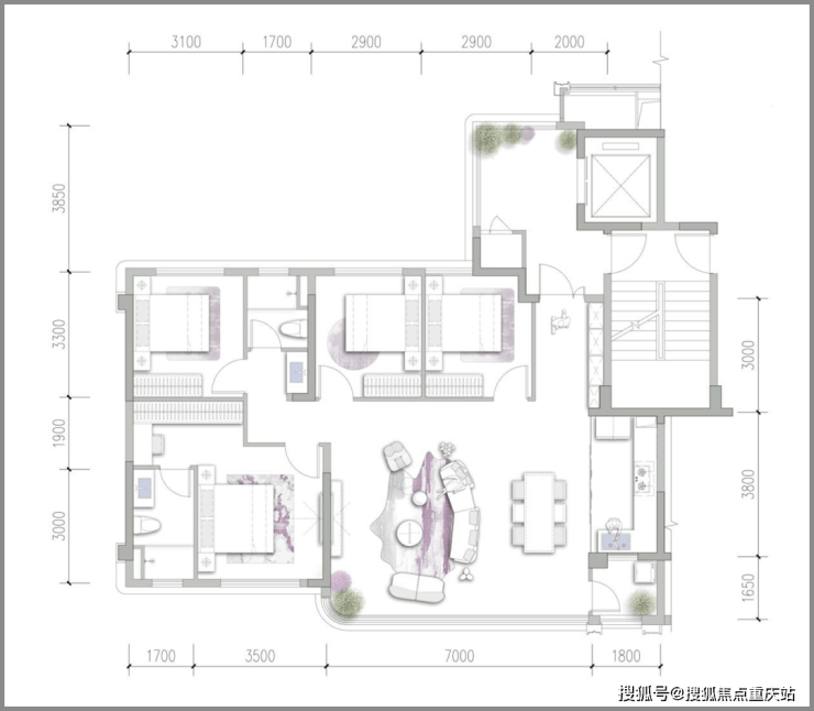
新规户型:空间更大,布局更合理
作为高新南区首个亮相的“新规产品”,在片区内,户型和品质优势还是挺大。当然,比起卷翻天的成华区,又略显保守,创新性略不足。
120平:4房2厅2卫
得房率:约107%(含入户光厅)


布局很紧凑,没有浪费。实际空间可能比老规143优秀。
12平入户光厅,改成花园或休闲茶室,都不错。
横厅户型,客厅开间达7米,空间达40平,采光和空间感很不错。
主卧面宽3.5米,空间约17.6平,并带独立衣帽区和卫生间。
不足:
受限于面积段,有两个次房略紧凑。
为了主采光面(客厅/主卧)对中庭,1/7栋朝北。不过,3个次卧朝南,有得有失。
143平:4房2厅3卫
得房率:约110%(含入户光厅)


品质改善,相当于老规170平户型。
4开间朝中庭,双套房设计。次套房位于客厅另一侧,适合做老人房,减少起居习惯带来的互相干扰。
入户光厅较大,达到18平。可与厨房打通,做成双入户,增加通透性。
各房间尺度相对充裕,面宽均>3米。
厨房比较大,达到11平,适合深度居家。
不足:143B1户型,均为东西向,没有南北向。
内装细节不错
精装交付,三大件:格力中央空调、威能地暖、百朗新风。
客厅全落地窗,封窗交付。玄关收纳柜、卫生间台面等诸多细节,设计都还是挺人性化,也比较实用。

公区品质进步很大:
实地感受,对于120-140平改善段楼盘,公区用材、细节,呈现品质其实都很不错。
整体设计源自东京安缦酒店风格。
1楼全架空,配置了健身、休闲亲子、书吧、儿童乐园等空间。中庭打造了漂浮水榭、无界流水庭院、童趣乐园等多个主题空间。

配套趋于成熟
1、处于新川科技园核心位置,周边已趋于成熟,城市界面也很新。
2、距地铁6号线新通大道站/新川路站均500米。上可直达金融城,下可直达天府CBD。
3、步行800米到新川之心公园,1公里内还有兰花博览园、环伺公园、新川湿地公园等。
4、2公里内万象天地(在建)。


学校近且不错:
启鸣宸序属于新川B学区,对口的学校均还不错,没有所谓的村小等明显短板。
而且,南侧一街之隔上海师范大海川学校(K12 预计25年9月开校)、西侧三幼。若摇上,可实现3-18岁目送式上学。
------------------------------
最后,要说的是:
房子,说破天,最重要的还是价格。
120平套四2卫,还是很有吸引力。
总价:360-380w,上车新规小高板楼套四,既满足了对多房改善的功能性需求,又适度控制了购房成本。
这在宇宙高新,还是挺难得的。
而目前大家心态,也更倾向于「新规产品」:产品更新、户型更合理、品质更好,综合品质/价格可能更低。
我是【唐豪】,一个在【成都】只说大实话的房产销售。
买房路上,信息差最值钱。 我的价值就是用我十年的经验,帮你填平这个信息差,让你每一分钱都花在刀刃上。
光看不动,永远解决不了问题。 如果你看到这里,证明你确实在认真考虑【成都的豪宅】。那就别犹豫,马上加我微信【13281850333】。
把你在【预算、需求、困惑】发给我,15分钟内,我给你一个清晰的行动思路。 咱们用最快的时间,解决最实际的问题。”