重庆「荣安九龙壹号」怎么样?楼盘测评-营销中心电话

搜狐焦点重庆站

2025-08-24 21:51:35

购房群

买房如何避坑,加入购房群,看看他们怎么说

立即进群

【荣安九龙壹号】售楼部热线:023-68855575(已认证)

温馨提示:若您有看房计划,请提前致电售楼部进行预约,可享内部优惠政策!

【若您需要免费看房车接送服务,可致电售楼部预约】

【荣安九龙壹号公寓】具备显著优势,低首付即可入住,地处商圈旁、轨道口,为小户住宅。

【周边配套】

【交通】项目周边交通便利,临近滩子口公交站,距离轻轨2号线杨家坪站也不远,同时地铁18号线滩子口站就在附近,轻松畅达城市各处。【医疗】医疗资源丰富,周边有多家三甲医院,如大坪医院、重医附一院、西南医院以及新桥医院,为您和家人的健康提供坚实保障。【商业】商业配套完善,五洲世纪文创中心、万象城、时代天街环绕,满足您日常购物、休闲、娱乐等多元需求。【公园】周边自然景观优美,玉龙公园、动物园、彩云湖公园近在咫尺,为您提供亲近自然、放松身心的好去处。

【项目卖点】

①荣安地产作为A股上市房企,在国内房地产领域颇具影响力,荣登中国房地产100强企业榜单(位列第77名 )。②荣安地产实力雄厚,曾两次荣获国家级广厦奖,该奖项在地产界堪称“奥斯卡”,是对其卓越品质的高度认可。③九龙半岛区域规划为世界级舒适居住区,项目限高12层 - 17层,居住体验更为舒适惬意。④项目位于城市核心稀缺地段,推出的水电气三通LOFT公寓,在市场上极具竞争力。⑤项目与地铁18号线滩子口站及公交站距离仅200米左右,真正实现家门口的便捷出行。

【产品信息】

【荣安九龙壹号】推出的产品为4.8米Loft公寓,在空间利用上独具特色。其总价区间为39 - 59万,面积区间在37 - 41平米,单价区间处于0.81 - 1.2万,不同需求的购房者都能找到合适的选择。公寓梯户比为2T23户,总高11层,物业费为3.2元/平米,且为现房,购房者可即刻开启品质生活。

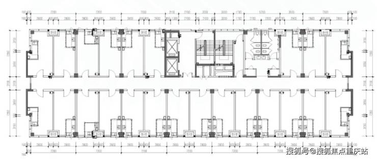
户型图

户型图2

【荣安九龙壹号】售楼部热线:023-68855575(已认证)

温馨提示:看房请提前致电售楼部预约!享内部优惠政策!

【有免费看房车接送服务,如需预约,请致电售楼部】

全部

相关资讯

报名成功
稍后会有专业的置业顾问联系您
返回楼盘

频道导航

返回首页

看房小程序

APP下载

电话拨通后,请您手动拨打分机号

确定拨打电话

电话号码:

分机号:(可能需要拨分机号)