成都「中海天府合印」售楼部电话-周边配套-最新动态-9月优惠活动

搜狐焦点重庆站

2025-09-05 07:46:00

购房群

买房如何避坑,加入购房群,看看他们怎么说

立即进群

【中海·天府合印】售楼处电话:028-85558833(已认证)

【中海·天府合印】项目经理电话:13281850333(微信同号)

温馨提示:为了给您提供更高更好的接待服务质量,看房请提前致电售楼处预约!

【有免费看房车接送服务,如需预约,请致电售楼处】

成都楼市的“金九”更需要“亮眼”项目来添把火。天投中海·天府合印项目,制造出总价160万即上车天府新区最后的核心住区的市场爆点,注定将以此成为霸榜9月成都新房市场的新选手。

从项目的位置来看,其位于城市中轴线天府大道右翼的天府前湾,该片区是天府新区规划发展中的天府中央法务区。该片区北承高新新川板块,南连天府新区天府中央商务区,西邻麓湖,区位优势明显

在产业上,天府前湾落地了全国第一个中央法务区,引入了天府公共法律服务中心、中法公证、天府中央法务区研究中心等首批政法服务窗口单位和超20家法务机构入驻,成为金融城、新川科技园、天府国际基金小镇、天府中央商务区自北向南串联起的产业金腰带上的重要一环。

项目占地约70亩,容积率2.5,仅9栋住宅,均为14-18F的小高层,称得上真正的低密住区。楼栋全是南北向布局,楼间距约30-50米,保障了小区内部通透性及视野开阔性。

进入到社区内部,园林景观的设计充分利用了南北向170米中轴和东西向生态绿廊的空间,在南北组团之间设置了社区人行绿道,在绿道中央打造“甲板造型”的挑高观景廊桥,可连接南北组团,同时步行而上可远观园区美景。此外,还布局了入口水景空间,草坪休闲花园以及儿童主题活动场地等全龄段活动空间。

项目楼栋设计为2T4户,但不同于传统的T4楼型,而是采用了创新型的“风帆”设计。“风帆型”的楼型更舒展,弧型立面可让建筑拥有更大的采光及观景面,且端户及中间户尽可能分离,减少了对视。也正是这一创新的楼型设计,让项目楼栋即便是2T4户,但采光、通风性能可与板式楼栋媲美。

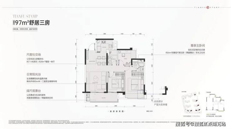
天投中海·天府合印首批次房源包括建面约97㎡、113㎡两大主力户型。两大户型均为套三双卫设计,在功能空间上完美契合了青年群体的置业需求。同时,从空间布局的设计上来看,满足了青年在生活上的舒适与尺度的双重要求。

建面约97㎡户型:

建面约113㎡户型:

总体来看,天投中海·天府合印的产品力表现背后,足见中海对青年群体置业需求的深度洞察,以“地段+品质+价格”实现对青年群体置业痛点的精准拿捏。

【中海天府合印】售楼处热线:028-85558833(已认证)

【中海天府合印】项目经理电话:13281850333(微信同号)

温馨提示:为了给您提供更高更好的接待服务质量,看房请提前致电售楼处预约!

【有免费看房车接送服务,如需预约,请致电售楼处】

全部
报名成功
稍后会有专业的置业顾问联系您
返回楼盘

频道导航

返回首页

看房小程序

APP下载

电话拨通后,请您手动拨打分机号

确定拨打电话

电话号码:

分机号:(可能需要拨分机号)