重庆「信达印南山」售楼部电话-户型图-8月价格-最新楼盘动态

搜狐焦点重庆站

2025-08-22 15:20:54

购房群

买房如何避坑,加入购房群,看看他们怎么说

立即进群

信达印南山】售楼部热线:023-68855575(已认证)

温馨提示:看房请提前致电售楼部预约!享内部优惠政策!

【有免费看房车接送服务,如需预约,请致电售楼部】

项目配套

交通配套

一环两站四轨五隧 快速通达全城以内环高速、两站四轨五隧共同构成的立体道路系统。

五隧——1、南山隧道(渝中区解放碑)2、慈母山隧道(江北嘴CBD、弹子石CBD)3、真武山隧道(南坪、九龙坡)4、鹿角隧道(规划中,巴南、九龙坡)5、江南隧道(在建中,南坪、茶园)

两站——1.重庆东站(已开通,通达武汉、西安、长沙等省会城市)2.江南枢纽站(重庆九大交通换乘枢纽之一)

四轨——6号线、8号线、24号线、27号线

6号线已通车,24号线、27号线在建,8号线规划中,四大轨道交通串联重庆主城各个区域

商业配套

约12.8万方奥特莱斯

悦地购物中心

约6万方商业小镇

易汤南山温泉

医疗配套

【优质医疗保障 护航家人健康】

1.南岸区第三人民医院

2.重庆医科大学附属第二医院(江南院区)

3.重庆东南医院

教育配套

周边学校(就近划片):南坪实验小学、十一中。

项目基础信息

小高层(洋楼)

清水小洋楼1#2#3#5#7#8#4#2单元

建面:84/95㎡

套内:71/80㎡

户型:三房/三改四 双卫

总价:68-105万

五衡系统小洋楼4#1单元

建面:84-95㎡

套内:71-80㎡

户型:三房/三改四房双卫

总价:108-122万

梯户比:1T4H;2T4户

小洋楼总高:8-13层

【户型鉴赏】

洋房

洋房

洋房11#10#9#

建面:113-139㎡

套内:97-120㎡

户型:三房/四房双卫/四房三卫

总价:113-198万

1跃2跃层1T4H户 ,3.4.5.6平层和7跃8 1T2户 ,总高8层

洋房户型说明及区间价格:

1楼(底跃1-2层)

建面128-138㎡套内110-118㎡

总价113-160万左右,花园:约20㎡

3楼、4楼平层

建面126-129㎡套内111-113㎡

总价140-167万,3楼露台40㎡

5楼、6楼平层

建面113-116㎡套内98-110㎡

总价132-140万,5楼露台10㎡

7楼 (顶跃7-8层)

建面138㎡套内121㎡

总价195-200万,露台:51㎡

联排

联排【14号楼售罄,在售15/16/17号楼】

建面:126m² 套内:121m²

总价:约185-195万

实得面积:180m²

花园:约50m²

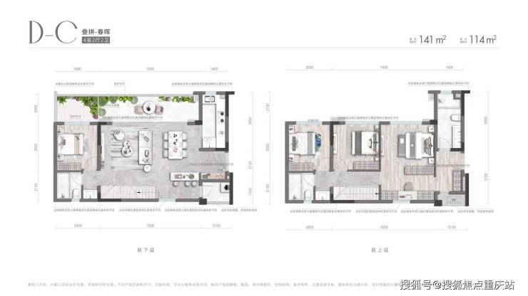
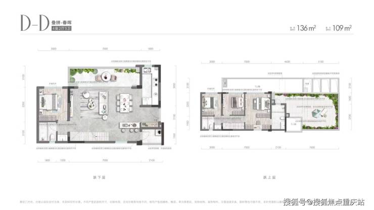
叠拼

叠拼【12号楼、13号楼】

建面:136-174㎡

套内:109-138㎡

实得面积:160-260㎡

户型:四房两厅双卫/三卫/四卫

总价:175-278万

梯户比:1t2h

下叠花园30-40㎡

上叠露台3-5个40-70㎡

信达印南山】售楼部热线:023-68855575(已认证)

温馨提示:看房请提前致电售楼部预约!享内部优惠政策!

【有免费看房车接送服务,如需预约,请致电售楼部】

全部
报名成功
稍后会有专业的置业顾问联系您
返回楼盘

频道导航

返回首页

看房小程序

APP下载

电话拨通后,请您手动拨打分机号

确定拨打电话

电话号码:

分机号:(可能需要拨分机号)