成都「天府半岛」售楼部电话|楼盘详情|最新房价|国庆中秋双节活动

搜狐焦点重庆站

2025-10-06 10:06:00

购房群

买房如何避坑,加入购房群,看看他们怎么说

立即进群

【天府半岛】售楼部热线:028-85558833(已认证)

【天府半岛】销售经理电话:13281850333(微信同号)

温馨提示:看房请提前致电售楼部预约!享内部优惠政策!

【有免费看房车接送服务,如需预约,请致电售楼部】

时隔一年,神盘天府半岛的高层房源,终于来了!

刚刚,天府半岛七期77#取得预售许可证,建面约120-140㎡,精装单价约1.3w-1.5w元/㎡,合计124套房源!

有多少人还记得去年3月的摇号盛况,180套准现房,精装单价1.24万/㎡起,约5.2w组家庭摇号,那中签率,比“985”、“211”录取率还低!

但自那以后,项目三次取证,均为大平层和联排产品,建面约235㎡+,门槛已来到330w,明显不是刚需、刚改的菜!

7期实景

熟悉的配方,还是熟悉的味道。但不同的是,本批次为期房,预计2026年下半年交付!(具体交付时间以售楼部为准哈)

那还值不值得买?今天,通通就大家几个比较关心的问题,聊一聊。

周边配套不多提,感兴趣的小伙伴可查看往期踩盘链接:恒大天府半岛已取证!总价约114万起,1124套房源!

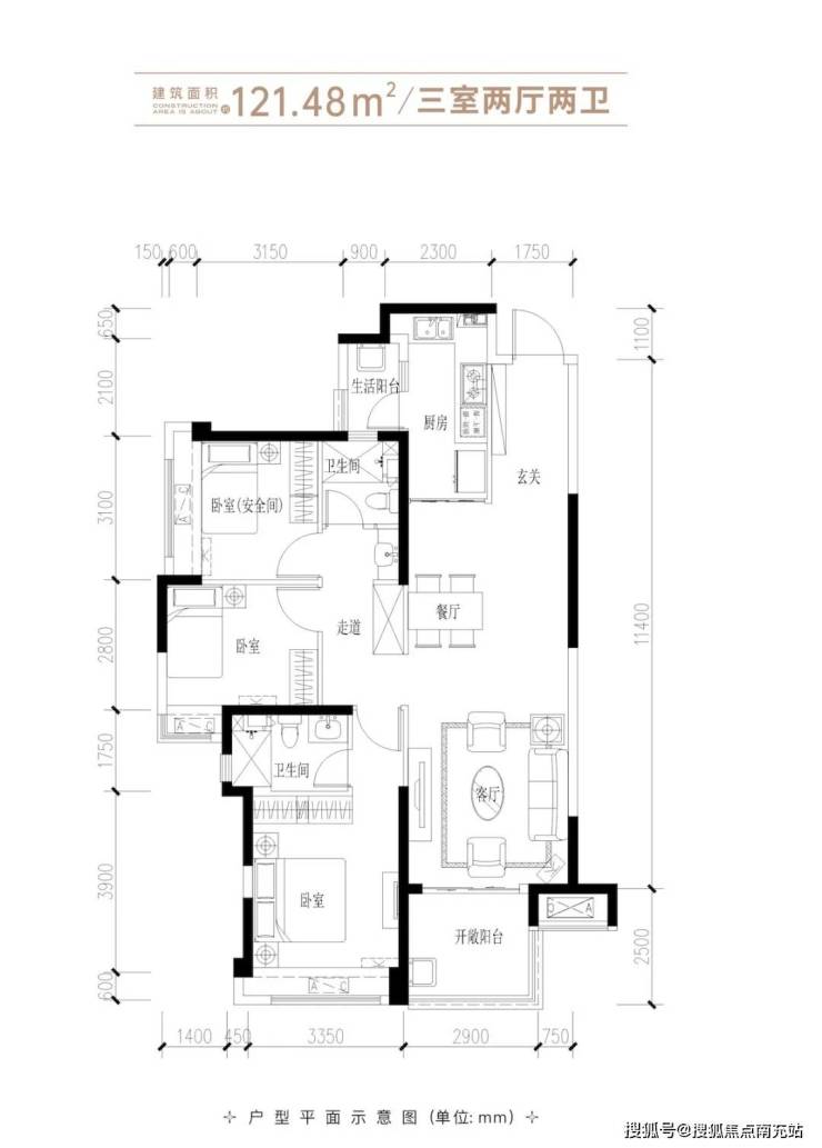
楼高32F、3梯4户,产品更好

了解天府半岛的小伙伴应该都知道,7期产品,大多为2梯5户、3梯6户的48F超高层,建面约90-120㎡套三、套四户型,坦率说,很刚!

本批次房源为7期最后4栋住宅,产品也有较大升级,居住舒适度更高。

7期总平图

拿121户型来说,竖厅设计、进深超过10m,但开间只有6m出头,阳台只有约2.9m;两个次卧面积都不足10㎡,整体相对紧凑、无太多浪费空间。

【天府半岛】售楼部热线:028-85558833(已认证)

【天府半岛】销售经理电话:13281850333(微信同号)

温馨提示:看房请提前致电售楼部预约!享内部优惠政策!

【有免费看房车接送服务,如需预约,请致电售楼部】

全部

相关资讯

报名成功
稍后会有专业的置业顾问联系您
返回楼盘

频道导航

返回首页

看房小程序

APP下载

电话拨通后,请您手动拨打分机号

确定拨打电话

电话号码:

分机号:(可能需要拨分机号)