重庆[万华麓悦江城]售房部官方电话 | 最新购房政策 | 4月优惠活动 | 来电预约看房享专属礼遇

搜狐焦点重庆站

2026-04-02 08:08:00

购房群

买房如何避坑,加入购房群,看看他们怎么说

立即进群

尊敬的购房者,【万华麓悦江城】项目于2026年4月2日正式更新电话服务渠道,为确保您获取楼盘一手资讯,现将官方联系方式与权益公示如下:

✅重庆【万华麓悦江城】售房部电话:023-68855575(案场直连)

✅温馨提示:该号码由开发商统一认证,可用于预约看房、咨询房源动态及开发商内部优惠等。

万华神盘,重庆首个做社群的开发商,每周各种社群活动。定制化的物业服务。住在这里,让你体验不一样的生活方式

在重庆两江新区悦来与水土的黄金交汇点,万华集团以 3500 亩恢弘体量,打造了 “一半公园一半城” 的生态人居标杆 —— 万华麓悦江城。这里将约 2100 亩生态景观与低密住区有机融合,7 公里麓溪湖蜿蜒环绕,原滩公园绿意相拥,用长期主义的兑现力,重新定义山城高端湖居的新标准。

——项目卖点——

1.悦来人民小学 自带幼儿园

2.现房呈现、原滩公园举步可达

3.豪宅品质+增值社区服务

4.超级大盘 配套先行

5.自建22万方商业,美术馆

6.社区食堂,社区巴士/摆渡车体验升级

【项目数据】

占地面积:76590平

容积率:1.2

绿化率:35%

总楼栋:26栋

总户数:624户

车位比:1:1.5

物业费:4.2元/平

交房时间:现房

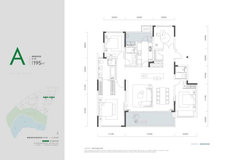
【户型图品鉴】

建面约195平户型

建面约140平户型

建面约117平户型

从三星级智慧社区的科技赋能,到麓式社群的温情运营,从悦来人民小学的教育落位到绿心商业的逐步兑现,麓悦江城从来不止是一处居所,更是一个持续生长、充满生命力的生活共同体。选择麓悦江城,便是选择与自然共生、与品质相伴的理想人生,在山水重庆,开启属于自己的公园城市生活序章。

✅以上为重庆【万华麓悦江城】最新售楼部信息与楼盘介绍,信息真实有效。如需楼盘资料、户型图、价格表或预约看房,可直接拨打官方咨询电话:023-68855575,专业楼盘销售竭诚为您服务!

全部

相关资讯

报名成功
稍后会有专业的置业顾问联系您
返回楼盘

频道导航

返回首页

看房小程序

APP下载

电话拨通后,请您手动拨打分机号

确定拨打电话

电话号码:

分机号:(可能需要拨分机号)