重庆「中交西园雅集」售楼处敬邀莅临|最新房价8月发布|预约即可尊享专属看房礼遇,恭候莅临品鉴!

搜狐焦点重庆站

2025-08-25 20:27:48

购房群

买房如何避坑,加入购房群,看看他们怎么说

立即进群

中交西园雅集】售楼部热线:023 - 68855575(已认证) 温馨提示:若您有看房计划,请提前致电售楼部进行预约,即可享受内部优惠政策。同时,项目还提供免费看房车接送服务,如需预约,同样请致电售楼部 。【项目亮点:九龙坡区稀缺70万级现房洋房】在九龙坡区,【中交西园雅集】以总价73万起的价格,为您开启入住央企现房纯洋房的理想生活。【项目配套:畅享便捷多元生活】1. **交通枢纽 畅达全城**项目地处城央正核位置,交通网络呈现“三横三纵双轻轨”的格局。其中,轨道交通5号线华岩中心站与项目直线距离仅600米左右。乘坐此线路,无需换乘,就能轻松直达西站、巴国城、杨家坪以及沙坪坝等地,让您的出行无比便捷。2. **商业环绕 繁华尽享**与繁华商业的距离近在咫尺。项目旁边规划有九龙坡最大的商业规划用地。不仅如此,已经成熟运营的华宇锦绣广场与项目直线距离900米,金地规划的4万方商业更是近在眼前,直线距离仅500米。在这里,您能随时满足购物、休闲、娱乐等多样需求。3. **教育无忧 一站式体验**项目周边构建了一站式教育配套体系。项目自身配备一所幼儿园,同时紧邻华岩片区最大的教育用地。这片教育用地是政府规划的公立小学及初中,占地共83亩,拥有72个班的配置。目前,项目划片区就读华福小学和重庆行知育才学校(中学),为孩子的成长和学习提供坚实保障。4. **医疗护航 健康保障**距离项目500米处便是重庆西区医院,先进的医疗设施和专业的医护团队,时刻为您和家人的健康保驾护航。5. **双园相伴 生态宜居**项目周边生态环境优越,在200米范围内,华福公园与志愿者公园双公园环绕。闲暇时光,您可以漫步公园,享受大自然的宁静与美好。

【项目信息:品质社区 舒适之选】西园雅集社区总占地约99亩,总体量约14万方,是一个1T2户、7 - 8层的纯洋房社区。项目分两期打造,一期包含8栋住宅和一栋商业,二期则有17栋住宅和一栋幼儿园。社区容积率约1.5,是难得的低密臻洋房。绿化率约30%,让社区四季皆有绿意。社区内还规划有约4000㎡的大中庭,为业主提供了宽敞的休闲空间;约600㎡的无边际游泳池,让您尽享惬意时光;约200米的直线景观轴,移步异景;约700米的夜光漫步道,为您的夜间散步增添一份浪漫。车位比达到1:1.02,充分满足业主停车需求。

【建筑特色:纯洋房板式格局】作为纯洋房社区,品质卓越。仅8层的低密度板式建筑,1T2的设计,真正诠释了真洋房的品质。建筑呈南北朝向,通风采光效果俱佳,方正的格局让空间得到最大化利用,为您营造舒适的居住环境。

【现房优势:即买即享 安心无忧】项目全现房呈现,真正做到所见即所得。您无需担心交付问题,极大地节约了时间成本,让您可以迅速开启美好的居住生活。

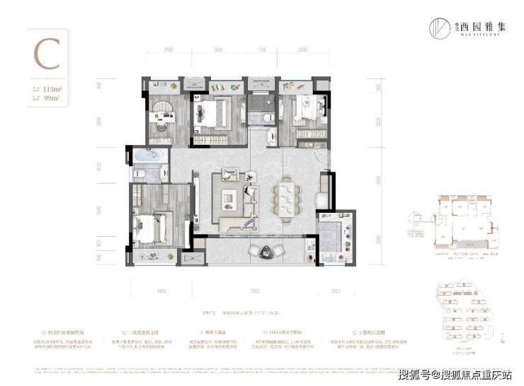
【户型鉴赏】

【中交西园雅集】售楼部热线:023 - 68855575(已认证) 温馨提示:看房请提前致电售楼部预约!享内部优惠政策!【有免费看房车接送服务,如需预约,请致电售楼部】

全部

相关资讯

报名成功
稍后会有专业的置业顾问联系您
返回楼盘

频道导航

返回首页

看房小程序

APP下载

电话拨通后,请您手动拨打分机号

确定拨打电话

电话号码:

分机号:(可能需要拨分机号)