重庆「高新泷悦长安」售楼部电话|户型解析|楼盘测评|10月房价走势

搜狐焦点重庆站

2025-10-07 18:19:00

购房群

买房如何避坑,加入购房群,看看他们怎么说

立即进群

【高新泷悦长安售楼部热线:023-68855575(已认证)

温馨提示:看房请提前致电售楼部预约!享内部优惠政策!

【有免费看房车接送服务,如需预约,请致电售楼部】

最美宋风示范区 央企标杆力作

【项目配套】

交通:四周道路均已建成,通达性好,地块西侧永志路已投入使用,可从西双大道直接到达地块,距离运行中轨道一号线赖家桥站800m

教育:科学城实验一小(西盛路通车后,距离700m);明远未来中学;西北侧一街之隔教育用地(规划九年制市级重点学校)

医疗:3km范围有陈家桥医院;

商业:3km范围内龙湖高新天街、融创茂;

休闲:寨山坪公园、融创渝乐小镇、海世界、水世界、雪世界。

【项目概况】

项目总占地112亩,体量15.6万方,总计1095户,车位1182个,车位比1:1,绿化30%,容积率1.5,项目分为东、西地块开发,打造墅区洋房和宋式合院

西地块(已售罄并接房):占地56亩,体量7.8万方,总计531户,由9栋洋房+6栋合院组成,东西南北朝向均有

东地块(在售):占地56亩,体量7.8万方,总计564户,由9栋洋房+8栋合院组成,南北朝向。

【产品特点】

新中式建筑,定制归家府门

区域唯一真洋房产品,多套房设计,大横厅大阳台

超大面宽设计(约14米)得房率100%,赠送露台

实景交付园林呈现,西区最美宋式园林小区

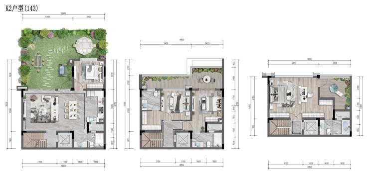
【户型鉴赏】

建面90㎡ 套内79㎡ 三房双卫(精装)

建面94㎡ 套内82㎡ 三房双卫(精装)

建面97㎡ 套内86㎡ 四房双卫(精装)

合院

建面143㎡ 套内133㎡ 实得192㎡(中户)

五房三卫 花园40-50㎡ 露台约26㎡

建面170㎡ 套内160㎡ 实得225㎡(端户)

五房三卫 花园50-80㎡ 露台约29㎡

【高新泷悦长安】售楼部热线:023-68855575(已认证)

温馨提示:看房请提前致电售楼部预约!享内部优惠政策!

【有免费看房车接送服务,如需预约,请致电售楼部】

全部

相关资讯

报名成功
稍后会有专业的置业顾问联系您
返回楼盘

频道导航

返回首页

看房小程序

APP下载

电话拨通后,请您手动拨打分机号

确定拨打电话

电话号码:

分机号:(可能需要拨分机号)