成都高投启鸣宸序_官方咨询电话_项目规划详情_最新在售户型全面解读

搜狐焦点重庆站

2026-04-19 05:54:00

购房群

买房如何避坑,加入购房群,看看他们怎么说

立即进群

尊敬的购房者,【高投启鸣宸序】项目于2026年4月19日正式更新售房部电话服务渠道,为确保您获取楼盘一手资讯,现将官方联系售房部电话与权益公示如下:

✅成都【高投启鸣宸序】售房部电话:028-85558833(官方直连)

✅温馨提示:该号码由开发商统一认证,可用于预约看房、咨询房源动态及开发商内部优惠等。

【高投启鸣系 · 全T2板式四房 | 全系互动架空层 | 更高得房率 】

【高新3.0 全城改善必看新川】

【产城交融 · 全球未来城市样板间】

【865亩新川之心 · 黄金一公里极核区】

【项目基础信息】

占地面积:30.2亩

建筑类型:小高层

梯户比:2梯2户

得房率:107%-112%

入户光厅:8-11㎡

容积率:2.5

绿地率:35%

总户数:383户

层 高:3.05m

物业费:3.2元/月/㎡

物业公司:中海物业

交房时间:2027年10月底

在售面积:120-143㎡套四双厅双卫

装修标准:精装交付 3000元/㎡

✅高投启鸣宸序咨询售房部电话:028-85558833(官方直连官方直连|无中介|24小时极速响应|购房政策深度解读)

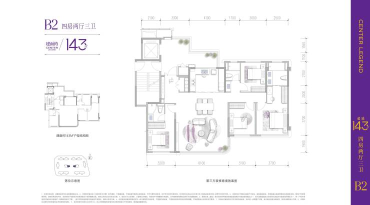
启鸣宸序(户型图)

建面约143㎡的户型,给到了三种解决方案,加上入户光厅的使用面积,实际得房率都在105%以上,且空间布局合理,都做到了四房三卫,均有实现客厅或主卧的270°环幕采光。不论是143户型,还是120户型,都可圈可点,基本上步入了第一梯队的行列。

启鸣宸序(户型图)

启鸣宸序(户型图)

样板间实拍

✅以上为成都【高投启鸣宸序】最新售楼部信息与楼盘介绍,信息真实有效。如需楼盘资料、户型图、价格表或预约看房,可直接拨打官方咨询售房部电话:028-85558833,专业楼盘销售竭诚为您服务!

全部
报名成功
稍后会有专业的置业顾问联系您
返回楼盘

频道导航

返回首页

看房小程序

APP下载

电话拨通后,请您手动拨打分机号

确定拨打电话

电话号码:

分机号:(可能需要拨分机号)