重庆「中建启宸」售楼处电话|楼盘最新动态与户型详解|核心优势及客观评测分析,全方位呈现项目价值

搜狐焦点重庆站

2025-11-13 16:22:00

购房群

买房如何避坑,加入购房群,看看他们怎么说

立即进群

【中建启宸】售楼部热线:023-68855575(已认证)

温馨提示:看房请提前致电售楼部预约!享内部优惠政策!

【有免费看房车接送服务,如需预约,请致电售楼部】

科学城·西永核心

唯一双商圈双轻轨 央企精装纯洋房

【项目配套】

优质配套—西永黄金一环 千亿双商圈中心

区域:国家战略规划核心千亿科学城,西永黄金一环最成熟板块

双轨道:300米7号线西井大道站+1km微电园地铁站+门口公交车站直达西永核心

双商业:千亿商圈 300米融创茂+高新天街

教育:2公里5所学校+门口巴蜀明远未来中学+规划小学+自建幼儿园

医疗:15分钟三甲医院-重医附属医院+海吉亚医院+7分钟陈家桥医院+25分钟新桥医院

公园:科学城公园+文旅城滨河公园+五云湖公园

【项目卖点】

优质地段:西永黄金一环,绝版位置

成熟商业配套双轻轨,300米融创茂×轨道7号站;1km高新天街×轻轨1号线

纯洋房品质:超现代风格-流光玻璃幕墙-1.5超低容积率品质纯洋房

最高得房率:得房率86%+赠送最大12㎡=综合98%

主题泛会所:儿童乐游、颐养空间、会客书吧,城市高定精奢泛会所

现代园林:城市度假式园林,山水十大画境

品质精装:全屋一线品牌+空调+全屋地暖

一站式教育:自带幼儿园+2分钟小学+1分钟中学

品质标杆

楼间距约30米,约1.5容积率,7-8层纯洋房社

大面积玻璃立面、全景落地窗、近17米采光面

窗墙比0.27,每一个房间均朝主景观面

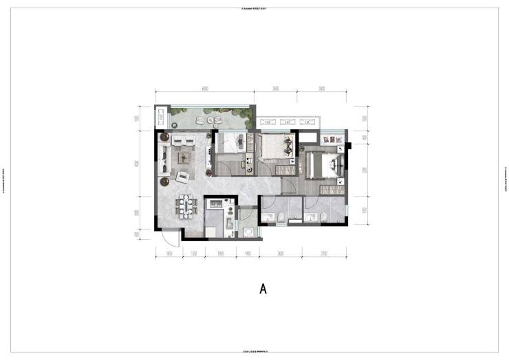
【户型鉴赏】

建面83 套内72

建面92 套内81

建面94 套内82

建面99 套内88

【中建启宸】售楼部热线:023-68855575(已认证)

温馨提示:看房请提前致电售楼部预约!享内部优惠政策!

【有免费看房车接送服务,如需预约,请致电售楼部】

全部

相关资讯

报名成功
稍后会有专业的置业顾问联系您
返回楼盘

频道导航

返回首页

看房小程序

APP下载

电话拨通后,请您手动拨打分机号

确定拨打电话

电话号码:

分机号:(可能需要拨分机号)