成都「天府菁萃里」售楼热线焕新上线|深度解析项目核心价值与户型优化空间|限时特惠房源即将加推|10月房价走势与楼盘亮点全维度解读

搜狐焦点重庆站

2025-10-16 16:08:00

购房群

买房如何避坑,加入购房群,看看他们怎么说

立即进群

【天府菁萃里】售楼部热线:028-85558833(已认证)

【天府菁萃里】客户经理电话:13281850333(微信同号)

温馨提示:为了给您提供更高更好的接待服务质量,看房请提前致电售楼部预约!

【有看房车接送服务,如需预约,请致电售楼部】

160万买七中旁精装三房四房

万亿级产业园区,国企开发,近5、6号线地铁、临华西医院

?【项目概括】:

总占地:84.5亩

住宅总楼栋数:8栋

面积:108、134、137、142、144、218㎡

梯户比:2T2、2T3、2T4

层高:1、8栋31层,2栋28层,3、5栋25层,4栋21层,6、7栋29层

单层高:218平3.15米,其余户型3米

容积率:2.0

公摊:20-21%

总户数:736户

车位数:1304个,1:1.7

物业:中海物业,3.2元/平/月

交付:精装带三大件,2900元装标

交房时间:合同约定2025年12月,有可能提前到2024年12月

项目外销证

【成都最具潜力生物医药园区 全国排名前三】

根据《2022中国生物医药产业园区发展竞争力评价及分析报告》中,仅次于中关村国家自主创新示范区和苏州工业园区,稳居国内“第一梯队”

【城市级商圈配置】

约23万方商圈 荟萃繁华

周边大型商业配套加持:

中海环宇坊、天府环宇坊、

银泰城、世豪广场、天府大悦城

毛家湾社区综合体

生物城凯悦嘉轩酒店

菁萃商业街

邻里中心

【开启锦江生态带2.0时代】

建面约108-218m² 江畔公园舒居

占地84.5亩,小区总共736户,超配中庭约 1.5 万方

超大楼间距 最大超200米楼间距

低密理想生活 2.0容积率,绿地率 30%

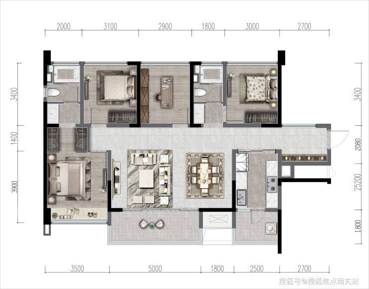
【户型鉴赏】

套三:108、134m²

A户型 建面约108㎡ 三室两厅两卫(东南朝向)

D户型 建面约134㎡ 三室两厅两卫(朝东)

套四:137、142、144、218m²

B户型 建面约137㎡ 四室两厅两卫(朝西)

C户型 建面约142㎡ 四室两厅两卫(西北朝向)

E户型 建面约144㎡ 四室两厅两卫(朝东)

F户型 建面约218㎡ 四室两厅三卫(朝东)

【首付30万起,低门槛入住城南品质舒居】

【天府菁萃里】售楼部热线:028-85558833(已认证)

【天府菁萃里】客户经理电话:13281850333(微信同号)

温馨提示:为了给您提供更高更好的接待服务质量,看房请提前致电售楼部预约!

【有看房车接送服务,如需预约,请致电售楼部】

全部

相关资讯

报名成功
稍后会有专业的置业顾问联系您
返回楼盘

频道导航

返回首页

看房小程序

APP下载

电话拨通后,请您手动拨打分机号

确定拨打电话

电话号码:

分机号:(可能需要拨分机号)