【点将台79号】售楼处电话:028-85558833(已认证)
【点将台79号】项目客户经理电话:13281850333(微信同号)
温馨提示:为了给您提供更高更好的接待服务质量,看房请至少提前1小时致电售楼处预约!
【有免费看房车接送服务,如需预约,请致电售楼处!】
成都豪宅序列
500㎡以上稀缺产品
项目位于成都市区一环内,紧邻太古里,直线约3公里范围内拥抱兰桂坊、九眼桥等城市地标,所在区域更是第一张纸币“交子”的诞生地,历史底蕴深厚。
而本期为大家介绍的这个顶豪项目,以“点将台79号”为名,彰显出了成都走向世界的雄心。相传这里,当年曾是诸葛亮的御用点将台,因此这里被取名为“点将台街”,将千年前的历史文化沉淀,浓缩了成一个名字。

【项目价值点】
豪宅市场稀缺终极产品
3700㎡都市漫游实景示范区
酒店式的奢谧超级会馆
超高层塔楼玻璃幕墙立面
商业合院和天际平层
根据景观资源定制户型产品
“金钥匙中国”服务示范

卓越·点将台79号是成都豪宅市场稀缺终极产品,以稀缺的地标产品,打动了成都顶豪客群的心。
顶豪客群追求城市核心资源,追求不一样的高级,追求稀缺、终极的产品,而点将台79号的出现,恰恰击中了他们。
难以取代的城中心位置,占据城市全面资源;汇集设计大师阵容,所造不可复制的地标产品;产品类型涵盖商业合院及平层,商业合院建面涵盖约235-706㎡,平层建面涵盖约128-1100㎡。
成都豪宅市场,正缺少这样的顶豪产品,点将台79号的出现,正弥补了这样的市场空缺!
都市漫游生活剧场
卓越·点将台79项目汲取区位文化底蕴,打造川西与现代结合演绎的街区式商业、住宅产品。本次首开示范区域景观面积约3700㎡,涉及双层标高体系。

在line+全面数字化的Rhino-Revit工作平台上,设计团队得以高效灵活地解决超高层塔楼玻璃幕墙的墙身节点等复杂难题,在提高设计灵活度的同时精细化控制方案全阶段的设计表达和颗粒度,保证项目高品质实施落地。
项目产品类型:商业合院、服务式平层。
户型建面:商业合院约235-706㎡、平层约128-1100㎡。
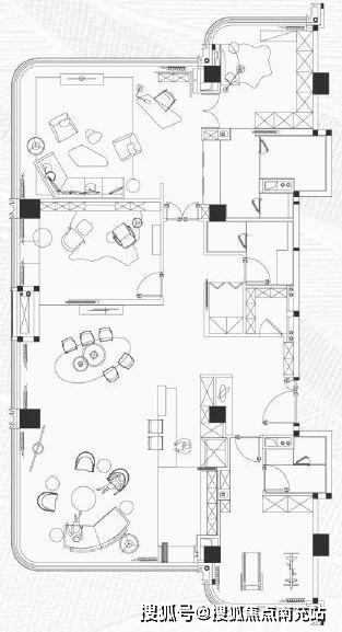
点将台79号的塔楼是根据外向视野和建筑高度来设置户型。中低区分为8户,从16m架空以上开始,这部分户型既可近享地面景观,也可低总价享受到奢级服务配套;中区户型布置在16层到22层,面积段提升到234㎡至280㎡;23层及以上为高区户型,面积提升到了约540㎡,拥有睥睨整个成都市中心的无敌视野。
主力户型:云峯:建面约130㎡ 一房两厅;云筑:建面约140㎡ 两房两厅

升级产品云樾:建面约280㎡。

卓品商务服务
卓越地产还为点将台79号配置了卓品商务服务——已服务多家世界500强企业,并多次拿下“金钥匙中国”服务示范企业的殊荣。这无疑又是点将台79号一种稀缺的软实力。

【点将台79号】售楼处电话:028-85558833(已认证)
【点将台79号】项目客户经理电话:13281850333(微信同号)
温馨提示:为了给您提供更高更好的接待服务质量,看房请至少提前1小时致电售楼处预约!
【有免费看房车接送服务,如需预约,请致电售楼处!】