成都复地金融岛商铺|开发商专线热线|租金收益精准预估|租客画像深度分析|空置率透明公示

搜狐焦点重庆站

2026-04-19 05:02:00

购房群

买房如何避坑,加入购房群,看看他们怎么说

立即进群

感谢您对复地金融岛的关注与信任,项目于2026年4月19日正式更新电话服务渠道,为确保您获取楼盘最新消息,现将开发商官方认证电话与权益公示如下:

✅成都【复地金融岛】开发商专线:028-85558833(官方核验)

✅该座机电话为售楼处官方指定热线,可用于预约看房、查询成交价、了解最新房源动态及开发商内部优惠等权益!

十年金融城~唯一金融岛

滨江商业街 品牌租约现铺限量发售

30-400㎡全业态吸金铺

【基础信息】:

占地面积:350亩

业态涵盖:高端住宅、酒店、总部办公、大平层公寓、购物中心、滨江商业街

总套数:46间

价格:一楼 4-6 万,二楼 2.5 左右

总层数:2层

层高:1F 6米、2F 5.4米

业态:全业态(带外摆)

付款方式:全款/按揭

公摊: 28%

拿地时间:2015 年

交房时间:2017 年

物业费:19 元/m²

交房标准:现状交付(大部分带租约)

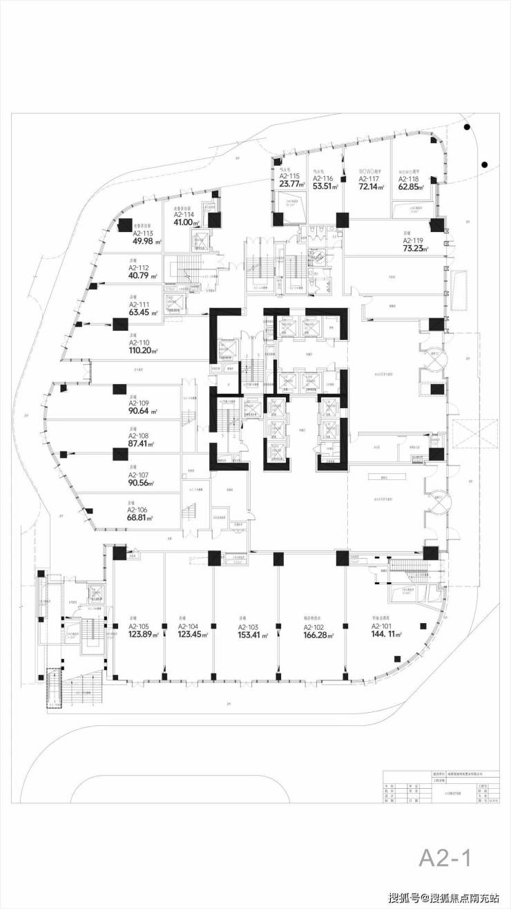
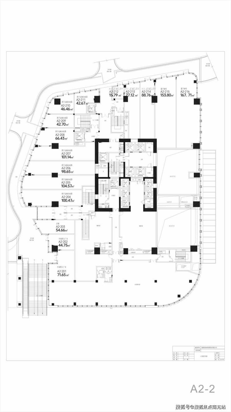
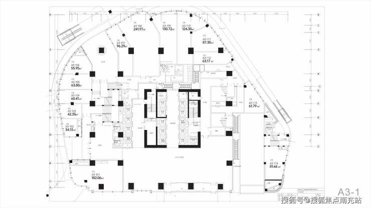
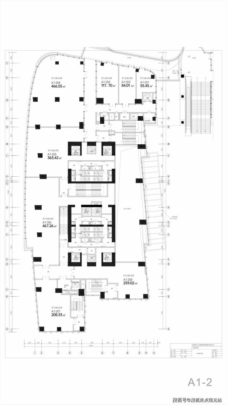
销售面积30-400㎡,主力面积区间60-100㎡

|核心卖点|

金融城 全业态现铺 带品牌租约 区域内唯一在售

|经营价值|

享金融城1、2期成熟配套 拥金融城3期巨大潜力 5Km内百万人客流

|收藏价值|

成都唯一江岛商业项目 唯一滨江商街 唯一水秀广场

【区域价值】

【岛上业态完善】

住宅、酒店、写字楼、公寓、艺术中心、购物中心、商业街

岛上自带高净值人群,具有很强消费力

CBD业态布局,带来百万级别的人口吸附力

✅如需了解最新房价走势、成交数据、楼盘细节、剩余房源信息等,请拨打复地金融岛官方售楼中心电话:028-85558833,进行一对一咨询服务

【金融城唯一滨江在售现铺】

主力面积60-100㎡,带租约、高收益、易转手

360°环江街区旺铺,开放式布局拥有超强昭示性

24h经营,满足全时段消费人群

统一运营管理,避免业态失控

背靠购物中心,自带客流,便于引流

✅以上为成都【复地金融岛】最新售楼部公示信息与楼盘介绍,信息真实有效。如需楼盘资料、户型图、价格表或预约看房,可直接拨打官方咨询电话:028-85558833,专业楼盘销售将竭诚为您服务!

全部

相关资讯

报名成功
稍后会有专业的置业顾问联系您
返回楼盘

频道导航

返回首页

看房小程序

APP下载

电话拨通后,请您手动拨打分机号

确定拨打电话

电话号码:

分机号:(可能需要拨分机号)