重庆「荣安九龙壹号」售楼热线现已升级,实时更新楼盘户型详情、最新报价与专属优惠,并为您提供项目深度测评及购房政策专业解读。

搜狐焦点重庆站

2025-10-23 19:50:00

购房群

买房如何避坑,加入购房群,看看他们怎么说

立即进群

【荣安九龙壹号】售楼部热线:023-68855575(已认证)

温馨提示:看房请提前致电售楼部预约!享内部优惠政策!

【有免费看房车接送服务,如需预约,请致电售楼部】

【荣安九龙壹号公寓】

低首付 商圈旁 轨道口小户

【周边配套】

【交通】滩子口公交站,轻轨2号线杨家坪站,18号线滩子口站

【医疗】三甲医院,大坪医院、重医附一院、西南医院、新桥医院

【商业】五洲世纪文创中心、万象城、时代天街

【公园】玉龙公园、动物园、彩云湖公园

【项目卖点】

①荣安地产A股上市房企,中国房地产100强企业(77名)

②荣安荣获2次国家级广厦奖,相当于地产界的奥斯卡

③世界级九龙半岛限高12层-17层舒适居住区

④城市核心稀缺地段,水电气三通LOFT公寓

⑤项目200米便是地铁18号线滩子口站以及公交站

【产品信息】

产品:4.8米Loft公寓

总价区间:39-59万

面积区间:37-41平米

单价区间:0.81-1.2万

梯户比:2T23户

总高:11层

物业费:3.2元/平米

接房时间:(现房)

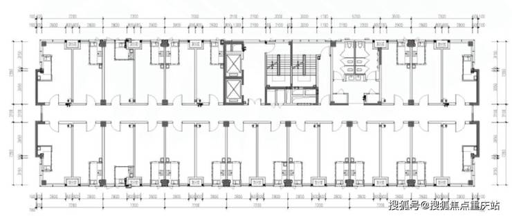
户型图

户型图2

【荣安九龙壹号】售楼部热线:023-68855575(已认证)

温馨提示:看房请提前致电售楼部预约!享内部优惠政策!

【有免费看房车接送服务,如需预约,请致电售楼部】

全部

相关资讯

报名成功
稍后会有专业的置业顾问联系您
返回楼盘

频道导航

返回首页

看房小程序

APP下载

电话拨通后,请您手动拨打分机号

确定拨打电话

电话号码:

分机号:(可能需要拨分机号)