【人居未来城】售楼部热线:028-85558833(已认证)
【人居未来城】客户经理电话:13281850333(微信同号)
温馨提示:为了给您提供更高更好的接待服务质量,看房请提前致电售楼部预约!
【有看房车接送服务,如需预约,请致电售楼部】
中国 · 成都 I 兴城人居 · 未来城

一丶【基本信息】
项目位置:一环路江安河畔
开发商:成都兴城人居地产投资集团股份有限公司
占地面积:约69亩
建筑面积:约11.5万平米
交付标准:精装
物业费:暂定2.5元/㎡/月
容积率:约1.8
绿化率:约35%
总户数:640
机动车位:843
梯户比:1T2丶1T3
楼层总高:8-10
产品面积:112-120-140-142
产品均价:1-1.3万
二丶区位图
三丶项目价值
主城一环高光大作、江安河畔
尽享绿道临近三遗、主城生态中心
全覆盖式商圈、自带河景商业????
5分钟生活圈、教育医疗资源广泛、3-18岁一站式教育服务
智能家庭管家
以成都建设未来公园社区的愿景为基底
为都江堰创新探索未来社区的新型城市人居模式
引入浙江未来社区打造经验历经深研,运势而生
未来社区、智慧生活,一部手机掌控专属住宅

必买理由
国企品牌房企翘楚、九子营城建设都江
核心力
一环主城城市中心
未来社区高端之作
世界级
临近三遗,天府之源,宜居圣地????
稀缺性
帝王标杆,一环土储????
生态绿道,阔尺河景????
超便利
都会醇熟中心圈
拥抱市井的浪漫与热闹????
立体式交通体系 高效生活链
优渥成长教育 修炼未来品格
品质感
人居纯改善高端生态住宅
最宜居
风水宝地、河边晨跑、平均温度10-22℃、清新氧离子、慢生活
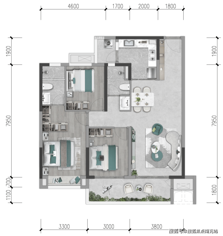
户型图
112㎡
○ 户型方正朗阔,南北布局全明通透;努厅设计,通透布在局,满足中国家庭生清习惯;
○ 约68米大尺度景观阳台,品茗幕天、惬意赏景;
○ L型阳光大制房,科学规划美食变饪流线;
○ 大主卧套房,配步入式衣帽间、卫浴间,尊享私密生活。

120㎡
○ 纯板式智阔三居,约16.6米全景采光面宽,极享调透视野;
○ 约7.1米大尺度情厅,待客与居家的瘫容之享;
○ 约6.6米大尺度景观阳台,曼妙星它与城市灯海美量入怀;
○ 智阔尺度主卧套房,配步入式衣幅闻卫浴间,尊享私密生活;
○ 明厨独配生活阳台,居家厨乐,纵向精客生活。


140㎡
○ 约5.8米开阅愿厅链接阅台,杨数视野接量无拟;
○ 大尺度中式餐厅,适合家庭给聚,礼遇大户人生;
○ 超大厨房链接生活阳台,风光与英味尽享;
○ 室室大飘窗观景识计,时刻沐浴清风与阳光;
○ 套房式主卧,摊交卫浴与涉入式衣罐阅.目成私享字间。

【人居未来城】售楼部热线:028-85558833(已认证)
【人居未来城】客户经理电话:13281850333(微信同号)
温馨提示:为了给您提供更高更好的接待服务质量,看房请提前致电售楼部预约!
【有看房车接送服务,如需预约,请致电售楼部】