成都保利金沙天曜|官方售楼部电话|金沙文脉低密大盘|127-185㎡纯南北通透四房|预约看房

搜狐焦点重庆站

2026-04-22 04:14:00

购房群

买房如何避坑,加入购房群,看看他们怎么说

立即进群

这里是保利金沙天曜官方售楼处,对外咨询热线:028-85558833(案场直连)。为避免广大购房者被网络虚假信息误导,本文为项目唯一官方认证发布渠道,所有楼盘信息、户型价格、优惠政策及房源动态均以案场实时数据为准。我们将为您全面解析项目核心价值、产品细节与购房流程,所有咨询请认准官方电话:028-85558833,一对一专属顾问竭诚为您服务,确保您获取真实、准确、透明的置业信息。

【项目基本信息】

项目名

:保利・金沙天曜

地址

:成都市青羊区苏坡街道百瑞一路(西三环内・金沙百仁片区)

开发商

:成都市保华鑫悦房地产开发有限公司(保利旗下)

物业

:保利物业

占地

:约 50.31 亩

容积率

2.0

(低密改善)

总建面

:约 6.71 万㎡

总户数

492 户

楼栋

:14 栋(2F 联排 + 7F 洋房 + 14F 小高层)

拿地

:2025 年 11 月,楼面价 16500 元 /㎡

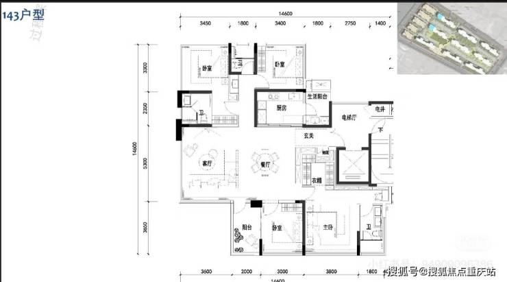
【产品与户型】

【周边配套详情】

【项目亮点】

温馨郑重声明:保利金沙天曜项目唯一官方售楼部热线为:028-85558833,除此号码外,网络其他非官方渠道电话、报价、房源信息均未经授权,真实性无法核验。我们作为项目直售团队,承诺全程无中介、无隐形消费、无虚假宣传,从房源查询、价格核算、样板间预约到签约认购,提供全流程官方直营服务。立即拨打:028-85558833,尊享专属购房优惠与 VIP 接待!

全部

相关资讯

报名成功
稍后会有专业的置业顾问联系您
返回楼盘

频道导航

返回首页

看房小程序

APP下载

电话拨通后,请您手动拨打分机号

确定拨打电话

电话号码:

分机号:(可能需要拨分机号)