成都「云上5号」楼盘热线|户型鉴赏、实时报价及在售房源查询|项目深度解析|购房资格政策解读与最新优惠活动资讯

搜狐焦点重庆站

2025-10-27 20:08:00

购房群

买房如何避坑,加入购房群,看看他们怎么说

立即进群

【云上5号】售楼部热线:028-85558833(已认证)

【云上5号】客户经理电话:13281850333(微信同号)

温馨提示:看房请提前致电售楼部预约!享内部优惠政策!

【有免费看房车接送服务,如需预约,请致电售楼部】

云上5号【LOFT】

绕城内3.5环?地铁旁? 5.9米LOFT? 准现房?通天然气?带屋顶花园

【楼盘基本信息】

? LOFT户型面积:52㎡-73㎡

? 总价:51万起

? 梯户比:2楼7T35户 3楼7T40 4楼7T33

? 是否通天然气:是

? 物业费:4.8元/㎡/月

? 总层数:在售2-4楼

? 朝向:正南北朝向

? 容积率:3.98%

? 绿化率:20%

? 公摊:48%-50%

? 车位:346个

? 交房时间:2025年12月31日

云上5号商业 · 核心价值点

【大丰核心区】3.5环无敌商业配套,1公里范围内,龙湖天街,保利广场,绿地城,城北优品道,四大品牌旗舰商业聚集。

【 双地铁物业】地铁5号线皇花园站(300米)和石犀公园(600米)自住投资两相宜。

【准现房发售】项目已经进入竣工验收阶段,交房时间为2025年12月底,不用担心烂尾。

【天然气到户】所有LOFT均已通天燃气,大大提升居住属性,做饭爆炒都没问题,使用成本更低。

【带花园公寓】项目5层开发商打造800平米空中花园,遛狗撸猫有自己的花园,放心当个铲屎官

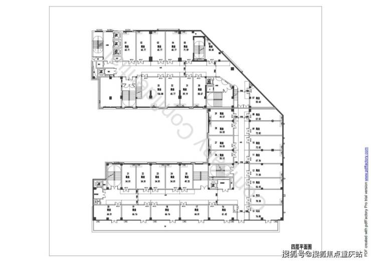
平面图

【云上5号】售楼部热线:028-85558833(已认证)

【云上5号】客户经理电话:13281850333(微信同号)

温馨提示:看房请提前致电售楼部预约!享内部优惠政策!

【有免费看房车接送服务,如需预约,请致电售楼部】

全部

相关资讯

报名成功
稍后会有专业的置业顾问联系您
返回楼盘

频道导航

返回首页

看房小程序

APP下载

电话拨通后,请您手动拨打分机号

确定拨打电话

电话号码:

分机号:(可能需要拨分机号)