重庆「中粮瑞府」售楼处热线丨最新特惠房源信息丨楼盘深度评测丨9月动态实时更新丨一手房源资讯

搜狐焦点重庆站

2025-09-03 18:08:00

购房群

买房如何避坑,加入购房群,看看他们怎么说

立即进群

【中粮瑞府】售楼部热线:023-68855575(已认证)

温馨提示:看房请提前致电售楼部预约!享内部优惠政策!

【有免费看房车接送服务,如需预约,请致电售楼部】

中央公园北最高品质楼盘

项目:中粮·中央公园瑞府

品质价值体现:

【项目迎来清盘首次大降价活动】

【央企现房】【纯T2】【TOP级】

中央公园片区精装交付品质天花板:

1.小户型字母双开门设计,材质选用钢木复合门,区别周边竞品钢制单开门,造价成本更高,防火性,隔热性,隔音效果,安全系数更高。

2.户内门全部采用通高定制设计,非常大气,但是成本会更高,因为这都需要定制(周边项目万科濮园、越秀、润府、象屿都未能达到这个效果),包括很多家装都未做到通高设计;户内门采用隐藏磁吸式门吸,更安全(目前中央公园在售项目中唯一采用此设计);

3.地砖搭配美缝设计,美缝更耐脏、更易清洗、更美观,但成本更高(一般40元/㎡左右),璞园、越秀、润府等项目都未做美缝设计;

4.厨房门,金属+黑色钢化玻璃材质,极窄边框门,双阻尼系统设计吊滑门,周边楼盘大多采用木纹边框无阻尼设计,优势:人性化设计不夹手指,极窄边框不仅美观设计感强、好搭配成本更高质感更好;

5.橱柜采用欧派或同等价值品牌定制,橱柜柜面采用高光烤漆工艺,外观美观,仅次于钢琴烤漆工艺,耐油污好做清洁。像润府、越秀厨房柜面就是哑光面,璞园更是普通喷漆柜面)

6.卫生间浴室镜一键除雾功能细节人性化设计,周边楼盘都没有;

7.飘窗没有承重墙可全打,可利用率高;

8. 精装配置三大件,新房地暖中央空调,区别周边项目大部分只有两大件如万科璞园无地暖,越秀无中央空调,配置更高且精装房三大件无法后期加装。

9.主卧室落地窗设计,户内采光通风效果更好,外立面玻璃面更多,造价成本更高,周边目前只有天玺和润府是落地窗。

10.全屋墙纸交付,品质感更高,造价成本更高,除润府,天玺,周边项目都是白墙交付。

11.客厅采用金属踢脚线,后期使用寿命更长,更具有质感,周边都是使用木制踢脚线,拖地水渍会腐蚀使用寿命更短,造价成本更低。

12.酒店式门厅设计,全木材覆盖墙面。

项目产品信息:

一期现房

♻️在售楼栋:8#9#10#

?上叠:建面143㎡ 3F

❇️露台约80平

❇️实?️面积约240平

❇️单层面积:1F约84平,2F约95平,3F约62平

✅总价:251-275万

?下叠:建面143㎡ 2F

❇️前后花园:60-70平

❇️单层面积:约84平

❇️使用面积约220-240平

✅总价区间:275-320万

‼️8号楼下叠自带约70㎡地下室、5.3米挑高

◇稀缺板式上下叠

◇现房已接房 ;1T2户

◇单层层高:3.15米

◇物管费:4.8元/平

区域配套:

1、中粮品牌,世界500强,实力央企,中国商业地产旗舰—大悦城,品牌值得信赖!中粮TOP级产品瑞府系——豪宅标杆(北京瑞府1亿1栋,成都瑞府1500万级大平层)

2、 区域35家市区级政府单位陆续落地

政府采用配套先行政策,先配套再造城,已经在我区域内修建成型的如重庆市检察院,重庆档案馆,渝北国土局,地质勘察院,重庆报业集团,重庆有线电视台,重庆市人社局,渝北行政中心等行政办公机构,以及重庆文化艺术中心等。 城市的发展是政府在哪里,哪里就是中心。

3、举步即商圈:直线距离约3KM-中央公园600万方商业中心,龙湖公园天街/大悦城/吾悦广场已开业(合景悠方预计2023年开业);

4、快速中枢网:7横7纵5轨道全维交通体系规划(出门即是轨道5号线悦港北站(480米),轨道9/5/3号线已通车,公园西路预计2024年通车);

5、8大公园群:亚洲最大城市公园【中央公园】,约700亩花石沟公园(在建中,预计2023年建成)等8大公园群环绕,生活宛若置身森林营地;

6、高配资源芯:仙桃数据谷、两江商务中心、三甲医院、周边诸多学校护航成长

7、周边知名房企:中粮、龙湖、华润、万科等实力企业高端产品落子板块,高知话语权逐步成型;

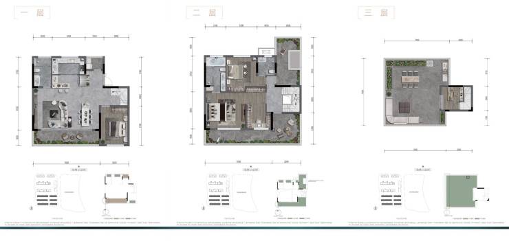
项目户型图

一期别墅

下叠

上叠

项目优势:

央企巨制——高端系列瑞府系品质

1、中粮TOP级产品瑞府系——豪宅标杆(北京瑞府1亿1栋,成都瑞府1500万级大平层)

2. 小区实景园林呈现,3500㎡下沉园林打造所见即所得。知名单位设计师设计,大师手笔,代表作:中国十大豪宅中粮海景壹号和汤臣一品、金科九曲河、中海寰宇天下等

3. 外立面设计现代简约风格采用大面积铝板+玻璃,区别周边真石漆涂料,铝板玻璃造价成本更高,后期房子保值增值空间更大。

4. 1T2户纯板式洋房社区,产品均为南北通透,区别周边90%1T4假洋房居住舒适度更高,后期买卖二手房产品更稀缺,溢价空间更大,出手速度更快,且无竞品。

5. 建面124㎡1T2户精装板式洋房产品稀缺性目前整个中央公园同面积产品基本为1T4户。

【中粮瑞府】售楼部热线:023-68855575(已认证)

温馨提示:看房请提前致电售楼部预约!享内部优惠政策!

【有免费看房车接送服务,如需预约,请致电售楼部】

全部

相关资讯

报名成功
稍后会有专业的置业顾问联系您
返回楼盘

频道导航

返回首页

看房小程序

APP下载

电话拨通后,请您手动拨打分机号

确定拨打电话

电话号码:

分机号:(可能需要拨分机号)