成都「黄龙溪谷枫林岸」售楼部电话|9月动态更新|一房一价查询|最新购房政策

搜狐焦点重庆站

2025-09-06 11:40:00

购房群

买房如何避坑,加入购房群,看看他们怎么说

立即进群

【黄龙溪谷枫林岸】售楼部热线:028-85558833(已认证)

【黄龙溪谷枫林岸】客户经理电话:13281850333(微信同号)

温馨提示:为了给您提供更高更好的接待服务质量,看房请提前致电售楼部预约!

【有看房车接送服务,如需预约,请致电售楼部】

【超四代空中院】黄龙溪谷•枫林岸组团新品迭代亮相?

成都三大高端住区之一,5000亩湖山大境,国际城南核心圈

生物城板块南侧,剑南大道直达,紧邻4A级景区黄龙溪古镇

西南奢养首选地,天府墅居第一谷

超四代空中院,一户四花园,面积超56㎡?私享的生态院落

更大的得房率,更舒适的梯户比,更高保护的居住私密性

?枫林岸组团新品基础信息??

组团占地:约134亩

总建筑面积:约27万方

容积率:2.161(整盘约1.38)

主力户型:建面约95-128㎡

得房率:123%~140%(实得118-176㎡)

梯户比:2梯4户、3梯4户、3梯5户

层高:3m(阳台挑高6m)

产权:70年

开发商:优品道置地

物业服务:优品道物业(中国百强物业)

枫林岸组团位于溪谷的西区,与清峯岸、沁云湾、天空屿、林溪屿等组团共同组成了活力水岸住区;

它南瞰溪谷自然大境,东接约6万㎡的优品道商业广场和星级度假酒店,繁华万象下楼即享;西邻岷东大道约70米宽的生态绿廊;

?外瞰湖山千亩 内揽万平艺术中庭??

超级大中庭:该组团由12栋建筑点板结合布局,围合而成2万平米的超级大中庭(相当于3个足球场大小),单栋建筑层数以24~26F为主,形成绝美城市天际线,实现了超百米的阔绰楼间距(即使相近楼栋观景面距离也超40米),最大程度上让每户的景观视野为最优;

高配置梯户比:2梯4户,3梯4户,3梯5户,舒适性拉满;

约600米罕见的中轴楼距

极目视线,清风对流、阳光自然通透;外拥千亩湖山盛景,内游下沉式园林,私享空中秘密花园,三重景观资源强化叠加,享更优的绿色鲜氧生活;

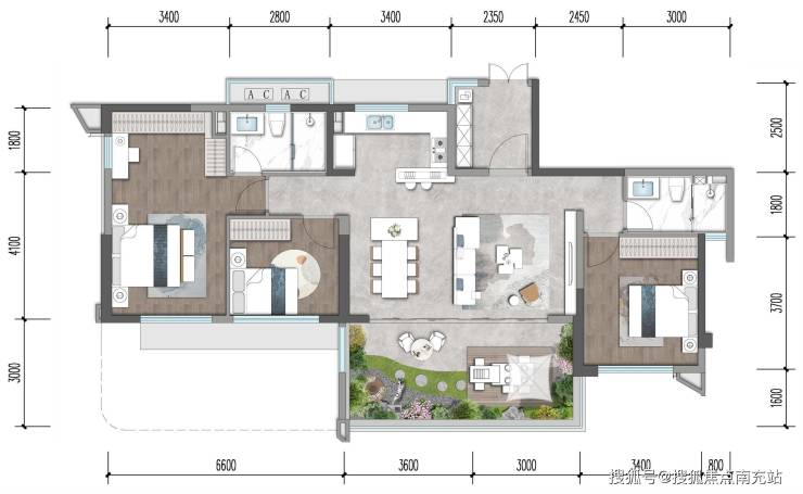
?明星户型赏鉴??

A1户型建面约123㎡,实得约176㎡(得房率140%),四室两厅两卫;

· 处于组团中心位置,直瞰中庭景观,享百米视野;

· 19.7米超大面宽,以尺度鉴峯层

· 无界端厅,270°全景舱式观景与采光;

· 入户花园+空中花园双系统,墅级居住体验;

C2户型建面约128㎡,实得约176㎡(得房率138%),四室两厅两卫;

· 四面宽奢阔开间设计,板式楼型布局,采光通风优;

· 南向13.5m长的跑道级空中花园,面积40余平米;

· LDKB一体化设计,满足更舒适的家庭互动关系;

· 三梯四户配置高,星级入户大堂;

H3户型建面约103㎡,实得约141㎡(得房率137%),三室两厅两卫;

· 南向17.4米的奢阔面宽设计,全明采光;

· 超大横厅直连+空中花园,尊享墅级舒居尺度;

· 超20㎡星级主卧套房配步入式衣帽间,奢想拉满;

· 户型可塑性强,可灵动改造为豪华双主卧套房;

J1户型建面约95㎡,实得约131㎡(得房率138%),三室两厅两卫;

· 经典竖厅布局,空间高效利用;

· 入户花园+空中花园等多系统,面积约33㎡ 得房率高;

· 7.1m宽 L型花园,超大观景视角;

· 三梯五户配置高,星级入户大堂;

【黄龙溪谷枫林岸】售楼部热线:028-85558833(已认证)

【黄龙溪谷枫林岸】客户经理电话:13281850333(微信同号)

温馨提示:为了给您提供更高更好的接待服务质量,看房请提前致电售楼部预约!

【有看房车接送服务,如需预约,请致电售楼部】

全部

相关资讯

报名成功
稍后会有专业的置业顾问联系您
返回楼盘

频道导航

返回首页

看房小程序

APP下载

电话拨通后,请您手动拨打分机号

确定拨打电话

电话号码:

分机号:(可能需要拨分机号)