成都「中港CCPARK」十月全方位测评:深度解析项目最新进展、户型设计优势与优化建议,并提供专业置业指南及售楼处联系方式。

搜狐焦点重庆站

2025-10-22 12:33:00

购房群

买房如何避坑,加入购房群,看看他们怎么说

立即进群

【中港ccpark】售楼部热线:028-85558833(已认证)

【中港ccpark】项目客户经理电话:13281850333(微信同号)

温馨提示:为了给您提供更高更好的接待服务质量,看房请提前致电售楼处预约!

【有免费看房车接送服务,如需预约,请致电售楼处】

位于繁华的成都市锦江区,中港CCPARK是一个集自然美景、商业繁荣和高端住宅于一体的综合社区。这个项目坐落于东二环和琉璃路交汇处,由成都中港置业有限公司精心打造,凭借其独特的地理位置、完备的配套设施和优质的生活环境,成为城市中一颗璀璨明珠。

中港CCPARK坐落于成都市南二环核心地段,紧邻地铁6号线和8号线的换乘站点,周边路网发达,多条公交线路穿梭其间,无论是前往市中心还是其他区域都极为便利。项目不仅坐拥百万方潮流阵地,还连贯东湖、望江、沙河三大公园,构建起城市的绿肺系统,让居民在繁忙的都市生活中也能享受到自然的宁静与美好。

【项目基本参数】

在售面积:47-75平(主力55平)

层 高:4.2米

在售均价:18500元/平

交付标准:清水(隔板未搭建)

总层高:23层

物管:6元/平

物业公司:中港物业

总货源:168套

梯户比:1-3楼为商业,4楼起售

4-13楼:4梯14户 ,14楼:4梯13户

15-22楼:4梯14户,23楼:4梯4户

交房时间:2022.6月30号

公摊:28%

三通情况:通水电不通气(有烟道)

付款方式:全款/首付5成

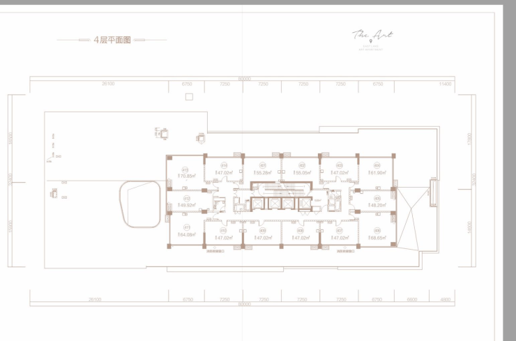
平面图:

4.2米户型

中港CCPARK的建筑设计同样令人瞩目。项目采用超高层、塔楼等现代建筑形式,结合钢筋混凝土结构,打造出一座座挺拔而优雅的建筑群。项目还邀请了全球知名的设计团队参与规划设计,包括RTKL、JERDE等,将美学经典与现代科技完美融合,旨在打造中国西南地区的标志性建筑。

【中港ccpark】售楼部热线:028-85558833(已认证)

【中港ccpark】项目客户经理电话:13281850333(微信同号)

温馨提示:为了给您提供更高更好的接待服务质量,看房请提前致电售楼处预约!

【有免费看房车接送服务,如需预约,请致电售楼处】

全部

相关资讯

报名成功
稍后会有专业的置业顾问联系您
返回楼盘

频道导航

返回首页

看房小程序

APP下载

电话拨通后,请您手动拨打分机号

确定拨打电话

电话号码:

分机号:(可能需要拨分机号)