招商依云国际社区(售楼中心)首页网站-2025昆明招商依云国际社区欢迎您丨户型配套/样板间/价格

搜狐焦点大理站

2025-07-21 13:06:00

购房群

买房如何避坑,加入购房群,看看他们怎么说

立即进群

招商依云国际社区售楼处电话:0871-6633-0577

金牌置业顾问:19987733102(微信同步)

售楼中心地址:0871-6633-0577(致电发送详情地址)

项目详情

占地面积:1690亩

建筑面积:约248万方

产权年限:70年

绿化率:40%

容积率:3.93

产品类型:高层,洋房,合院,叠拼

交房标准:高层洋房:精装;合院叠拼:毛坯

招商蛇口率属于国家招商局集团旗下,是国务院国资委直接管辖下的国有骨干企业,也是我国四大中资驻港企业集团之一,总规模总利润在央企排名第一。

交通配套

一港:昆明长水国际机场;二铁:沪昆高铁、渝昆高铁;六路:杭瑞高速、嵩昆大道、空港大道、绕城高速、嵩昆高速、320国道;两轨:新区轨道2号线以及嵩明快线。项目内部有6条主干道,分别为沐春大道、栖夏大道、颂秋大道、吟霜大道、彩韵大道、渲花大道,整体以春夏秋冬为主题,并配合不同的树木花卉,营造四季多彩的生活体验。

医疗配套

项目规划有一座三甲综合医院与一座康养医院,在综合医院方面,我们将配合政府积极引入国内知名医院,以加强整个昆明的医疗实力;除此之外,项目内部还将打造一座健康养老中心,涵盖养老及1000平米的老年俱乐部。

教育配套

项目内部规划有6所幼儿园,2所小学,1所30班中学,形成从幼儿园到初中一站式教育体系,预计引入优质教育资源。

商业配套

项目规划有国际五星级酒店,国际高端公寓,将会引进高端国际酒店品牌,国际餐饮娱乐机构,为国际商务人士提供高端的休闲场所。本案配有三大商圈+一条主题商业街,形成项目独有的商业环。三大商圈分别为中心商业,以及邻里商圈,分布在项目的上中下。

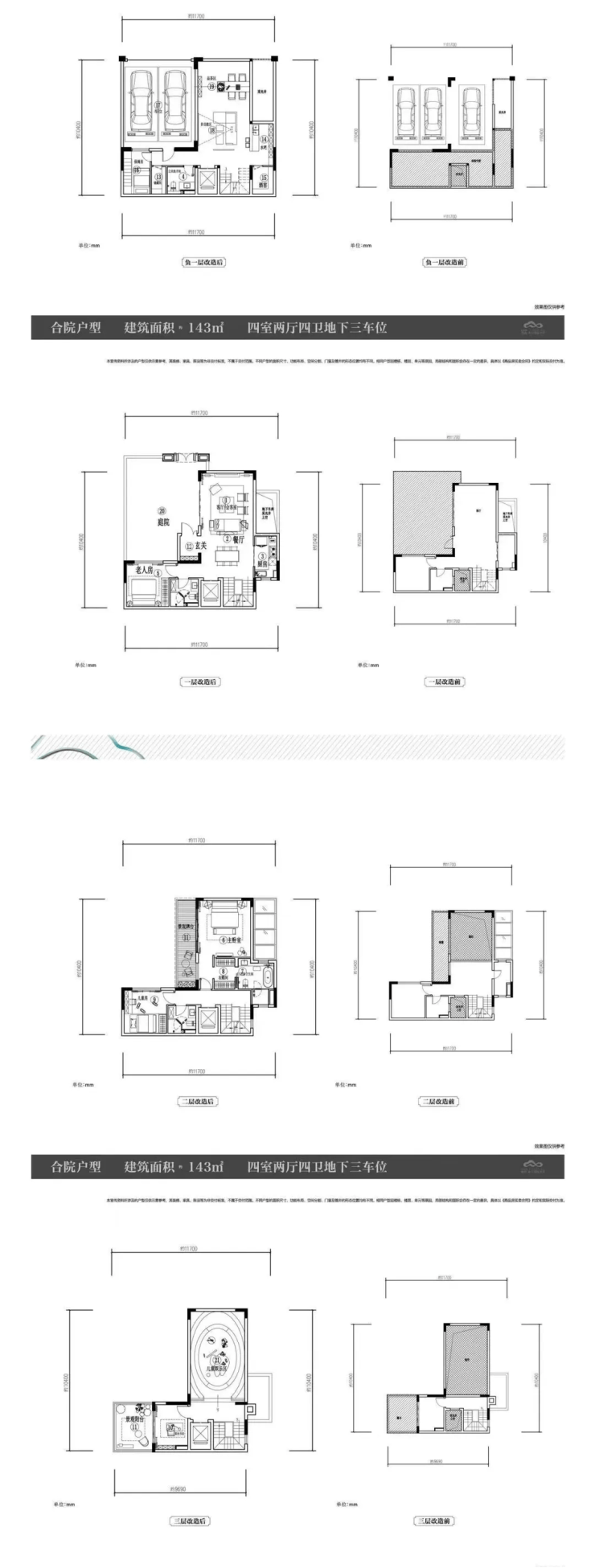
合院户型

招商依云国际社区售楼处电话:0871-6633-0577

金牌置业顾问:19987733102(微信同步)

售楼中心地址:0871-6633-0577(致电发送详情地址)

全部

相关资讯

报名成功
稍后会有专业的置业顾问联系您
返回楼盘

频道导航

返回首页

看房小程序

APP下载

电话拨通后,请您手动拨打分机号

确定拨打电话

电话号码:

分机号:(可能需要拨分机号)