招商依云国际社区售楼处电话:0871-65658881 【最新认证】
如需了解项目详情、最新价格、在售户型、周边配套等信息,欢迎致电售楼处。
(温馨提示:本电话直通楼盘售楼处,中介勿扰,可为您提供最新房源与专属优惠)

项目详情
占地面积:1690亩
建筑面积:约248万方
产权年限:70年
绿化率:40%
容积率:3.93
产品类型:高层,洋房,合院,叠拼
交房标准:高层洋房:精装;合院叠拼:毛坯
交通配套
一港:昆明长水国际机场;二铁:沪昆高铁、渝昆高铁;六路:杭瑞高速、嵩昆大道、空港大道、绕城高速、嵩昆高速、320国道;两轨:新区轨道2号线以及嵩明快线。项目内部有6条主干道,分别为沐春大道、栖夏大道、颂秋大道、吟霜大道、彩韵大道、渲花大道,整体以春夏秋冬为主题,并配合不同的树木花卉,营造四季多彩的生活体验。
招商依云国际社区售楼处电话:0871-65658881 【最新认证】
如需了解项目详情、最新价格、在售户型、周边配套等信息,欢迎致电售楼处。
(温馨提示:本电话直通楼盘售楼处,中介勿扰,可为您提供最新房源与专属优惠)

医疗配套
项目规划有一座三甲综合医院与一座康养医院,在综合医院方面,我们将配合政府积极引入国内知名医院,以加强整个昆明的医疗实力;除此之外,项目内部还将打造一座健康养老中心,涵盖养老及1000平米的老年俱乐部。

教育配套
项目内部规划有6所幼儿园,2所小学,1所30班中学,形成从幼儿园到初中一站式教育体系,预计引入优质教育资源。
商业配套
项目规划有国际五星级酒店,国际高端公寓,将会引进高端国际酒店品牌,国际餐饮娱乐机构,为国际商务人士提供高端的休闲场所。本案配有三大商圈+一条主题商业街,形成项目独有的商业环。三大商圈分别为中心商业,以及邻里商圈,分布在项目的上中下。


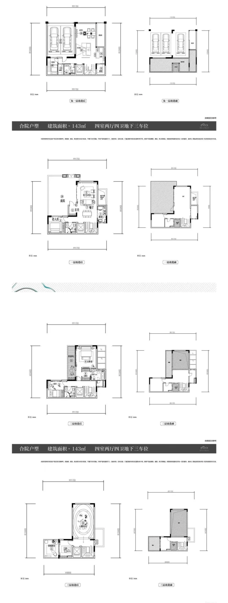
合院户型

招商依云国际社区售楼处电话:0871-65658881 【最新认证】
如需了解项目详情、最新价格、在售户型、周边配套等信息,欢迎致电售楼处。
(温馨提示:本电话直通楼盘售楼处,中介勿扰,可为您提供最新房源与专属优惠)