绿城凤起兰庭
☎售楼处热线:0871-6633-0577【售楼中心】
置业顾问:18087748759(微信同号)
置业顾问:15391331157(微信同号)
➤售楼处直销【内部房、内部价优惠】!中介勿扰!
预约看房享免费看房车接送、自驾有报销;
【区位和交通】
凤起兰庭位于西山区希望路金桂苑(日新东路)东北侧约110米,紧邻万达双塔,处于双塔区核心区。周边发展已相对醇熟,配套完善,为项目未来的保值增值性提供了有力基础

项目紧邻城市主干道日新路和二环南路,紧邻盘龙江,自驾十分方便。

此外,项目临近在建的地铁2号线二期“玉龙”站(预计1-2年通车),与地铁站距离约800米左右,周边还有日新东路口(希望路)、佳湖花园(日新东路)等公交站点,途径线路20余条,公共交通出行便利。
总结:地理位置优越,交通便利,区域发展已相对醇熟,规划完善,未来仍有一定的保值升值空间。
【整体规划】
凤起兰庭项目占地约72亩,分两期开发,一期为高层住宅;二期为办公楼和裙房商业,地块整体设置1层地下室,局部设置2层地下室。

一期容积率为3.7,规划有9栋高层住宅,均为正南北朝向,总层高在24-31层之间,为2T2户、2T4户设计,精装交付。
值得一提的是项目架空层部分,约4.5-7.8m架空层层高堪比酒店大堂,打造的泛会所涵盖7大主题功能空间,不但可以在这些空间里运动健身、品茶阅读,还能会客……既符合全年龄使用,又全生活场景覆盖,未来将为业主带去更加放松且实用的居住体验。

景观设计方面,园区约5000㎡中央游泳池花园——兰庭湖为中心对称展开,六大宅间花园错落其间。五星度假酒店式泳池景观系统,让绿城的“海豚计划”在昆明延续,也让泳池、花园景观与活动休憩空间形成一个整体,将水更好地融入业主生活。

总结:社区内部规划合理,在满足业主日常需求的同时,也有实用宜居的社区环境,整体生活舒适度高。
【产品与户型】
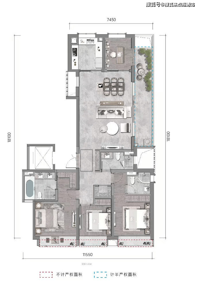
目前,凤起兰庭主推建面约143㎡和175㎡户型,均已开放实体样板间。

建面约143㎡户型,为四室两厅两卫设计,该户型采用经典竖厅设计,整体格局方正,南北通透,约10米的景观阳台,采光通风俱佳。
客餐厅一体化的设计,既实现了两个空间的职能,又让活动空间更充足,还使得整体空间更加宽敞明亮。
这个户型最大的特点是四面宽朝南,南向三个卧室,南北通透,非常适合改善家庭居住。

建面约175㎡户型。

这个户型为四室两厅三卫,对于和父母同住的人来说,双套房设计让不同作息习惯的家人间能够互不干扰,也避免了共用卫生间的尴尬。
主卧空间丰富,可容纳双盆、浴缸、淋浴,满足各种使用习惯,非常人性化。
户型也采用“户型也采用”LDKS-B“空间模式,客厅、餐厅、厨房、书房、阳台联动开放,配合地砖铺装,不仅增强了室内空间的透明度,而且增强了家庭之间的沟通。
此外,为了保证充分的透明度,凤起兰庭还配备了推拉门密封窗,使用大玻璃,窗外风景一览无余,使室内外无界连接。室内采光更好,视野更广,透气性更好。

值得一提的是,凤起兰庭还开设了工艺样板间,不仅将工艺样板全部透明开放,还将精装细节逐一拆解。
例如,凤起兰庭深度定制的六种工艺系统中,通过全卧室系统门窗、全系统高标准双层LOW-E中空玻璃、螺旋消音管、卧室木地板隔音垫、室内门锁静音等多种隔音降噪系统,创造健康舒适的生活环境,有效缓解噪声污染。
同时,凤起兰庭还配备了市场上非常罕见的全屋净水软水系统,细节也考虑到位。
【周边配套】
商业方面,项目距万达广场约500米,周边约2公里,有欢乐城、南亚风情第一城等商业区,购物娱乐非常方便。
教育方面,项目周边有北清实验学校、海北中英文小学、海青外国语学校、书林一小(在建)等学校。整个双塔区还计划建设多个教育用地。未来业主子女上学方便,这也是其他地区豪宅项目缺乏的重要配套设施。
医疗方面,项目南约1.2公里为昆明儿童医院,北约3公里为昆明第一人民医院,医疗设施优秀。
此外,项目毗邻盘龙江,也靠近龙江公园,可欣赏盘龙江景观,是饭后散步的好去处。
总结:地理位置优越,周边商业、教育、医疗、景观等配套设施十分丰富,生活便利。
【项目优势分析】
1、开发商为绿城,品牌实力强,品质有保障;
2、地处双塔片区核心区位,产品高端,适合改善置业者;
3、户型设计优越,外立面质感高级,舒适度高;
4、园林景观与架空层兼具设计感与实用性;
5、园林实景呈现,工艺细节所见即所得。
☎售楼处热线:0871-6633-0577【售楼中心】
置业顾问:18087748759(微信同号)
置业顾问:15391331157(微信同号)
➤售楼处直销【内部房、内部价优惠】!中介勿扰!
预约看房享免费看房车接送、自驾有报销;