昆明海荣滇池澜庭售楼处- 2025最新房价丨在售户型详解丨项目详情丨营销中心丨 优缺点!

搜狐焦点大理站

2025-10-29 09:08:00

购房群

买房如何避坑,加入购房群,看看他们怎么说

立即进群

海荣滇池澜庭售楼处电话:0871-6633-0577

金牌置业顾问:19987733102(微信同步)

售楼中心地址:0871-6633-0577(致电发送详情地址)

【开发商】海荣集团

【总占地】67亩

【建面】201485.24㎡

【物业】万科物业

【物业费】2.36元/㎡

【容积率】3.5

【绿地率】37%

【在售地块】一期7,12栋;二期2、6栋

【在售产品】住宅

【在售面积】

2栋:中户:101 、108 、 131㎡

7栋:中户:108㎡;端户:128㎡

12栋:中户:111㎡;端户:131㎡

6栋:中户:111㎡;端户:131㎡

【总楼栋层高】15层/25层/30层/28层

【T户比】7栋、12、6栋2T4户; 2栋 2梯5户

【装修标准】毛坯

【交房时间】一期25年3月,二期25年9月

距滇池约1km 高端人居代名词

六大湿地公园环伺 乐享生态宜居

项目周边生态资源优越,捞鱼河湿地公园、斗南湿地公园、滇池生态湿地公园、王官湿地公园、海东湿地公园等六大湿地公园将项目环保其中,出门即湿地;滇池环湖生态带6.29万亩,土地不可复制,资源不可再生,一席难求,值得珍藏。

与地铁距离约50米 真正的地铁物业

项目距地铁4号线梅子村站约50米,真正地铁物业,无缝畅达主城、机场、高铁站,交通优势明显,生活畅达自如,出行无忧,高效串联全城。

六大商圈环伺 吃喝玩乐购无忧

两公里内辐射万达广场、七彩云南第壹城、吾悦广场、沃尔玛生活广场、金龙农贸市场、斗南花卉市场等六大商圈,自配超约12万方商业,未来将依托海荣品牌资源,打造国际化商街,不仅满足社区需求,更将为片区商业加码。

民大附小旁 出家门入校门

项目与云南民族大学附属小学斗南校区约100米之距,让孩子近享优质教育。作为云南作为云南民族大学高位引领及资源助推下的一所高品质小学,曾被评为“云南民族优秀文化教育示范学校”。对于拥有优教资源的住宅而言,不仅让孩子赢在了起跑线,也让资产在市场拥有强保值的属性。

甲级医院保障 24小时健康守护

项目东侧约2公里,位于富康路上建有昆明市延安医院呈贡医院(呈贡区人民医院:二甲医院)。项目东侧约5公里,位于春融东路上还建有昆明医科大学第一附属医院(云大医院:三甲医院)。项目东南侧约5公里处,位于联大街上还建有昆明市中医医院(三甲医院)、昆明城东医院。健全三甲医疗配套,24小时守护全家人的健康。

围合式布局规划景 超大楼间距

滇池澜庭采用板式围合建筑布局,大面积中庭景观,以宽阔楼间距让空间顺应自然的呼吸、光照与取景,舒适、愉悦的空间,风、光、景的设计,大幅度提高房屋的采光与通风,入目所及皆满园绿意与生机。

五大景观主题打造 全龄园林景观设计

滇池澜庭将环境融于景观之中,打造五大景观主题——疏林漫步、儿童天地、邻里私语、轻氧运动、时光草坪。通过毗邻社区公园、便捷繁华集市、尊贵递进的归家礼序、感受四季时光变化和舒适的中庭林下空间和多彩邻里共享空间打造特色的“五重景观体系”。给予业主带雅致舒适的、全龄功能和注重自然生态的社区生活。

随着人居生活水平的不断提升,架空层在业主健康和生活品质方面有了更多的倾注,逐渐演变成了大人物们在闲暇时享受生活的小圈子。本案规划大面积架空层,打造书画吧、棋牌室、健身吧、午后茶吧、萌宝乐园、社区活动室等空间,无限延展生活乐趣。

观滇板式华宅对话天与地 臻藏花与海

于滇池边打造建面约98-128㎡观滇板式华宅。采用更舒适的全明板式设计,超大可拓展面积。所有产品卧房与卫生间皆为全明设计,同时规划可拓展空间的飘窗,空间高赠送率;产品设计约6m以上轩阔宽境阳台;横厅设计,彰显尺度空间;高可拓展空间、高得房率,每一寸空间都不被浪费。

万科物业 一级物业资质保障

滇池澜庭与万科物业携手,以住宅、资产、智能科技、生活、睿服务·三大管家等五大服务体系,为泊心社区业主带来真正的滇畔繁花心级居家体验,帮助客户解决更多元的生活需求。

项目地块总平图

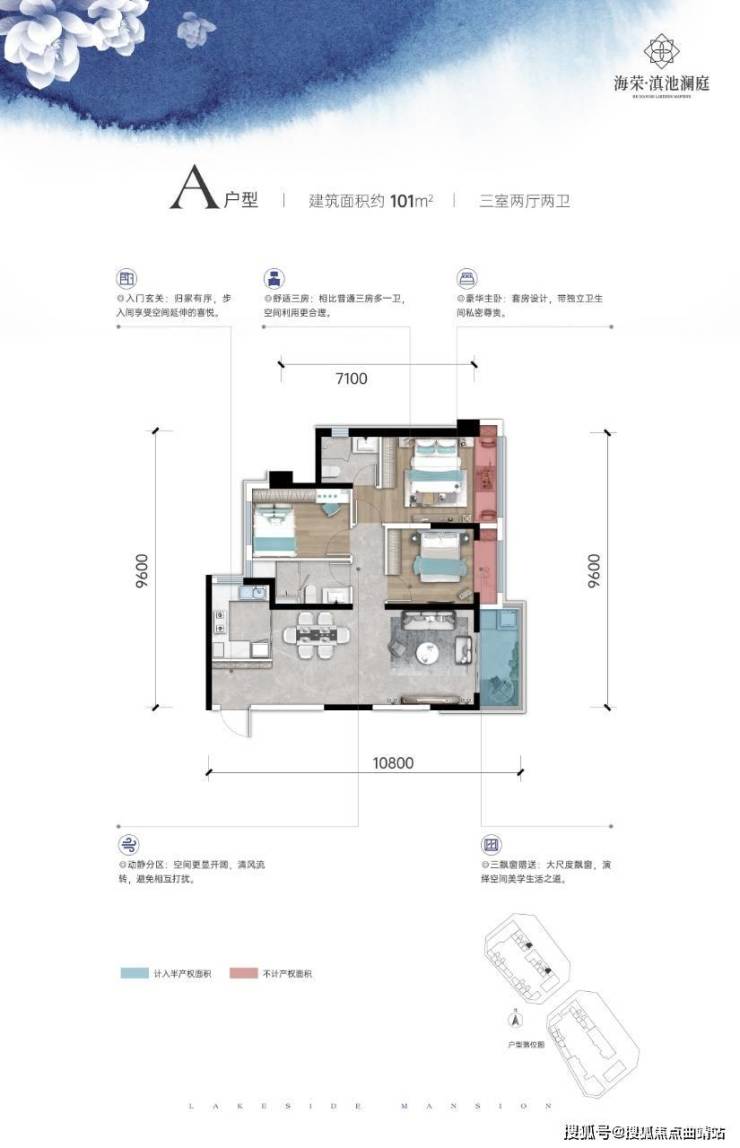
户型图鉴赏

海荣滇池澜庭售楼处电话:0871-6633-0577

金牌置业顾问:19987733102(微信同步)

售楼中心地址:0871-6633-0577(致电发送详情地址)

全部

相关资讯

报名成功
稍后会有专业的置业顾问联系您
返回楼盘

频道导航

返回首页

看房小程序

APP下载

电话拨通后,请您手动拨打分机号

确定拨打电话

电话号码:

分机号:(可能需要拨分机号)