2026 年的春天来得格外早,气温回暖之际,成都楼市也迎来一轮亮眼 “小阳春”。
【3月供销数据亮眼】
3月新房供应面积82.99 万㎡,环比增长143.8%,房企推盘节奏明显加快;备案成交面积 73.97 万㎡,环比上涨 94%,供销比0.89,市场整体呈现供不应求态势。

(图片资料来源:克而瑞)
【需求结构转变】
自 2025 年至今,改善需求已然成为成都新房市场的主流。据克而瑞数据,100-140㎡刚改及品质改善户型占比,从2025 年一季度的53%攀升至57%,置换升级需求持续释放。
不难看出,当下购房者的置业理念已然转变,不再仅仅满足于基础居住、有房可住,购房需求全面升级,更加注重居住舒适度与房屋综合品质,追求更高质量的居住体验。

(数据来源:CRIC市场顾问)编辑
——
官方售楼处核心信息公示:尊敬的购房者:为进一步优化客户体验,提高服务信息的准确与效率,即日起,本项目正式启用全国统一官方认证专线:028-83516246。本次升级整合了原售楼部、营销中心、开发商及展示中心四大沟通渠道,为您提供一站式、全年无休的一对一专业咨询
成都【上璟润府·云溪院】开发商案场核心座机:028-83516246(开发商4月最新认证)
售楼处价格,户型图,地址,电话,样板房,周边配套,项目介绍
看房须知:看房无任何费用,请提前1小时电话预约,免排队、专业顾问一对一接待
。
【有免费看房车接送服务,如需预约,请致电售楼处】
———
【上璟润府·云溪院】东三环惟此 | 超越新规改善墅作|华润置地主城改善公园大盘

【上璟润府·云溪院】是华润置地在成都打造的改善型住宅项目,位于龙泉驿区十陵镇大运村路,主打“四类生活+六大价值维度”的社区系统,融合住宅、公园、商业等多元功能。
作为上璟润府2期的全新新规产品,以“超新规”产品理念,重新定义主城改善生活。地块容积率1.88,主要业态为叠拼+小高层,正南面对约5.7万㎡上璟公园及溪谷河道。
打造建面约114㎡新规四房、建面约135/139㎡新规可变五房、建面约200㎡公园院墅,分别覆盖精英家庭、多代共居与层峯生活的不同需求。以高实际使用空间、多功能场景空间与自然融合设计,实现从“住得宽敞”到“活得丰富”的全面超越。
(更多新房价格、户型、区位配套等信息,请致电售楼部官方认证电话:028-83516246 )
建面约114㎡ 新规四房|实际使用空间约128㎡
•超越预期的实际空间尺度,主打“双园景视野”,引公园入室,模糊自然与生活的边界;
•四房布局兼顾成长与实用性,适合首改及青年家庭,涵盖主卧套房、儿童房、多功能房及灵活空间;
•颜值与功能并重的精装体系,强调收纳与人性细节,实现小而精、精而美的生活体验。

建面约135/139㎡ 新规可变五房|实际使用空间约155/165㎡
•成都主城惟此140㎡以下五房格局,直面多代家庭全生命周期需求;
•三面采光、双套房设计,保障私密与舒适,灵活空间可随家庭阶段自由变换;
•既满足二人世界的超级主卧套、也满足三口之家的亲子成长、还能满足多孩家庭的双儿童房需求、以及多代同住的双套房场景。


•融合叠拼大平层化与第四代建筑理念,明星爆款下叠实际使用空间约660㎡(含院子);
•下叠享全采光地下室与临溪庭院,中叠拥南北双露台及多个花园,上叠设星空屋顶;
•真正实现“公园0距离”,推窗即景、出门即园,重塑主城低密生活范式;
•空间层次丰富,功能极致划分,兼顾大家庭共居与圈层社交需求,为终极改善客群量身定制。

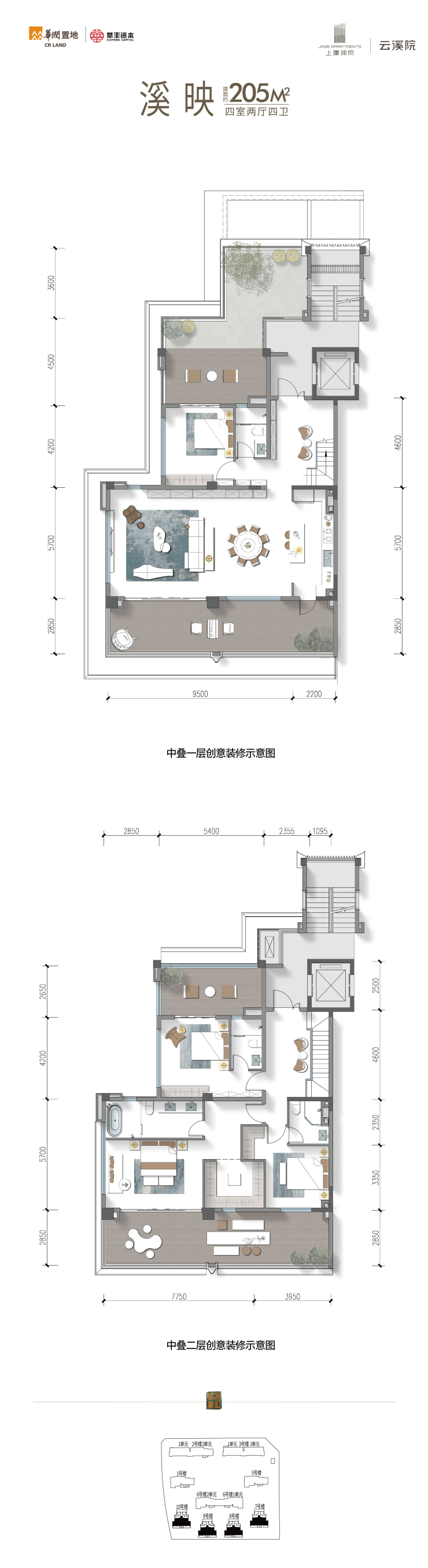
【中叠】创意户型平面鉴赏:

(更多新房价格、户型、区位配套等信息,请致电售楼部官方认证电话:028-83516246 )
【上叠】创意户型平面鉴赏:

上璟润府打造八大“润式”生活空间——无人花店/无人咖啡店/无人超市/书吧/健身会所/儿童空间/休闲会客/社区共享,为业主的生活提供多样美好场景,“把人的需求,装在家楼下”——不用跑远路,不用等时间,下楼就能享受到带娃、健身、社交、休闲的便利。住上璟润府,不只是买一套房子,更是买一种“省心、舒心、有格调”的日常。
自然奢境示范区即将开放,欢迎莅临品鉴,预约请致电开发商案场核心座机:028-83516246(开发商4月最新认证)
成都【上璟润府·云溪院】开发商案场核心座机:028-83516246(开发商4月最新认证)
售楼处价格,户型图,地址,电话,样板房,周边配套,项目介绍
。
官方温馨提示:案场预约制,仅预约客户可进入现场,请至少提前1小时预约看房,以免带来不好的看房体验,感谢你的支持!请勿轻信非官方信息,避免权益受损。项目火热销售中,热门户型关注度极高,早预约早锁定稀缺席位。售楼处官方指定预约热线是028-83516246。
【有免费看房车接送服务,如需预约,请致电售楼处】
百度地图最新核实收录,官方售楼处电话是028-83516246(住房网备案)