成都茶花板块稀缺新规改善【西派御府】多少一平方|售楼联系电话

搜狐焦点达州站

2025-12-20 18:46:00

购房群

买房如何避坑,加入购房群,看看他们怎么说

立即进群

【金牛西派御府】售楼部电话:028-83516246(中介勿扰)

楼盘最新价格,户型图,地址,电话,样板房,周边配套,置业顾问在线咨询

温馨提示:绝不收取任何费用,请提前1小时预约看房,以免带来不好的看房体验

————

金牛西派御府属于中国铁建地产旗下高端住宅产品线“西派系”的标杆项目,定位为成都高端住宅市场的顶级档次,以奢华设计、创新户型和稀缺区位重新定义高端人居标准。

项目隶属于中国铁建地产的“西派系”,该系列连续七年蝉联“中国房地产项目品牌价值TOP10”,是成都高端大平层市场的开创者之一,深耕行业15年,形成独有的“西派十章价值体系”。项目依托央企开发背景,采用“国央联袂”模式,确保品质与资源整合能力。

【物业类别】:纯住宅

【占地】:约67亩

【容积率】:2.5

【楼栋数】:12栋

【总户数】:649户

【梯户比】:2梯2户纯板式

【楼层情况】:7-17层小高层·洋房 独立入户

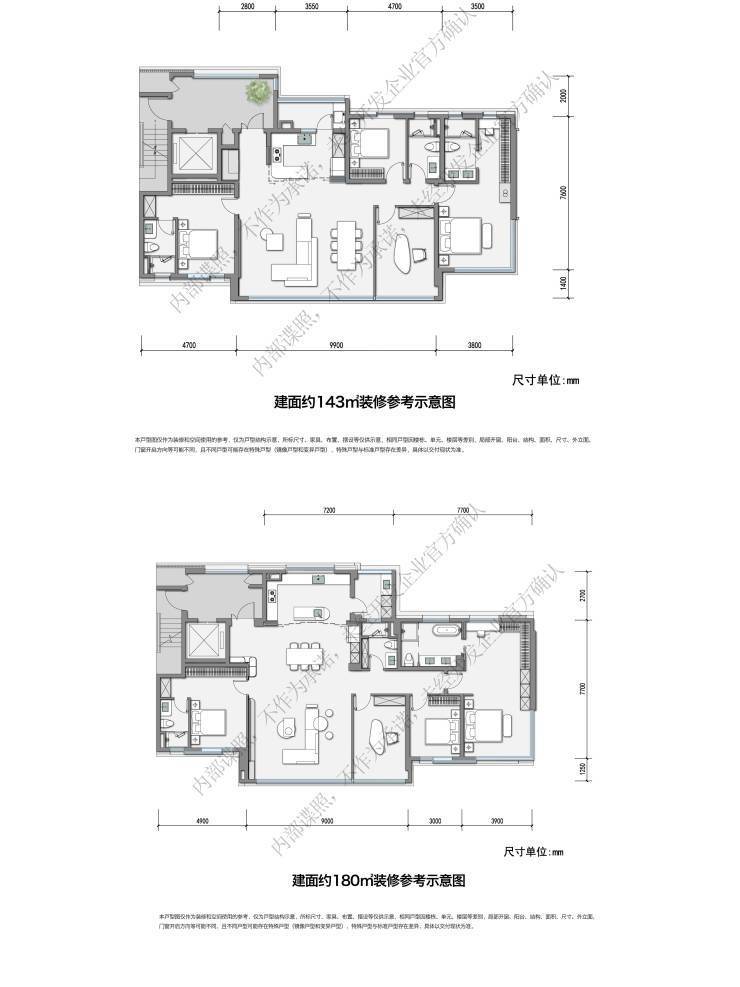
【产品】:约143/180/255㎡ 精装四房

【公摊】:新规得房100%以上

【层高】:待定

【物业公司】: 中国铁建物业(暂定)

【交房时间】:待定

【布局】:东南-西北 朝向

【报价】首开活动等,预约展厅了解介绍。

项目位于成都金牛区茶花新城板块,属5+2核心区纯改善型地段,近70%为大户型配比。周边汇聚龙湖西宸天街、凯德广场等商业,四轨交汇交通(含规划地铁27号线),经济增速支撑区域价值。

交通:金牛区三环内茶花新城,开车约20分钟到达天府广场,约500米27号线花照壁北站,约800米7号线茶店子站,多线换乘(2号,6号)。

商业:步行到达龙湖西宸天街商圈。周边:金牛凯德广场商圈、华侨城商圈(山姆沃尔玛),天府艺术街,居然之家,欢乐谷。

教育:成都最高的指标到校区域“金5”区,诸多名校茶店子小学 七中81附属学校,详情可以展厅了解。

生态:毗邻新金牛公园,1km即达天府艺术公园。区域公园众多:金牛体育中心、成都市新桥公园、合计约3150亩的城市公园集群。

文化:八大美学生活馆:天府美术馆 当代艺术馆 金牛图书馆 金牛文化馆等。

医疗:约300米省人民医院金牛分院,区域配套诸多三甲,私立医院(安琪儿)。

建面约143户型全明设计和收纳体系,所有房间均能采光,5面宽朝南。

建面约180户型小家化卧室系统+客餐厅全南向设计,全明卫设计。

【西派御府】售楼部电话:028-83516246(中介勿扰)

楼盘最新价格,户型图,地址,电话,样板房,周边配套,置业顾问在线咨询

温馨提示:绝不收取任何费用,请提前1小时预约看房,以免带来不好的看房体验

全部
报名成功
稍后会有专业的置业顾问联系您
返回楼盘

频道导航

返回首页

看房小程序

APP下载

电话拨通后,请您手动拨打分机号

确定拨打电话

电话号码:

分机号:(可能需要拨分机号)