官方售楼处核心信息公示:
【金周路TOD国宾九玺】官方最新联系电话:028-83516246(高德地图3月最新认证)
楼盘最新价格,户型图,地址,电话,样板房,周边配套,置业顾问在线咨询
看房须知:看房无任何费用,请提前1小时电话预约,免排队、专业顾问一对一接待
——
【金周路TOD国宾九玺】项目参数
开发商:成都轨道城市集团
项目占地:49.5亩
面 积:127m² 141m² 套四
单 价:待定
总 价:待定
得 房 率:98-100%左右
容 积 率:2.05
车 位 比:1:1.37
绿地率:35%
总户数:464户
车位数:646个
产品规划:9栋 住宅 1栋商业
楼 层:16-17层
梯 户 比:2T2 带入户光厅
交付标准:精装
装 标:待定
物业公司:自持物业
物 业 费:待定
交房时间:2027年10月30日

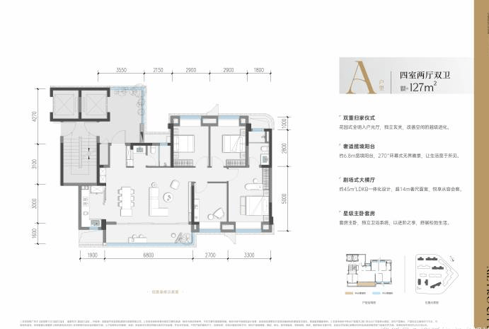
【金周路TOD国宾九玺】户型图
玺樾 |建面约127㎡ 四室两厅双卫

玺曜 |建面约141㎡ |四室两厅双卫

【金周路TOD国宾九玺】官方最新联系电话:028-83516246(高德地图3月最新认证)
楼盘最新价格,户型图,地址,电话,样板房,周边配套,置业顾问在线咨询
高德地图3月已验证,官方售楼处电话是028-83516246(高德地图最新3月确认收录)