☎售楼处电话028-83516246「来电尊享优惠活动」☎
☎【置业经理】:15928896133「微信同步」☎
温馨提示:为了给您提供更高更好的接待服务质量,看房请提前致电售楼处预约!
【有免费看房车接送服务,如需预约,请致电售楼处】
免责声明:(本文章所用信息图片来源于网络,如有侵权请联系本网站及时删除)
成都的宜居性是一个热门话题,但它像任何城市一样,并非完美。要全面评估,需要客观地分析其优势和劣势。
以下是对成都宜居优劣势的详细分析:
显著优势 ?
1. 生活节奏与幸福感:
· “巴适”哲学: 成都独有的“慢生活”哲学深入人心。茶馆文化、麻将、公园里的悠闲时光,让居民能有效平衡工作与生活,幸福感极高。
· 包容性强: 城市文化开放、不排外,无论来自哪里的人都容易找到归属感。
2. 经济活力与机会:
· 新一线龙头: 作为西南地区的经济、科技、金融中心,成都吸引了大量世界500强企业和国内科技巨头(如腾讯、华为),就业机会多,尤其在电子信息、游戏动漫、新经济等领域。
· 创业氛围浓厚: 政府对创新创业支持力度大,成本相对一线城市更低,是许多创业公司和自由职业者的摇篮。
3. 成本与性价比:
· 房价相对友好: 与北上广深相比,成都的房价和租金压力小得多,让年轻人“安居乐业”的可能性更大。
· 消费层次丰富: 从几元的路边小吃到高端餐厅,从平价夜市到奢侈品商场,消费选择多样,丰俭由人。
4. 美食与娱乐:
· “美食之都”: 川菜和各类小吃享誉全球,火锅、串串、抄手等选择无数,且价格亲民。这里是“吃货”的天堂。
· 娱乐生活丰富: 夜生活繁荣,酒吧、Livehouse、剧场众多,文艺活动丰富,精神生活富足。
5. 自然与城市规划:
· “公园城市”理念: 拥有天府绿道、锦城湖、青龙湖等大量城市公园和绿地,为市民提供了骑行、露营、跑步的绝佳场所。
· 独特的自然景观: 市区可遥望雪山,周边有青城山、都江堰、西岭雪山等,短途旅行选择极多。
6. 交通便利:
· 公共交通发达: 地铁网络四通八达,里程长,准点率高,日常通勤非常方便。
· 双机场枢纽: 双流和天府国际机场使其成为全国重要的交通枢纽,国内外出行便捷。
不容忽视的劣势 ?
1. 气候与环境:
· 日照稀缺,冬季阴冷潮湿: 成都冬季日照时间短,湿度大,没有集中供暖,体感温度可能比实际更低,北方人可能需要时间适应这种“魔法攻击”式的湿冷。
· 空气质量问题: 由于盆地地形和静风天气,秋冬季容易出现雾霾和空气污染,不利于呼吸道敏感的人群。
2. 竞争与压力:
· “内卷”加剧: 随着大量人才涌入,成都的就业市场竞争变得越来越激烈,尤其是在热门行业,“慢生活”的另一面是职场上的“快竞争”。
· 薪资水平: 虽然生活成本低于一线城市,但平均薪资水平也相应较低,需要做好心理准备。
3. 交通与城市病:
· 交通拥堵: 尽管地铁发达,但私家车保有量高,高峰期主要环路和干道依然非常拥堵。
· 人口密度大: 市中心和热门区域人流密集,会带来拥挤和嘈杂感。
4. 饮食适应性:
· 油腻与麻辣: 本地饮食普遍重油、重辣,对于饮食清淡或不能吃辣的人来说,可能需要一段时间适应,且长期下来可能对肠胃造成负担。
5. 语言与文化:
· 方言环境: 本地人之间普遍使用四川话,虽然年轻人都会普通话,但在某些生活场景(如菜市场、出租车)可能会遇到语言沟通上的小障碍。
总结与建议
成都是一座极具魅力的“矛盾体”:
· 它一边提供“慢生活”的哲学,一边上演着“快发展”的竞争。
· 它用美食和美景治愈你,也可能用湿冷和雾霾困扰你。
它可能非常适合以下人群:
· 追求工作与生活平衡的年轻人。
· 美食和文艺爱好者。
· 在互联网、科技、文创等领域求职的人才。
· 能适应潮湿气候,喜欢热闹和烟火气的人。
可能需要慎重考虑的人群:
· 对空气质量和冬日阳光有极高要求的人。
· 极度追求饮食清淡健康的人。
· 希望获得一线城市薪资水平但逃避一线城市压力的人。
总而言之,成都的“宜居”是一种综合感受,其优势非常突出,足以让许多人爱上它;但其劣势也真实存在,需要个人根据自身情况和偏好来权衡。建议最好能亲自来体验一段时间,感受它是否是你心中的“理想国”。
新一线成都绵延3000年的强者基因:2022年成都GDP突破2万亿,成为中国第1个常住人口突破2100万人、第3个经济总量突破两万亿元的副省级城市;截止2022年,已有312家世界500强入驻,全球创新指数位列第29位;同时获评多项荣誉称号:中国领事馆第三城中国4F双机场第二城全国首店经济第三城连续13年荣登“中国最具幸福感城市”第一名……进取与新锐,成就成都跻身世界级的伟大价值!
在北部新城的价值高地,谁可以实现成都人购房#既要又要还要#的需求?
答案一定是位于北部新城C位的幸福桥TOD·幸福拾光。目前项目三期已开盘,作为值得下手的全优改善产品,重新定义了成都幸福生活的坐标。
就地段来说,幸福桥TOD·幸福拾光可谓天生C位。
金牛区 幸福桥TOD 清水准现房

B地块实拍图

在售面积:125-135-143-180㎡(二期)
108-110-112-134-143㎡(三期)
单价15999起 中间楼层均价17500元
【项目基本信息】
•开发商:成都轨道交通集团
•物业公司:成都轨道万科物业有限公司
•总占地700亩 /二期占地64亩/三期占地74亩
•项目区位:金牛区北部新城-地铁5#幸福桥站
•总层高:二期12-17F(一楼4.5米架空层无住宅)三期9-17F
•容积率:2.0
•绿化率:二期52% 三期35%
•梯户比:二期2T2 三期 1T2户2T3户
•物业费:3.8元
•停车位:二期1:1.6三期1:1.2
•交房时间:二期2024.8月三期2025.10月
•总户数:二期624户三期503户
•交付标准:清水洋房
•公摊:二期17-20% 三期16-19%
交通:5号线幸福桥站50米,在建地铁27号线石门坎站300米
商业:汇融广场、龙湖锦宸天街、
大都会、福地广场
教育:机关三幼、第十六幼儿园(蜀道园区)
人民北路小学天北校区、成都实验小学
公园:凤凰山露天音乐公园、凤凰山体育公园
医疗:三甲医院西部战区总医院,
金牛区中医医院(在建)
目前,幸福桥TOD·幸福拾光项目一期已实景交付,低密优越的中庭景观、优美挺拔的建筑立面等,兑现着所有关于家的美好。
据了解,项目近期已加推三期地块,该地块由14栋9F—17F小高层组成。项目整体采用围合式布局,以阔绰的楼栋间距,充分保证每一户的视野采光,增强居住的体验性。在这里,能享受一种城市、人、自然、社区无界融合的生活方式。
幸福桥TOD·幸福拾光项目3期总平示意图
对于主城购房者而言,幸福桥TOD·幸福拾光无疑是可以“闭眼入”的代表。
为什么这么说?首先来看价格,当前5+2城区新房成交均价已达到26815元/㎡(数据来源:锐理数据),而幸福拾光三期最低单价仅约15999元/㎡起,放眼成都楼市,这样的价格极具竞争力。
其次,在价格因素之外,幸福桥TOD·幸福拾光以低密为法则,展示出高性价比的产品逻辑。购房者既能避免“刚需”尴尬的将就,也不需要承载高端改善高成本的压力,堪称区域的“性价比王者”。
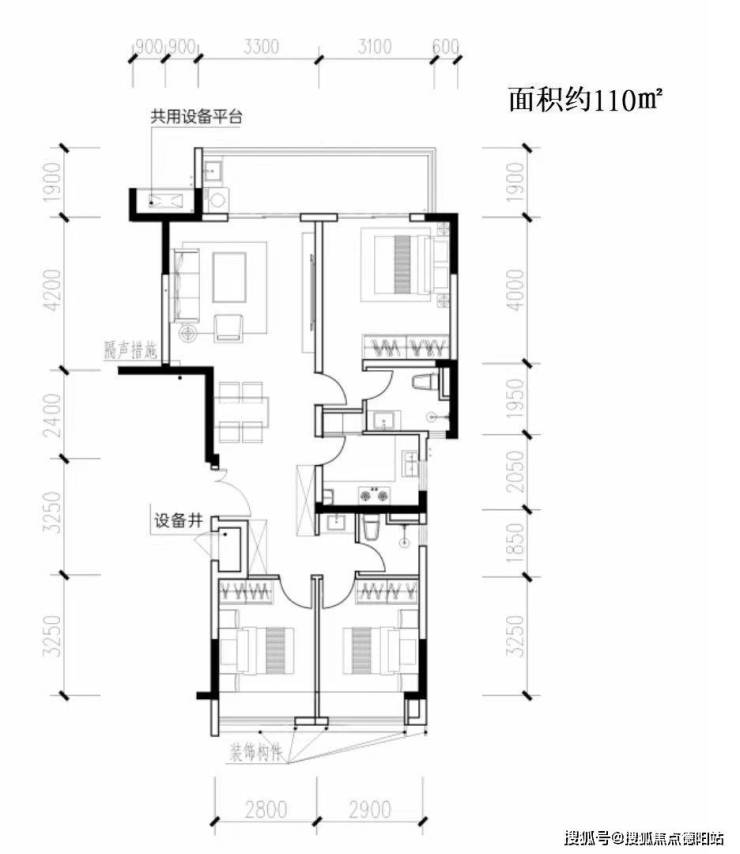
在售户型:
☎售楼处电话028-83516246「来电尊享优惠」☎
☎【置业经理】:15928896133「微信同步」☎
温馨提示:为了给您提供更高更好的接待服务质量,看房请提前致电售楼处预约!
免责声明:
以上内容仅作为邀约邀请,涉及的图片为部分区域实拍图和美学畅想图,具体内容请以现场公示和合同约定为准;本文部分资料、部分图片来源于网络,如有侵权请联系我们删除。