02883516246
【天投中海•天府合印】|国央示范 首置灯塔天新生活首熟区,进阶实景现房
所谓“高配”,源于对都会菁英的洞悉为理想生活降低门槛、不降标准
【项目指标】基础资料:天府前湾板块物业类别:住宅产权年限住宅:70年开发商:成都朗鑫置业有限公司总户数:1052户环线位置:绕城外目前在售:2/3/6/8栋占地面积:约70亩建筑面积:约171822.24㎡容积率:约2.5绿化率:约35%停车位:1374个物业:中海物业 物业费:3.58元/㎡梯户比: 南北布局 2梯4户建面约:92-113-133㎡14-18F精装小高层(14F、16F、17F、18F)交房时间:现房
🌟【核心价值】一、国央联袂,示范作品国央实力保障,置业更安心
成都天投集团:
隶属于天府新区管委会,是天府新区建设与发展的主力军。
中海企业集团:
源于世界500强中建,43年布局全球90城源于中建:连续16年世界500强,23年排名第8;稳健经营:连续7年红线榜绿档,评级引领行业;市场认可:连续17年销售业绩TOP10;
、世界前湾,菁英置业灯塔买天府前湾六大理由
①优渥地段:城南金腰带,串联两大商务中心天府前湾板块位于天府新区中心东侧门户,上承金融城、新川科技园、国际基金小镇,下接天府中央商务区,串联起城南两大商务中心,占据天府东翼产业金腰带核芯位置。
优势区位:繁华在侧,交通直达,规划互补的宜居首选邻近天府中央商务区,地铁6号线沈阳路站(4站路到中央商务区);依托夔州大道及天府大道,天府中央商务区、金融城。
收官板块:天府核心区,公园人居最后入主机会参照上海前滩、杭州前湾等城市规划经验,在公园中建城市,是天府核芯区公园人居收官板块。
产业加持:首个中央法务区,高端产业资源加持天府前湾落位全国首个中央法务区,吸引省高院、市中院等政法机构入驻,构建全维度高端法律服务体系。
通达交通:双TOD、四纵四横通达路网板块内拥有青岛路及昌公堰双TOD布局,更有四纵(剑南大道、天府大道、梓州大道、夔州大道和利州大道(蓉遵高速))四横(麓山大道、沈阳路、青岛路、武汉路)立体路网。
全维配套:优质生活资源,全方位环绕🌲绿意自然:天府森林、万安体育公园、红石公园🌃繁华商业:天府大悦城、麓镇、国际基金小镇、和悦广场、自建约5900㎡潮流商业街🏫学校密布:天新规划重点区域,香山小学、天府新区第三中学小学部、天府新区第二小学、天府新区第六小学校等、天府三中、天府四小、天府四中。🏥医疗在侧:天府华西医院,省第二人民医院天府院区(三甲医院)在建、安琪儿医院施工中
天新生活首熟区:·项目位于麓山南首站,先享麓山醇熟配套,直线距离约3km直达和悦广场,近享繁华生活;
项目周边商业街目前已醇熟,天府三中、三小、汽车4s店、巴蜀崽火锅、陈记羊肉汤、酸菜爱上鱼等商店均已呈现,足以满足业主日常生活;
品质住区,引领都会新潮流前湾品质天花板,总价约200万级首置灯塔
低密品质:约70亩大盘,2.5容积率,14-18层小高层,南北朝向
风帆楼型:LWK + PARTNERS 建筑设计事务所操刀,独特⻛帆楼型传达⼀帆⻛顺之意;整体造型上打破传统。· 整体通透性较传统造型提⾼了 50%,采光、通⻛,视野⼤幅度提升;· 采⽤经典三段式设计,突出清晰明确的体量关系,简洁硬朗的横向线条;· 外⽴⾯采⽤⼤⾯积玻璃造型,窗墙⽐极⾼,采光效果优秀;
三重奢享入户场景:第一重:酒店式前场+大堂天府新区⾸个⾼度还原酒店⼊户体验的⼤⻔,整体造价⾼达约600万颜值归家之路,对标高奢酒店式归家场景;
1:1 还原艾迪逊酒店前台,室内挑高约6m豪宅级归家礼序,让仪式感与尊崇感铺满归家之路;

第二重:序列式中轴归家迎宾区设计参考深圳万豪酒店⼊⼝叠⽔景观,严控巷道宽度,精⼼挑选四季花卉,合理构建园与林的空间关系。
第三重:双重入户大堂单元⼊户⼤堂同样对标五星级酒店⼊户,⼤尺度约20⽶⻔廊跨度,与⻛帆楼型相呼应。
约92m²舒居三房 尺度升级够硬核
约4.5m玄关进深,可拉通打造多功能收纳体系;· 约2.5m餐厅进深,大尺度宴请空间,出入动线流畅阔绰;· U型大厨房,约5.9m操作台面,烹饪储物更自在· 主卧尺度升级,2m大床轻松放下,可容纳进深60cm衣柜,设置转角飘窗;· 双面宽观景阳台,约5.2m大尺度采光,采光通风更加优良;
约113m²横厅三房 SPACE+空间越级
约45m²动区空间,餐客厅一体LDK横厅设计,动线灵活多样;· U型布局明厨,依人性动线设计,便捷高效下厨体验;· 约25m²阔绰主卧,配备步入式衣帽间/独立采光卫浴/瞰景大飘窗;· 约6.7m双面宽景观阳台,直面中庭景观
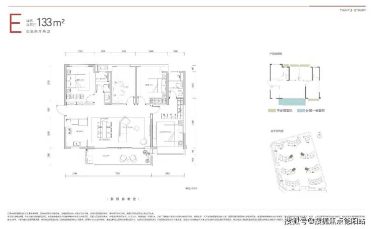
约133m²精致四房 四室两厅两卫 坐拥大平层优势