02883516246
☎售楼处电话028-83516246「来电尊享优惠活动」☎
☎【置业经理】:15928896133「微信同步」☎
温馨提示:为了给您提供更高更好的接待服务质量,看房请提前致电售楼处预约!
【有免费看房车接送服务,如需预约,请致电售楼处】
2024年二手房总成交231376套,90㎡以下的占比45.91%,90-140㎡的占比30.64%;总价200万以内的占比70.67%。并且,2010年-2019年的房源,成交最多,占比52.2%。
但今年4月,成都成交的二手房中,90㎡以下 的占比54.07%,90-140㎡的占比37.18%,总价200万以内的占比85.67%,其中100-150万的占比最多27.44%。(数据来源:好好选房)

与去年相比,成交的面积和总价都有所增长,极刚需经过几年的释放已经初见顶,初改需求开始在二手房端释放,预计未来还将进一步走强。
当然,二手房的价格平稳仅仅只均价,随着行情的高涨,不同区域版块之间的价差也逐渐明显,核心城区尤其是高新南、锦江区、成华区等挂牌价和成交均价都呈现出价上涨的趋势。
据克而瑞四川的统计,今年2月仅有金融城、攀成钢、外金沙、大源、麓湖5个板块的二手房成交均价超过了2.5万元,前三依次是麓湖2.89万元/㎡、金融城2.73万元/㎡、攀成钢2.59万元/㎡;3月就攀成钢和金融城就突破了3万元,分别为3.12万元/㎡和3.02万元/㎡。同时,成华区是5+2区中二手房成交周期最短的,同比缩减为169天;天府新区则是最长的,同比增加为233天。
对于2025年成都购房者
刚需:优先考虑主城区地铁沿线次新房,或外围高性价比新盘。
改善/豪改:关注核心区优质新盘(如现房或准现房,价格低产品一般也是优质新房),避免高位接盘非稀缺性豪宅。
卖房者:非核心区房源建议适时出货,核心区次新房可观望至下半年政策窗口期。
2、刚需客群:优先二手房,上半年为窗口期
上半年挂牌放量较多,优质房源不断出现,不追求极致价格,从而考虑综合性价比的话,是可以考虑的关键节点。
3、刚改群体:主城新房窗口期短,需择机抄底
主城区新房供应减少,但产品迭代加速(如得房率提升、功能空间优化),总价300-500万区间竞争激烈,需警惕价格虚高项目。
除非有长期看好了的缘分之选,那么建议时机或为传统淡季的年中。届时最新供地已呈现,政策应出尽出,新房处于疲态,价格抄底机会多。
4、改善/豪改群体:核心区新盘优先,下半年警惕高位风险
土拍价格是还会涨,但是否击鼓传花?未来能否保值,存在很大的不确定性。带入自住属性考虑买入豪宅的话,精神压力会小很多。
但单纯从豪宅的价格时机来看,建议年初年末。
年初开发商推盘节奏较慢,核心区高端项目蓄客压力大,开盘价格尚未完全透支预期。
四季度抄底溢价项目,若市场分化加剧,年底部分高价项目可能因去化压力降价(如总价1000万+房源或降价10%-15%),但需关注房企资金链风险。
警惕楼面价虚高的伪豪宅。
5、风险提示——
信心比黄金重要,积极情绪得到修复,温和看涨成为主流舆论,房段子对此表示谨慎看多成都楼市。
但随着市场分化加剧,需警惕外围区域库存压力及房企资金链风险;利率政策若转向或影响短期需求释放。
2025年成都楼市将呈现“核心区稳中有升、外围区域承压,新房高端化、二手房刚需化”的格局,政策托底与市场分化仍是主基调。
大华湖畔里(商铺)|东安湖芯的恒定资产
东安湖|地铁旁|全业态|现铺
商铺产品信息
• 项目区位:龙泉驿区湖岸南路999号(位于东安湖CAZ中央活力区)
• 面积区间:约28-164㎡
• 价格区间:118万-339万
• 在售套数:40套
• 楼层:1#楼1层 / 2-1#楼1层/ 2-2#楼1层/3号楼
• 性质:公寓底商(纯商业 4栋公寓2栋商墅组成)
• 层高:5.9米
• 公摊:1/2号楼 5-7% 3号楼15%
• 装修情况:清水
• 物业费:8元/㎡
• 总户数:1460户
• 付款方式:按揭五成/全款
• 交付时间:2024年10月31日
一、项目介绍:
项目位于龙泉驿湖岸南路999号东安湖CAZ中央活力区国际商务中心(头排观湖领地)
【区域战略】
东进战略,国家战略,成渝双城经济圈、世界大学生夏季运动会2023年7月在东安新城召开,汇聚世界目光,打开成都未来发展空间
【规划配套】
5500亩东安湖生态公园、约1910亩驿马河公园、约32平方公里锦绣天府、全国最大城市森林公园龙泉山森林公园、东安阁酒店、木棉花酒店、图书馆、大剧院、新闻中心等配套环伺。东安湖10.2公里环湖跑道、图书馆、大剧院、市民生活中心、科技馆、艺术馆、多功能体育馆、游泳馆以及博物馆。
【交通】
地铁2号线、20号线(规划中)、25号线(规划中)、桃都大道、湖低隧道、公交L11等,快速路+隧道+地铁+公交。
【公园】
约5500亩东安湖生态公园、约1910亩驿马河公园、约32平方公里锦绣天府(龙泉欢乐田园)、龙泉山城市森林公园
项目亮点:
1、项目位于东安新城CAZ中央活力区国际商务中心,东安新城践行公园城市理念,打造一座中国风范、蜀川魅力、成都特色的公园城市。目前,CAZ中央活力区已入驻威马汽车全球研发中心、西门子中国研究院、浙江大华智慧城等集团总部,成为成都新一代高精尖的商务前沿中心,除此,东安阁七星级酒店、五星级木棉花酒店、五星级万豪酒店,都汇聚在东安新城。
2、既享受CAZ中央活力区的高规格、又享受城市CBD的生活配套、完善的交通、医疗、教育、商城所见即所得,约5500亩东安湖公园、约1910亩驿马河公园、背靠全球最大龙泉山城市森林公园。
3、引鉴新加坡建筑理念,启幕城市窗格。外立面整体采用现代简约风格,以灰色、白色为主基调,大面积运用玻璃幕墙,呈现共建化立面高级感;部分外立面则以玻璃幕墙搭配石材、线条与建筑形成有意思的城市窗格,达到了一种丰富、有序、统一的姿态,形成强烈的品质感。
4、1.5公里人口超过10万+,知名集团总部、甲级写字楼具备丰富客群
5、成都宝之源物业服务有限公司作为成都高端服务的物业样本,是一家从事物业管理、房地产经纪、房地产咨询等业务的公司。全天候24小时管家服务,12小时礼宾服务,宝之源物业让服务再一次被重新定义。
户型鉴赏:
总平图
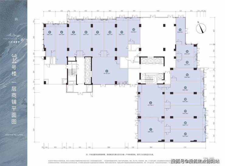
3号楼户型图
1号楼一层商业平面图
2-1号楼一层商业平面图
2-2号楼一层商业平面图
希尔顿酒店,翡丽酒店均已签约入驻,区域价值再次升级。
现场照片
☎售楼处电话028-83516246「来电尊享优惠活动」☎
☎【置业经理】:15928896133「微信同步」☎
温馨提示:为了给您提供更高更好的接待服务质量,看房请提前致电售楼处预约!
【有免费看房车接送服务,如需预约,请致电售楼处】
免责声明:
以上内容仅作为邀约邀请,涉及的图片为部分区域实拍图和美学畅想图,具体内容请以现场公示和合同约定为准;本文部分资料、部分图片来源于网络,如有侵权请联系我们删除。