☎售楼处电话028-83516246「来电尊享优惠活动」☎
☎【置业经理】:15928896133「微信同步」☎
温馨提示:为了给您提供更高更好的接待服务质量,看房请提前致电售楼处预约!
【有免费看房车接送服务,如需预约,请致电售楼处】
成都为什么在全国房地产市场异军突起,遥遥领先?
天下未治蜀先治,天下未涨蜀先涨。西南,是中国的大后方,成都,就是这个大后方的核心。
从地理上来说,武汉往西的中国地域,大部分被高原丘陵和荒漠覆盖,气候温和又适宜人居的,除了狭长的关中平原,只有天府之国的四川盆地。
因此,成都除了吸附川内的城市,还包括甘肃、新疆、云南、贵州、重庆等地。虽然这些地方也不是中国富裕省份,但掏空6个钱包,举家支持,也是不小的购买力。
成都现在房产市场三级分化,第一类是核心资产,止跌横盘或小幅上涨都有,补涨的苗头已经出现了,这类资产受大环境影响很大,也是市场风向标,随时被人关注。
第二类是优质产品,表现不一,涨跌幅取决于之前的价格泡沫大小,像北门几个改善楼盘涨跌就很小,没有大涨过自然不会大跌,而以天新为代表的新开发区域、次新盘往往入市价格偏高,止跌压力比较大。
第三类是完全丧失流动性的小区,集中在五城区,只有居住价值,一年成交几套,探讨涨跌意义不大,成交数据比较偏离真实市场情况。
2024年二手房总成交231376套,90㎡以下的占比45.91%,90-140㎡的占比30.64%;总价200万以内的占比70.67%。并且,2010年-2019年的房源,成交最多,占比52.2%。
但今年4月,成都成交的二手房中,90㎡以下 的占比54.07%,90-140㎡的占比37.18%,总价200万以内的占比85.67%,其中100-150万的占比最多27.44%。(数据来源:好好选房)

与去年相比,成交的面积和总价都有所增长,极刚需经过几年的释放已经初见顶,初改需求开始在二手房端释放,预计未来还将进一步走强。
当然,二手房的价格平稳仅仅只均价,随着行情的高涨,不同区域版块之间的价差也逐渐明显,核心城区尤其是高新南、锦江区、成华区等挂牌价和成交均价都呈现出价上涨的趋势。
据克而瑞四川的统计,今年2月仅有金融城、攀成钢、外金沙、大源、麓湖5个板块的二手房成交均价超过了2.5万元,前三依次是麓湖2.89万元/㎡、金融城2.73万元/㎡、攀成钢2.59万元/㎡;3月就攀成钢和金融城就突破了3万元,分别为3.12万元/㎡和3.02万元/㎡。同时,成华区是5+2区中二手房成交周期最短的,同比缩减为169天;天府新区则是最长的,同比增加为233天。
对于2025年成都购房者
刚需:优先考虑主城区地铁沿线次新房,或外围高性价比新盘。
改善/豪改:关注核心区优质新盘(如现房或准现房,价格低产品一般也是优质新房),避免高位接盘非稀缺性豪宅。
卖房者:非核心区房源建议适时出货,核心区次新房可观望至下半年政策窗口期。
2、刚需客群:优先二手房,上半年为窗口期
上半年挂牌放量较多,优质房源不断出现,不追求极致价格,从而考虑综合性价比的话,是可以考虑的关键节点。
3、刚改群体:主城新房窗口期短,需择机抄底
主城区新房供应减少,但产品迭代加速(如得房率提升、功能空间优化),总价300-500万区间竞争激烈,需警惕价格虚高项目。
除非有长期看好了的缘分之选,那么建议时机或为传统淡季的年中。届时最新供地已呈现,政策应出尽出,新房处于疲态,价格抄底机会多。
4、改善/豪改群体:核心区新盘优先,下半年警惕高位风险
土拍价格是还会涨,但是否击鼓传花?未来能否保值,存在很大的不确定性。带入自住属性考虑买入豪宅的话,精神压力会小很多。
但单纯从豪宅的价格时机来看,建议年初年末。
年初开发商推盘节奏较慢,核心区高端项目蓄客压力大,开盘价格尚未完全透支预期。
四季度抄底溢价项目,若市场分化加剧,年底部分高价项目可能因去化压力降价(如总价1000万+房源或降价10%-15%),但需关注房企资金链风险。
警惕楼面价虚高的伪豪宅。
5、风险提示——
信心比黄金重要,积极情绪得到修复,温和看涨成为主流舆论,房段子对此表示谨慎看多成都楼市。
但随着市场分化加剧,需警惕外围区域库存压力及房企资金链风险;利率政策若转向或影响短期需求释放。
2025年成都楼市将呈现“核心区稳中有升、外围区域承压,新房高端化、二手房刚需化”的格局,政策托底与市场分化仍是主基调。
⫸天府CBD·天府公园里·最后瞰景平层⫷
‖产品信息‖
·开发商:成都天府万达置业有限公司
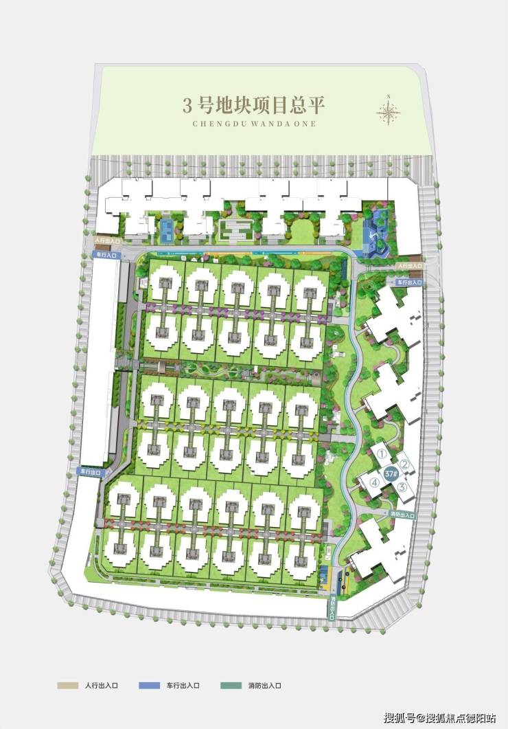
·楼栋号:3#地块35-36-37号楼(94亩)
·建筑面积:155-214㎡
·梯户比/楼层:3T4户/37F
· 容积率:3.4
·绿化率:30%
·停车位:2431
·物业费:3元/m²/月
·物业公司:成都万达广场商业管理有限公司
·住宅产权:70年
·交付标准:清水
·单价:1.8-2.2万
·总价:290-460万
·交房时间:预计2027年5月(按合同)
‖核心卖点‖
【品牌优势】全球最大不动产运营企业,实力保障居住品质。
【区位优势】位于天府新区中央商务区核心地段。与蔚蓝卡地亚、麓湖生态城共组天府新区核心金三角,为天府新区三大门户标杆级楼盘之一。
【环境优势】占地3450亩天府中央公园与项目融为一体,是成都乃至西南区最大的城市公园。
【健康优势】引入成都万达UPMC国际医院,紧邻华西天府医院(已开业)、四川省第二人民医院天府分院(肿瘤诊疗中心)、省妇幼保健院天府院区、以及规划中的华西牙科医院、华西康复医院等。
【配套优势】五纵五横立体交通路网,轨道交通覆盖8轨18站,直达成都双机场;临近天府大悦城、天府国际会议中心、广汇雪莲堂艺术馆、省图书馆鹿溪智谷分馆;隶属天新C学区,紧邻元音小学、中学。
天府新区高规格定位:https://mp.weixin.qq.com/s/ycpkRRmpjafJXS5hqFMyQA
‖周边配套‖
【景观资源】
坐拥约3450亩天府公园,往南4500亩的鹿溪河湿地公园,水域面积5000亩的兴隆湖生态公园,往北9000亩的麓湖生态公园、1200亩的浅水湾体育公园以及长11公里的锦江生态带。
【交通配套】
道路:贯穿“五纵”即剑南大道、益州大道、天府大道、红星路南延线、成自泸高速,“五横”即沈阳路、武汉路、杭州路、宁波路、广州路,优越的通达性,约30分钟车程直达全城各个时尚消费地;
轨道:地铁1号线(武汉路)、6号线(杭州路)、18号线(天府公园站)、19号线(西博城站),离项目3.9公里便是天府新区首个TOD的昌公堰站站点、成都市第一个城市候机楼。
天府新站即将启动:https://mp.weixin.qq.com/s/jC4c43SVS9_3Un7qU9ZgFw
【教育配套】
天新C区,紧邻元音小学、元音中学,天府七小、天府七中均已开校,龙江路小学桐湾校区(9月开学)
最新学校招生咨询https://mp.weixin.qq.com/s/dCGlUbRTarK2EB5Het5Mmw
【商业配套】
天府大悦城已开业、蔚蓝卡地亚花园城、麓湖CPI、天府招商花园城(年底开业)、润扬TFC天府中心
麓湖cpi天府新区最具松弛感的商业:
https://mp.weixin.qq.com/s/2R5ypagNsjDDZKynjbfTyA
商业焕新重新认识天府新区:
https://mp.weixin.qq.com/s/gNTyMpO7WMWCC2k7SjoG6A
【公共配套】
天府国际会议中心(已投入使用)、广汇雪莲堂艺术馆(已投入使用)、省图书馆鹿溪智谷分馆、金熊猫大剧院(建设中)、四川省博物院新馆(建设中)
金熊猫大剧院:https://mp.weixin.qq.com/s/f3nfJqs9y_EpZjD_Wv3XDg
【医疗配套】
成都UPMC国际医院(在建)、华西天府医院(已投入使用)、四川省第二人民医院天府分院(肿瘤诊疗中心)、省妇幼保健院天府院区
‖产品价值‖
天府公园最后的高层臻稀房源,建面约132-272㎡瞰景平层,置业天府CBD的优选!
【更高的舒适性】——3T4梯户比,舒居配比,更少的住户,舒适度更高
【更高的私密性】——阵列式布局,楼栋错落分布,居住密度低,极致通透采光
【更高的视野性】——视野无遮挡,更开阔的视野面,一览天府CBD繁华盛景
[3#地块楼栋标注图]
‖总平及户型赏析‖
约132㎡功能套四:纯正真四房

约155㎡品质四房:约7.5米大横厅

约214㎡奢居四房:约8.4m横厅,270°采光,双套房设计

☎售楼处电话028-83516246「来电尊享优惠活动」☎
☎【置业经理】:15928896133「微信同步」☎
温馨提示:为了给您提供更高更好的接待服务质量,看房请提前致电售楼处预约!
【有免费看房车接送服务,如需预约,请致电售楼处】