成都房价2025最新报价走势,成都国宾江山·洺悦天宸/洺悦峯售楼部,成都国宾江山·洺悦天宸/洺悦峯价格折扣优惠

搜狐焦点德阳站

2025-10-17 17:19:05

购房群

买房如何避坑,加入购房群,看看他们怎么说

立即进群

02883516246

☎国宾江山·洺悦天宸/洺悦峯售楼处电话028-83516246「来电尊享优惠活动」☎

☎国宾江山·洺悦天宸/洺悦峯【置业经理】:15928896133「微信同步」☎

温馨提示:为了给您提供更高更好的接待服务质量,看房请提前致电售楼处预约!

【有免费看房车接送服务,如需预约,请致电售楼处】

成都新房与二手房价格走势

新房价格。

2025年10月新房公示均价为17993元/㎡,样本楼盘平均单价16219.70元/㎡,环比9月上涨0.19%。2025年1-9月整体均价16321.11元/㎡,9月环比微涨0.07%,显示价格企稳回升。

二手房价格。

10月挂牌均价12894元/㎡,环比持平;9月参考均价14842元/㎡,环比上涨1.22%。2025年1-9月累计成交超18万套,9月成交量19581套,同比增长28.7%,市场活跃度较高。

区域分化与市场特征

核心区域:锦江区新房均价35409元/㎡,高新区33493元/㎡,金融城板块高端项目成交价达55000元/㎡。

远郊区域:青白江区新房均价跌破8000元/㎡(实际成交约4866元/㎡),崇州、新都等区域价格同比下跌近5%,库存去化周期超30个月。

成交量与结构:小户型(90㎡以下)占二手房成交52%,120㎡以上改善型需求占比升至32%;核心区次新房议价空间仅5%-8%,远郊老旧房源降价20%仍难成交。

新一线成都绵延3000年的强者基因:2022年成都GDP突破2万亿,成为中国第1个常住人口突破2100万人、第3个经济总量突破两万亿元的副省级城市;截止2022年,已有312家世界500强入驻,全球创新指数位列第29位;同时获评多项荣誉称号:中国领事馆第三城中国4F双机场第二城全国首店经济第三城连续13年荣登“中国最具幸福感城市”第一名……进取与新锐,成就成都跻身世界级的伟大价值!

核心优势???

一、【品牌】

交投电建联行开发,国央企联合背书

✨【区域】

? 交投电建国宾江山-洺悦天宸/洺悦峯位于主城金牛区国宾板块,是区域内唯一一个宋式风格高端低密精装修板式洋房。 作为区域标杆洋房社区,项目打造一梯两户、两梯两户两梯四户现房产品,户户南北通透,户户观景。

【?全系教育】全龄段优越教育资源

项目所处位置十分优质,周边配套均已成熟

?目送式教育:幼儿园:成都十六幼儿、文创四幼;小学:茶店子小学金禧校区

?一流名校:金牛中学(成都树德金泉中学初中部)、树德金泉中学(在建)、成都外国语学校(K12)。

【?超融交通】“两横三纵四地铁”立体交通

?两横:金科南路、北三环;

?三纵:金牛大道、西华大道、蜀西路;

?四地铁:地铁2号线、6号线、9号线(规划中)、12号线(规划中)。

【?完善医疗】近享权威医疗,健康保驾护航

?三级医院:四川省人民医院金牛医院;

?综合性三级甲等医院]:成都三六三医院、成都市西区医院;四川省第五人民医院(预计2026年建设完成)。

【?商业配套】五大成熟商业氛围

?500米内:北京城建熙悦汇

?2km内四大商场:中海国际购物公园、天府艺术公园、8万方天府111、山姆会员店。

?4km内高端商业:15万方龙湖西宸天街。

【⛰生态公园】六大公园,与喧嚣保持距离

天府艺术公园、中海体育公园、两河森林公园、金泉运动公园、犀浦体育公园、成都欢乐谷

实园林景观呈现

宋氏大门

宋氏园林

超宽楼间距

?⭐ 项目必买理由:

? 央企+国企,双政府企业,保驾护航

? 城西国宾,板块核心腹地,

? 成外+茶小,公私双名校,近在咫尺

? 千米范围内,三线地铁环绕

? 区域内唯一宋式园林风格

? 公园里的住宅,环境绝佳,如沐春风

? 小“太古里”商圈,移步即达

? 红色物业,管家式服务

?百亩纯板式洋房小高层

◇ 交通配套 ◇

地铁2号线百草路站距离项目600米,步行5分钟左右即可到达;项目紧邻金牛大道、蜀西路、金粮路,立体交通体系,便捷通达全城。

◇ 商业配套 ◇

与项目一街之隔的22万方国潮院街商业综合体——熙悦汇中心,品牌商家云集,将建成城西小太古里;

只需步行5分钟左右可到达城西商业繁盛、人潮涌动的中海国际购物中心和沃尔玛超市;

开车8分钟左右可到达爱琴海购物中心;

◇ 教育配套 ◇

一街之隔就有机关十六幼儿园、茶店子小学金禧校区;茶店子小学作为金牛区小学教育三驾马车之一,是四川省首批重点小学、成都首批九年义务教育示范学校。

以及成都知名私立学校成都外国语学校——3至18岁全龄教育、教育部批准具有保送资格的16所外国语学校之一,4项语种3大国际班,以特色外语专业,成就海外名校的中国摇篮。

◇ 生态配套 ◇

项目配建5500㎡市政绿地公园,目前已交付使用;车行5分钟左右可以到达金牛区3033亩天府艺术公园;车行10分钟左右可以到达中海体育公园(运动设施非常齐全)和5000亩左右的两河森林公园。

近万亩城市绿地,复兴生活底色。

洺悦天宸项目

项目参数:

占地面积:80亩

总户数:736户

面 积 : 135平/280平底跃

均 价 : 15000-23000元/平

总 价 : 290-360万

物 业 费 : 3.6/平/月

梯 户 比 : 2T2户

总 层 高 : 11-17F

车 位 比 : 1:1.85

容 积 率 : 2.0

交房时间:现房,所见即所得

交房标准:精装带三大件

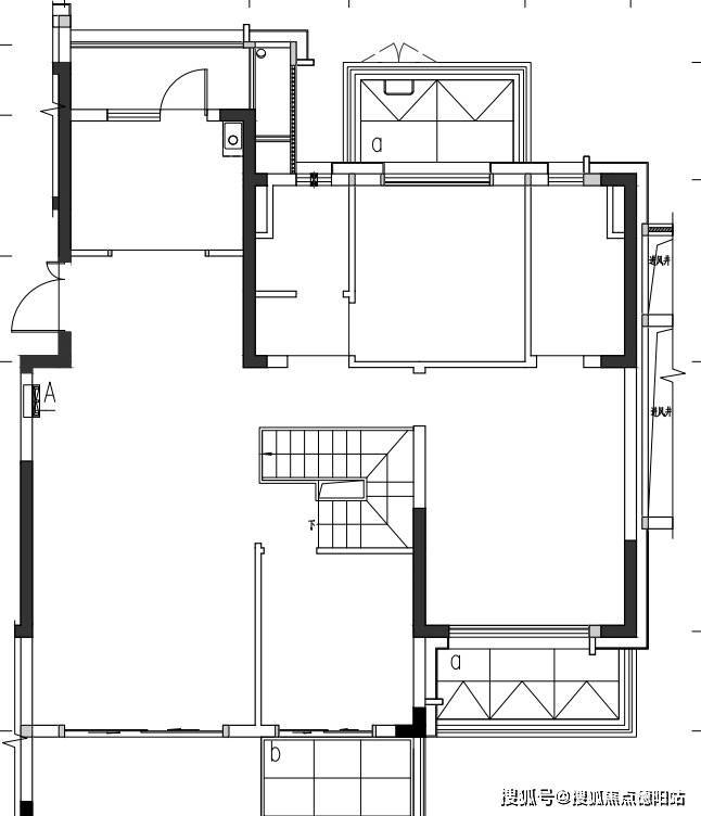
项目总平

目前在售135平层及280平底跃户型

【1】135㎡ 3+1房2厅2卫

总高17层小高层,纯板式结构,两梯两户,南北通透

底跃户型图:

3房跃上

跃下:3个大尺度采光井,采光无敌

『2』底跃样板间视频

☎国宾江山·洺悦天宸/洺悦峯售楼处电话028-83516246「来电尊享优惠活动」☎

☎国宾江山·洺悦天宸/洺悦峯【置业经理】:15928896133「微信同步」☎

温馨提示:为了给您提供更高更好的接待服务质量,看房请提前致电售楼处预约!

【有免费看房车接送服务,如需预约,请致电售楼处】

洺悦峯项目

项目参数:

占地面积:18亩

总户数:200户

面 积 : 114平/132平/240平底跃

均 价 : 15000-23000元/平

总 价 : 227-360万

物 业 费 : 3.6/平/月(中海物业)

梯 户 比 : 2T4户

总 层 高 : 17F

车 位 比 : 1:1.5

容 积 率 : 2.0

交房时间:现房,所见即所得

交房标准:清水(顶、底跃)/其余精装(带三大件)

230万即可买进国宾,享受金牛优质教育资源!!!

114三房户型

114三房样板间视频

132四房户型

132四房样板间视频

峯三房底跃上

跃下

因地理位置优越,学校,生活配套齐全,优质公立学校,顶级私立学校环绕,现房投资价值高!!

目前天宸135,三房租金在6000左右!!!

☎国宾江山·洺悦天宸/洺悦峯售楼处电话028-83516246「来电尊享优惠活动」☎

☎国宾江山·洺悦天宸/洺悦峯【置业经理】:15928896133「微信同步」☎

温馨提示:为了给您提供更高更好的接待服务质量,看房请提前致电售楼处预约!

【有免费看房车接送服务,如需预约,请致电售楼处】

全部

相关资讯

报名成功
稍后会有专业的置业顾问联系您
返回楼盘

频道导航

返回首页

看房小程序

APP下载

电话拨通后,请您手动拨打分机号

确定拨打电话

电话号码:

分机号:(可能需要拨分机号)