成都龙泉东安湖商铺: 大华湖畔里售楼处电话_预约看房【2024成都新房二手房成交情况及2025年成都新房走势】

搜狐焦点德阳站

2025-07-16 08:43:29

购房群

买房如何避坑,加入购房群,看看他们怎么说

立即进群

02883516246

☎售楼处电话028-83516246「来电尊享优惠活动」☎

☎【置业经理】:15928896133「微信同步」☎

温馨提示:为了给您提供更高更好的接待服务质量,看房请提前致电售楼处预约!

【有免费看房车接送服务,如需预约,请致电售楼处】

成都现在房产市场三级分化,第一类是核心资产,止跌横盘或小幅上涨都有,补涨的苗头已经出现了,这类资产受大环境影响很大,也是市场风向标,随时被人关注。

第二类是优质产品,表现不一,涨跌幅取决于之前的价格泡沫大小,像北门几个改善楼盘涨跌就很小,没有大涨过自然不会大跌,而以天新为代表的新开发区域、次新盘往往入市价格偏高,止跌压力比较大。

第三类是完全丧失流动性的小区,集中在五城区,只有居住价值,一年成交几套,探讨涨跌意义不大,成交数据比较偏离真实市场情况。

2024年成都新房市场趋向高改化:成交主力面积段为120-144㎡,成交主力总价段为200-300万。其中,建面180㎡以上新房供应总量约为255万方,成交总量约为258万方,为成都新房市场成交次主力。

二手房成首置、首改家庭主阵地:2024年大成都二手房成交主力面积段为90㎡以内,成交次主力面积段为90-120㎡,建面120㎡以内中小户型的成交套数占比超八成,这说明在成都购买二手房市场的家庭,主要住房需求为首次置业或者首次改善;

根据2024年大成都二手房成交价格来看,总价两百万以内的房源成交占比接近九成,这说明活跃在成都二手房市场的家庭购房预期价格普遍在两百万以内。据CRIC数据,11月成都二手房成交规模居全国重点52城之首,远高于上海、北京,约为广州+深圳单月二手房成交总量的1.65倍

成都二手房成交量之所以能领先于其他城市,一方面是因为卖旧买新的置换群体日渐增多,促使二手房挂牌量持续增加。

关键是成都对四川川内具备天然的人口吸附能力,城市首位度居全国第四,一城GDP占全省36.7%,仅次于银川、西宁、长春三市。

其二是人口流入在全国处于中上水平,考虑到成都已经有超2100万常住城市人口,这个数据也是很亮眼的。

第三是新房大幅度缩量,购买力转向二手市场,特别是总价400万以内这部分需求,在主城供应量正在减少。

对于2025年成都的房产走势,预测如下:5+2区域全年只卖了31宗地,新房库存见底,多个200㎡+户型曝光,大户型成明年新房供应主流。

大华湖畔里(商铺)|东安湖芯的恒定资产

东安湖|地铁旁|全业态|现铺

商铺产品信息

• 项目区位:龙泉驿区湖岸南路999号(位于东安湖CAZ中央活力区)

• 面积区间:约28-164㎡

• 价格区间:118万-339万

• 在售套数:40套

• 楼层:1#楼1层 / 2-1#楼1层/ 2-2#楼1层/3号楼

• 性质:公寓底商(纯商业 4栋公寓2栋商墅组成)

• 层高:5.9米

• 公摊:1/2号楼 5-7% 3号楼15%

• 装修情况:清水

• 物业费:8元/㎡

• 总户数:1460户

• 付款方式:按揭五成/全款

• 交付时间:2024年10月31日

一、项目介绍:

项目位于龙泉驿湖岸南路999号东安湖CAZ中央活力区国际商务中心(头排观湖领地)

【区域战略】

东进战略,国家战略,成渝双城经济圈、世界大学生夏季运动会2023年7月在东安新城召开,汇聚世界目光,打开成都未来发展空间

【规划配套】

5500亩东安湖生态公园、约1910亩驿马河公园、约32平方公里锦绣天府、全国最大城市森林公园龙泉山森林公园、东安阁酒店、木棉花酒店、图书馆、大剧院、新闻中心等配套环伺。东安湖10.2公里环湖跑道、图书馆、大剧院、市民生活中心、科技馆、艺术馆、多功能体育馆、游泳馆以及博物馆。

【交通】

地铁2号线、20号线(规划中)、25号线(规划中)、桃都大道、湖低隧道、公交L11等,快速路+隧道+地铁+公交。

【公园】

约5500亩东安湖生态公园、约1910亩驿马河公园、约32平方公里锦绣天府(龙泉欢乐田园)、龙泉山城市森林公园

项目亮点:

1、项目位于东安新城CAZ中央活力区国际商务中心,东安新城践行公园城市理念,打造一座中国风范、蜀川魅力、成都特色的公园城市。目前,CAZ中央活力区已入驻威马汽车全球研发中心、西门子中国研究院、浙江大华智慧城等集团总部,成为成都新一代高精尖的商务前沿中心,除此,东安阁七星级酒店、五星级木棉花酒店、五星级万豪酒店,都汇聚在东安新城。

2、既享受CAZ中央活力区的高规格、又享受城市CBD的生活配套、完善的交通、医疗、教育、商城所见即所得,约5500亩东安湖公园、约1910亩驿马河公园、背靠全球最大龙泉山城市森林公园。

3、引鉴新加坡建筑理念,启幕城市窗格。外立面整体采用现代简约风格,以灰色、白色为主基调,大面积运用玻璃幕墙,呈现共建化立面高级感;部分外立面则以玻璃幕墙搭配石材、线条与建筑形成有意思的城市窗格,达到了一种丰富、有序、统一的姿态,形成强烈的品质感。

4、1.5公里人口超过10万+,知名集团总部、甲级写字楼具备丰富客群

5、成都宝之源物业服务有限公司作为成都高端服务的物业样本,是一家从事物业管理、房地产经纪、房地产咨询等业务的公司。全天候24小时管家服务,12小时礼宾服务,宝之源物业让服务再一次被重新定义。

户型鉴赏:

总平图

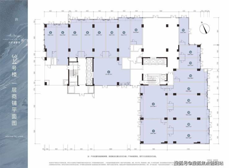
3号楼户型图

1号楼一层商业平面图

2-1号楼一层商业平面图

2-2号楼一层商业平面图

希尔顿酒店,翡丽酒店均已签约入驻,区域价值再次升级。

现场照片

☎售楼处电话028-83516246「来电尊享优惠活动」☎

☎【置业经理】:15928896133「微信同步」☎

温馨提示:为了给您提供更高更好的接待服务质量,看房请提前致电售楼处预约!

【有免费看房车接送服务,如需预约,请致电售楼处】

免责声明:

以上内容仅作为邀约邀请,涉及的图片为部分区域实拍图和美学畅想图,具体内容请以现场公示和合同约定为准;本文部分资料、部分图片来源于网络,如有侵权请联系我们删除。

全部

相关资讯

报名成功
稍后会有专业的置业顾问联系您
返回楼盘

频道导航

返回首页

看房小程序

APP下载

电话拨通后,请您手动拨打分机号

确定拨打电话

电话号码:

分机号:(可能需要拨分机号)