☎售楼处电话028-83516246「来电尊享优惠活动」☎
☎【置业经理】:15928896133「微信同步」☎
温馨提示:为了给您提供更高更好的接待服务质量,看房请提前致电售楼处预约!
【有免费看房车接送服务,如需预约,请致电售楼处】
?年度爆款项目即将启动?
?天府大道上核心区域
☄️6️⃣字头水电气三通公寓
?租金2000每月起高回报项目
?双地铁1️⃣号线➕1️⃣8️⃣号线
❣️每年上千万巨大人流
?【项目参数】
占地面积:28.35亩
建筑面积:241470.5m
目前主售:双发天禧中心2号楼1、2单元
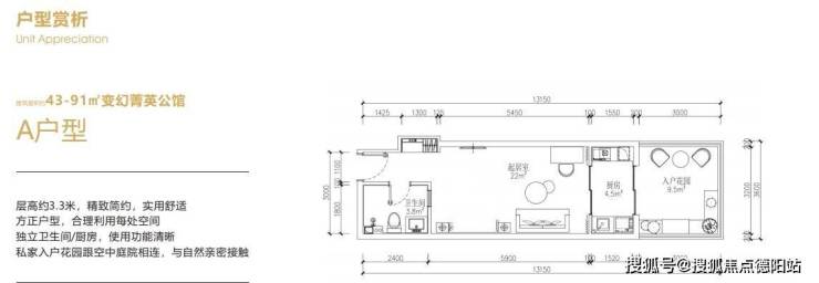
主力户型:57㎡
面积段:43㎡-91㎡(主力面积52-60)
层高:3.25-3.3米
总高:25层
首开楼层:13、22
三通:水电气三通
公摊:30%左右
梯户比:6T33户 6T37户
物管费:4.9元
交付时间:合同2025年12月31日前
交付标准:清水
均价:6600-7500
付款方式:一次性
✅开发商:成都双发君地置业有限公司
✅物业公司:四川博蕙京通物业管理有限公司
?【核心卖点】
天府大道中轴线上 唯一在售总价低 小面积水电气三通产品 周边楼盘无竞品
双地铁(1号线/18号线)便捷出行
可交于 锦江国际(世界第二,亚洲第一酒店集团)旗下"欧暇地中海"酒店运营,清水交房后8个月为装修期(没有收益),装修好后6个月期间作为酒店培育期,没有保底收益,享受酒店运营分红收益(收益五五分成),从第7月开始,正式享受保底(保底30元/平)加酒店运营五五分红, 平均收益:3800-4000/月!
地处于金融城,新川科技园,天府新区中央商务区三大板块交汇的黄金金三角区域,桥头堡价值洼地,大大吸附周边区域人流。
每层自带600-700㎡高线公园。 每层只有十户享受额外赠送7-9㎡阳台空间。

【区域位置】
位于成都市天府新区天府大道1888号,是智能化绿色长廊的菁英空间,含有高端酒店、文化会所及中高端商业配套的综合体物业。
【交通配套】:
双地铁上盖:1号线华阳站 18号线海昌路站
503 504 T205等二十条公交线路
五纵四横立体网络
五纵:剑南大道、益州大道、天府大道、梓州大道(科华路南延线)、成自泸高速;
四横:三环路、绕城高速、华阳大道、麓山大道。
【商业配套】:项目1-4楼自带30000方的上海协星星光商业体,-1楼大型超市盒马生鲜,-2至-4楼自带1661个停车位 。
项目斜对面是家乐福购物中心
项目南面是三利广场,是集商务办公、综合购物、高端酒店、商业体验为一体的综合性购物广场,
项目对面还有金地三期约70万方的大型商业综合体,周边还有沃尔玛山姆会员店、红星美凯龙、富森美等综合性商业,实现人居蓝本的同时,项目在后期还会迎来配套的再一次升级。
【医疗配套】:拥有天府新区人民医院、四川石油总医院、玛利亚天府妇产儿童医院、天府新区安琪儿国际妇女儿童医院、四川省中西医结合医院、四川宝石花医院等。
【生态娱乐】:项目旁边是海昌极地海洋公园、南湖梦幻岛,南湖湿地公园等。
【优质教育】:金苹果幼儿园 天府四小 天府五小 天府实验小学 天府实验中学 天府实验外国语学校等。
✅【多变户型】
✅【装修风格】
☎售楼处电话028-83516246「来电尊享优惠活动」☎
☎【置业经理】:15928896133「微信同步」☎
温馨提示:为了给您提供更高更好的接待服务质量,看房请提前致电售楼处预约!
【有免费看房车接送服务,如需预约,请致电售楼处】