成都【朗基紫境府】售楼处028-85582973【营销中心】
☎【置业顾问】15928896133「微信同步」☎
☎【置业顾问】18380188671「微信同步」☎
___欢迎来电咨询丨专业一对一热情服务丨看房需提前预约
——如有侵权请联系我们删帖——
温馨提示:为了节约您的等待时间,看房请提前致电售楼处预约!!!
最后两套 现房叠拼 峯层终藏
地铁口现房叠拼全实景呈现🌳压轴席位收官献礼加推
————————————————————
成都新政 遥遥领先
高新南 最后两套压轴现叠全国可购错过不
1、项目概况参数
占地面积:123亩
容积率:3.0
梯户比:1T2
物业类型:70年产权住宅
物业费:4.5元/平米
层高: 6.7米/一层3.5米、二层3.2米
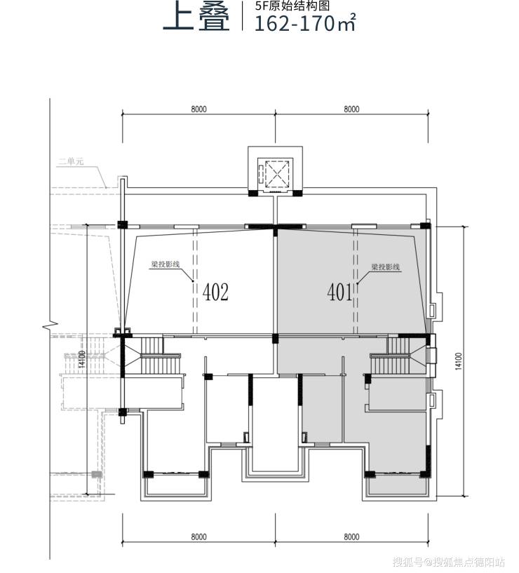
上叠:建筑面积:162-170㎡(实得312-325)
价格:590-600万
交付标准:清水交付(自己搭建)
现房销售,款清手续齐全就可交房
总平图
朗基地产——始于成都 布局全国
朗基地产,深耕成渝、布局全国、进驻大湾区,业务版图深入成都、重庆、绵阳、西安、深圳等9大重点城市,开发了朗基·望今缘、朗基·桐梓林欧城、朗基·和今缘等40余部人居巨著。
(朗基布局分布图)
3、区域篇
新川产城融合 腾飞大势所趋
新川板块聚合了生态、商业、教育文创等多方面优质资源,是高新区甚至是成都区域最具有潜力的板块,经过30载发展高新区已成为新一线成都的世界封面。超1100家金融机构吞吐全球千亿资本,屹立成都城市价值之巅,成为成都市开放-交流-融合-创新的极核和引擎。
(新川科技园鸟瞰图及实拍图)
新川创新科技园位于成都高新区南部园区核心位置,占地10.34平方公里,是新加坡和四川省合作的首个科技园区开发项目,也是成都市重要的国际交流窗口和创新创业平台。园区固定投资资产逾百亿,汇聚近百家产业机构,目前方正科技、爱奇艺总部、OPPO、超图软件等35家顶尖企业入驻,更是5G和人工智能创新示范基地。
4、配套篇
项目区位示意图
四纵四横地铁旁 开启便捷生活圈
四纵:天府大道、梓州大道、中柏大道、成仁快速路
四横:绕城高速、应龙大道、和迎大道、新川大道
邻距离:地铁6号线(新通大道站C口)仅100余米,家门口就是地铁口。地铁6号线在侧,串联全城,缩短出行时间,生活出行指数UP。经换乘至地铁1号线,半小时可达金融城观赏双子塔、品味美食;40分钟左右到达春熙路步行街,逛街购物,出行指数yyds!
(图片来源于成都淘房志微信公众号)
对望新川之心 公园居住范本
新川之心智慧公园规划面积约58万平米,是成都首个国际化生态科技智慧公园,担负新川城市“绿核”的重任,绘就了新川独一无二的生态底色。
(新川公园实拍图)
🛒繁华商圈环绕 吃喝玩乐购一站式
区域的商业氛围十分浓厚,8号邻里中心、远大购物中心、伊藤洋华堂,新怡商业广场,还有在建“华润万象天地”,坐拥区域高端商圈配套,可满足区域内业主的居家购物需求。
(图片来源于网络)
优质教育资源 护航孩子未来
在教育资源方面,区域内24所学校规划,紫境府属于中和B区,目前成都师范银都紫藤小学、高新区实验小学新川分校、高新区新川科技园小学都在划片范围内。(信息来源于成都高新微信公众号,此处仅为地缘性教育资源介绍,不作为入学依据,具体请参考当地当年教育部门相关政策)
(图片来源于网络)
优质医疗在侧 守护全家健康
项目毗邻高新龙翔医院、四川现代医院(高新院区)、成都市天府新区人民医院、四川宝石花医院、四川省中西医结合医院(在建)等优质医疗资源,为家人健康筑起坚实后盾,为品质人居加分。
(效果图|图片来源于网络)
5、产品篇
🏡百亩大盘 新川时代样板
臻景——仅3.0低容
城南少有的百亩生态大盘
123亩低密奢居体验
全明通透,采光通风俱佳
园中漫步,目之所及皆风景
(效果图)
臻质——干挂石材
在外立面上采用市场近乎绝版的干挂石材到顶
搭配质感铝线条
保温隔热、实用耐腐且更具质感
足以可见项目塔尖改善属性
(实景图)
臻园——下沉式会所
社区实景园林下沉式会所(位于1#地块)
规划了恒温泳池、健身会所、童趣空间等
自成兴趣之圈层,弥漫生活之意趣
(实景图)
臻境——实景现叠
紫境府建面约160-170㎡地铁口舒居现房叠拼
新川极少,所见及所得
上下叠空间布局通透大气
对望云海星空,生活诗意悠然
(实景图)
臻享——可变空间
至多可享约90-140㎡超大空间
采用三厅一体化LDK横厅设计
约8m尺寸开间,尽享舒适体验
露台空间,营造专属生活场
四纵四横地铁旁 开启便捷生活圈四纵:天府大道、梓州大道、中柏大道、成仁快速路四横:绕城高速、应龙大道、和迎大道、新川大道邻距离:地铁6号线(新通大道站C口)仅100余米,家门口就是地铁口。地铁6号线在侧,串联全城,缩短出行时间,生活出行指数UP。经换乘至地铁1号线,半小时可达金融城观赏双子塔、品味美食;40分钟左右到达春熙路步行街,逛街购物

在教育资源方面,区域内24所学校规划,紫境府属于中和B区,目前成都师范银都紫藤小学、高新区实验小学新川分校、高新区新川科技园小学都在划片范围内。
在外立面上采用市场近乎绝版的干挂石材到顶,搭配质感铝线条
社区实景园林下沉式会所(位于1#地块),规划了恒温泳池、健身会所、童趣空间等,自成兴趣之圈层,弥漫生活之意

户型鉴赏
成都【朗基紫境府】售楼处028-85582973【营销中心】
☎【置业顾问】15928896133「微信同步」☎
☎【置业顾问】18380188671「微信同步」☎
___欢迎来电咨询丨专业一对一热情服务丨看房需提前预约
——如有侵权请联系我们删帖——
温馨提示:为了节约您的等待时间,看房请提前致电售楼处预约!!!