02883516246
☎天投中海·天府合印售楼处电话028-83516246「来电尊享优惠活动」☎
☎【天投中海·天府合印置业经理】:15928896133「微信同步」☎
温馨提示:为了给您提供更高更好的接待服务质量,看房请提前致电售楼处预约!
【有免费看房车接送服务,如需预约,请致电售楼处】
成都现在房产市场三级分化,第一类是核心资产,止跌横盘或小幅上涨都有,补涨的苗头已经出现了,这类资产受大环境影响很大,也是市场风向标,随时被人关注。
第二类是优质产品,表现不一,涨跌幅取决于之前的价格泡沫大小,像北门几个改善楼盘涨跌就很小,没有大涨过自然不会大跌,而以天新为代表的新开发区域、次新盘往往入市价格偏高,止跌压力比较大。
第三类是完全丧失流动性的小区,集中在五城区,只有居住价值,一年成交几套,探讨涨跌意义不大,成交数据比较偏离真实市场情况。
2024年成都新房市场趋向高改化:成交主力面积段为120-144㎡,成交主力总价段为200-300万。其中,建面180㎡以上新房供应总量约为255万方,成交总量约为258万方,为成都新房市场成交次主力。
二手房成首置、首改家庭主阵地:2024年大成都二手房成交主力面积段为90㎡以内,成交次主力面积段为90-120㎡,建面120㎡以内中小户型的成交套数占比超八成,这说明在成都购买二手房市场的家庭,主要住房需求为首次置业或者首次改善;
根据2024年大成都二手房成交价格来看,总价两百万以内的房源成交占比接近九成,这说明活跃在成都二手房市场的家庭购房预期价格普遍在两百万以内。据CRIC数据,11月成都二手房成交规模居全国重点52城之首,远高于上海、北京,约为广州+深圳单月二手房成交总量的1.65倍。
成都二手房成交量之所以能领先于其他城市,一方面是因为卖旧买新的置换群体日渐增多,促使二手房挂牌量持续增加。
关键是成都对四川川内具备天然的人口吸附能力,城市首位度居全国第四,一城GDP占全省36.7%,仅次于银川、西宁、长春三市。
其二是人口流入在全国处于中上水平,考虑到成都已经有超2100万常住城市人口,这个数据也是很亮眼的。
第三是新房大幅度缩量,购买力转向二手市场,特别是总价400万以内这部分需求,在主城供应量正在减少。

对于2025年成都的房产走势,预测如下:5+2区域全年只卖了31宗地,新房库存见底,多个200㎡+户型曝光,大户型成明年新房供应主流
天投中海·天府合印,位于天府新区核芯天府前湾板块,紧邻现行天府商务区,且北接麓山、西连麓湖等高端板块,地理优势得天独厚。
项目1条大路直通天府CBD核芯地标,;3个红绿灯,可便捷通达天府大悦城;4站无需换乘直达天府商务区站。
溯源中海的择址观,过去的每一笔落子,皆是顺应成都发展步调,踩准每一个关键节点,在城市核芯区域落子扎根。
从老牌富人区神仙树板块,再到大源、金融城、锦江生态带、麓湖板块…中海入蓉22载,共匠造30盘,每一步脚印都踏准城市主流地段核芯区位,为城市建设发展贡献力量。
自天府前湾规划出炉以来,中海再次凭借敏锐的市场洞察和对城市功能的精研,看到了这一板块的发展红利及潜力。这一次,时代的指针指向了天府前湾,中海在城南的深耕与布局,也因此迈向了一个新的台阶。
天府前湾,是天府新区核芯区城市规划的收官之作,参照上海前滩、杭州前湾先进经验,将形成“天府森林新绿窗”、“政法服务新高地”、“公园生活新社区”三大功能定位。
板块内布局五大主题公园社区组团、串联社区的生态走廊、双TOD交通枢纽等资源,以公园人居为核芯定位,与CBD的商业规划相生相伴,高端居住基因凸显。
产业方面,天府前湾规划有“全国首个法务区”,作为政府打造的天府新区城市副中心,也是天府功能区的重要支撑极。
自2021年正式启动至今,法务区已聚集了最高人民法院第五巡回法庭审判点、成都中院金融法庭等司法机构14个,律所、公证、仲裁等法律服务机构100+家。
未来,四川省高级人民法院、成都市中级人民法院、国家法律学院、法治思想实践馆都落足于此,至2025年前,天府法务区将加快建设重点项目27个,总计建筑面积约160万平方米,总投资超190亿元。
*以上信息来源于四川天府新区公园城市建设局。
纵观产业布局,不难发现在天府前湾落子唯一法务区的原因。板块向北连接以IT、医药为主的金融城及新川科技园产业区,更有以金融产业为主导的天府国际基金小镇,南连众多大型商业、文化企业聚集的天府CBD。
法务产业在天府前湾板块的落地,不仅将新川、天府CBD两大商务中心串联起来,同时也填补了中间的产业空白,沿线形成了一条城南黄金产业腰带。
近20余年,成都城南的发展和崛起,沿着“天府大道”这一主轴,轰烈的拉开帷幕,让世界看到了一座新一线城市的腾飞。这个过程中,中海在天府大道西翼,留下了浓墨重彩的一笔。
然而,当天府大道以西的产业与楼市步入成熟饱和期,国际城南下个十年的重头戏看哪里?
答案是:天府西翼即将收官,天府东翼正在启幕。
2022年,基于对城市的深度参与和理解,中海再一次选定城南,洞见城南发展的必然趋势和下一条航道,重点布局天府东翼。
在中海布局的天府东翼战略线上,天府前湾坐拥着中间核芯位置。天府合印作为中海洞见城市发展的重要落子,以优越品质,承载着再次革新人居高度的使命。
如今,天府前湾规划再添重大利好!天府总部商务区向北扩容至牧华路和麓山大道,天府前湾升级成为天府总部商务区的组成部分。这也意味着,未来板块将得到更为合理的规划,实现区域更优发展。
天投中海·天府合印凭借五大价值维度,从品牌联袂、产品奢配、风格定制、产品超配、户型创造等方面,成为了天府新区当之无愧的首置灯塔级项目。
·品牌联袂:
成都天投集团&中海企业集团实力共筑
·产品奢配:
酒店式归家大堂,营造生活的精致仪式感
·风格定制:
独特风帆楼型/现代感外立面设计/潮感商业街区/都会风公区
·产品超配:
70亩大盘规划/约170米中轴庭院市场罕见/全南北朝向
户型&装修:
建面约92-101m²舒适三房,融入五维舒居标准体系
建面约113m²横厅三房,带来改善级空间进阶感受
建面约133m²央景四房,以大尺度营造比肩大平层的居住体验
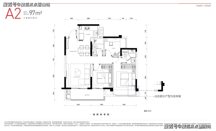
天府合印一批次只会推出9栋共计108套房源,因此它这次也只有两个户型可供选择,分别是97平三房两厅双卫和113平米三房两厅双卫。
A2户型:97平三房两厅双卫

这个户型就是天府合印唯一南向阳台封窗,计算全面积的户型,原因在于它需要公建化外立面保持城市界面的统一,但首批次在价格上也做了对应倾斜,主力总价段约200-210万。
户型本身的设计非常成熟,97平做到了三房两厅双卫,基本上就算满足了功能性要求了。而面宽9.8米,三开间朝南,三面采光,明厨明卫,则说明采光通风效果不错,舒适度会比较高;尺度方面,客厅开间3.6米,主卧开间3.3米,也是够用的;而主卧和书房0.7米进深的飘窗赠送,也是一个亮点。
D户型:113平三房两厅双卫

该户型为项目主力北侧户型,面宽达到了12.1米,双面采光。为了减少南侧户型对它的遮挡和影响,它将最不重要的次卫和书房放在了可能被遮挡的位置。而相对重要的客餐厅和厨房,则选择了朝北,并做了一体化设计,使得整体空间看上去仿佛达到了130-140平左右的户型。
主卧向南,带一个可采光的转角衣帽间,这在113平的户型中比较少见。赠送部分,会有一个1.6米宽,6.7米长的开放式阳台赠送一半的面积,约5.36平;另有主卧飘窗面积全赠送,约2.38平。
其它户型方面,因为本批次不推,且很多户型大同小异,所以我就放一个133平的户型图,大家自行了解,这3个户型也算是天府合印最具代表性的户型了。

关于装修,天府合印是精装交付的,装标2995元/平,通过样板间的感受来看,是符合中海这种等级的大厂标准化水准的,整体设计感和配置属于业内主流水平,物有所值。



展示样板间实拍
三大件方面,格力的中央空调、博世的地暖、百朗的新风一应俱全;天地墙方面,公区地面为马可波罗的瓷砖、卧室则是贝尔的实木复合地板,墙面和顶面为嘉宝莉乳胶漆;厨卫方面,厨房采用了博洛尼橱柜、方太的烟机灶具消毒柜、摩恩的龙头、弗兰卡的厨盆和名族的凉霸;卫生间使用了博洛尼的浴室柜和镜柜、乐家的台盆洁具淋浴五金等;此外,细节方面还做了电视背景墙、玄关柜、智能马桶盖等。


展示样板间实拍
总的来说,除了墙面没有配置墙纸这一项,显得有些留白之外,其它的配置和设计感都是不错的,作为“人生第一套”房来说,面子和里子都没有落下。
☎售楼处电话028-83516246「来电尊享优惠活动」☎
☎【置业经理】:15928896133「微信同步」☎
温馨提示:为了给您提供更高更好的接待服务质量,看房请提前致电售楼处预约!
【有免费看房车接送服务,如需预约,请致电售楼处】
☎天投中海·天府合印售楼处电话028-83516246「来电尊享优惠活动」☎
☎【天投中海·天府合印置业经理】:15928896133「微信同步」☎
温馨提示:为了给您提供更高更好的接待服务质量,看房请提前致电售楼处预约!
【有免费看房车接送服务,如需预约,请致电售楼处】
免责声明:
以上内容仅作为邀约邀请,涉及的图片为部分区域实拍图和美学畅想图,具体内容请以现场公示和合同约定为准;本文部分资料、部分图片来源于网络,如有侵权请联系我们删除。