☎高投·铂郡售楼处电话028-83516246「来电尊享优惠活动」☎
☎【高投·铂郡置业经理】:15928896133「微信同步」☎
温馨提示:为了给您提供更高更好的接待服务质量,看房请提前致电售楼处预约!
【有免费看房车接送服务,如需预约,请致电售楼处】
成都现在房产市场三级分化,第一类是核心资产,止跌横盘或小幅上涨都有,补涨的苗头已经出现了,这类资产受大环境影响很大,也是市场风向标,随时被人关注。
第二类是优质产品,表现不一,涨跌幅取决于之前的价格泡沫大小,像北门几个改善楼盘涨跌就很小,没有大涨过自然不会大跌,而以天新为代表的新开发区域、次新盘往往入市价格偏高,止跌压力比较大。
第三类是完全丧失流动性的小区,集中在五城区,只有居住价值,一年成交几套,探讨涨跌意义不大,成交数据比较偏离真实市场情况。
2024年成都新房市场趋向高改化:成交主力面积段为120-144㎡,成交主力总价段为200-300万。其中,建面180㎡以上新房供应总量约为255万方,成交总量约为258万方,为成都新房市场成交次主力。
二手房成首置、首改家庭主阵地:2024年大成都二手房成交主力面积段为90㎡以内,成交次主力面积段为90-120㎡,建面120㎡以内中小户型的成交套数占比超八成,这说明在成都购买二手房市场的家庭,主要住房需求为首次置业或者首次改善;
根据2024年大成都二手房成交价格来看,总价两百万以内的房源成交占比接近九成,这说明活跃在成都二手房市场的家庭购房预期价格普遍在两百万以内。据CRIC数据,11月成都二手房成交规模居全国重点52城之首,远高于上海、北京,约为广州+深圳单月二手房成交总量的1.65倍。
成都二手房成交量之所以能领先于其他城市,一方面是因为卖旧买新的置换群体日渐增多,促使二手房挂牌量持续增加。
关键是成都对四川川内具备天然的人口吸附能力,城市首位度居全国第四,一城GDP占全省36.7%,仅次于银川、西宁、长春三市。
其二是人口流入在全国处于中上水平,考虑到成都已经有超2100万常住城市人口,这个数据也是很亮眼的。
第三是新房大幅度缩量,购买力转向二手市场,特别是总价400万以内这部分需求,在主城供应量正在减少。

对于2025年成都的房产走势,预测如下:5+2区域全年只卖了31宗地,新房库存见底,多个200㎡+户型曝光,大户型成明年新房供应主流
项目基本信息:项目名称:【高投·铂郡】(商品房)
南高新最后的价值洼地!新川板块极核位置,金融城大源之上,城南高新最后的高端居住圈。
南高新·新川心·极核之地,国企高投top级产品
新川核心C位,15分钟全系优质生活圈交通:邻近地铁6号线新通大道站、地铁1号线华府大道站;接驳新通大道、梓州大道等主干道路,出行便捷;
教育:金苹果领办新川第二幼儿园、高新实验新川分校、新川科技园小学、金苹果锦城第一中学、金苹果锦城第一中学附属小学、银都紫藤小学,优质学区环伺;
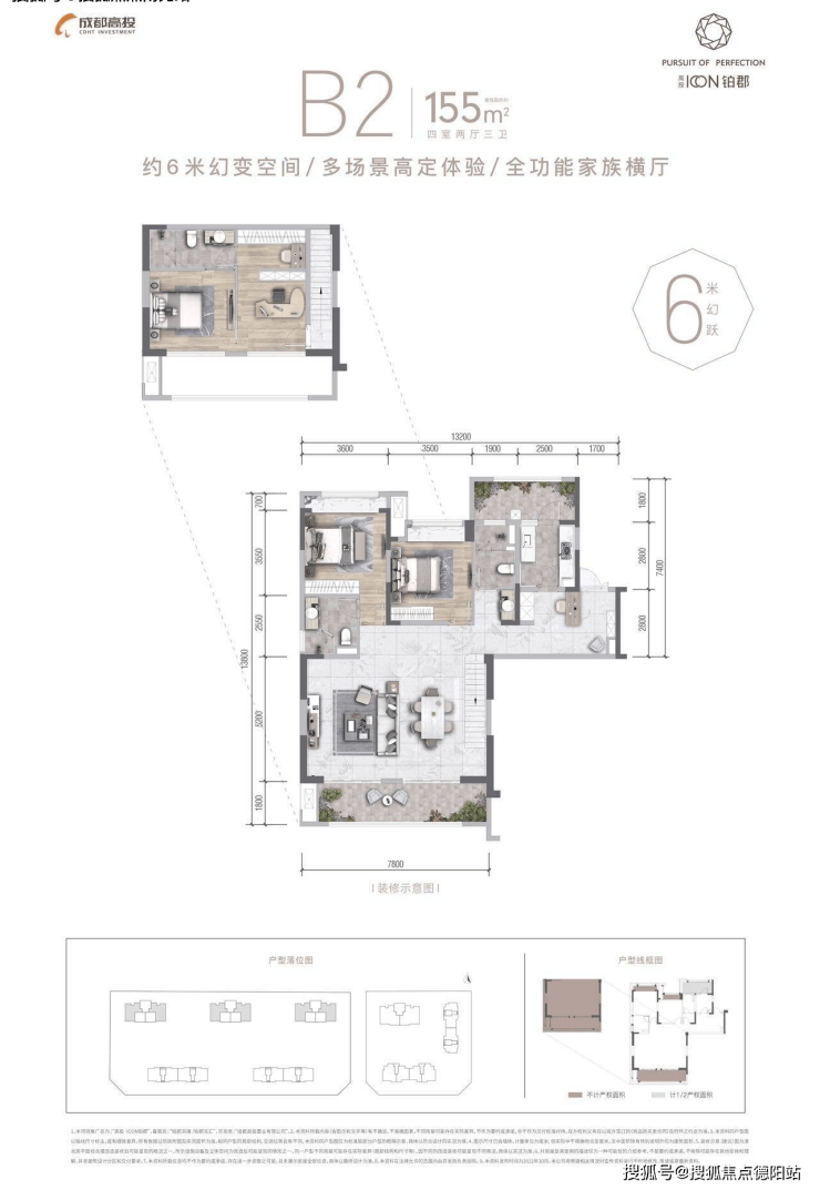
户型鉴赏
B1建筑面积约163㎡,实得面积约230㎡
客厅6米挑高,超大空间分区配置,跃层独立私密主卧豪华套房,南北双阳台通透采光,近8m双观景阳台享无敌视野。

B2建筑面积约155㎡,实得面积约210㎡
客厅6米挑高,超大空间分区配置,跃层独立私密主卧豪华套房,南北双阳台通透采光,近8m双观景阳台享无敌视野。

A1 建筑面积约89-108㎡
10层低密度洋房平层,1梯2户南北通透,动静分区,双阳台设计,高端精致三房。

——以上信息仅供参考,具体以售楼部公示为准
☎高投·铂郡售楼处电话028-83516246「来电尊享优惠活动」☎
☎【高投·铂郡置业经理】:15928896133「微信同步」☎
温馨提示:为了给您提供更高更好的接待服务质量,看房请提前致电售楼处预约!