☎合信k101售楼处电话028-83516246「来电尊享优惠活动」☎
☎【置业经理】:15928896133「微信同步」☎
温馨提示:为了给您提供更高更好的接待服务质量,看房请提前致电售楼处预约!
【有免费看房车接送服务,如需预约,请致电售楼处】
2024年二手房总成交231376套,90㎡以下的占比45.91%,90-140㎡的占比30.64%;总价200万以内的占比70.67%。并且,2010年-2019年的房源,成交最多,占比52.2%。
但今年4月,成都成交的二手房中,90㎡以下 的占比54.07%,90-140㎡的占比37.18%,总价200万以内的占比85.67%,其中100-150万的占比最多27.44%。(数据来源:好好选房)

与去年相比,成交的面积和总价都有所增长,极刚需经过几年的释放已经初见顶,初改需求开始在二手房端释放,预计未来还将进一步走强。
当然,二手房的价格平稳仅仅只均价,随着行情的高涨,不同区域版块之间的价差也逐渐明显,核心城区尤其是高新南、锦江区、成华区等挂牌价和成交均价都呈现出价上涨的趋势。
据克而瑞四川的统计,今年2月仅有金融城、攀成钢、外金沙、大源、麓湖5个板块的二手房成交均价超过了2.5万元,前三依次是麓湖2.89万元/㎡、金融城2.73万元/㎡、攀成钢2.59万元/㎡;3月就攀成钢和金融城就突破了3万元,分别为3.12万元/㎡和3.02万元/㎡。同时,成华区是5+2区中二手房成交周期最短的,同比缩减为169天;天府新区则是最长的,同比增加为233天。
对于2025年成都购房者
刚需:优先考虑主城区地铁沿线次新房,或外围高性价比新盘。
改善/豪改:关注核心区优质新盘(如现房或准现房,价格低产品一般也是优质新房),避免高位接盘非稀缺性豪宅。
卖房者:非核心区房源建议适时出货,核心区次新房可观望至下半年政策窗口期。
2、刚需客群:优先二手房,上半年为窗口期
上半年挂牌放量较多,优质房源不断出现,不追求极致价格,从而考虑综合性价比的话,是可以考虑的关键节点。
3、刚改群体:主城新房窗口期短,需择机抄底
主城区新房供应减少,但产品迭代加速(如得房率提升、功能空间优化),总价300-500万区间竞争激烈,需警惕价格虚高项目。
除非有长期看好了的缘分之选,那么建议时机或为传统淡季的年中。届时最新供地已呈现,政策应出尽出,新房处于疲态,价格抄底机会多。
4、改善/豪改群体:核心区新盘优先,下半年警惕高位风险
土拍价格是还会涨,但是否击鼓传花?未来能否保值,存在很大的不确定性。带入自住属性考虑买入豪宅的话,精神压力会小很多。
但单纯从豪宅的价格时机来看,建议年初年末。
年初开发商推盘节奏较慢,核心区高端项目蓄客压力大,开盘价格尚未完全透支预期。
四季度抄底溢价项目,若市场分化加剧,年底部分高价项目可能因去化压力降价(如总价1000万+房源或降价10%-15%),但需关注房企资金链风险。
警惕楼面价虚高的伪豪宅。
5、风险提示——
信心比黄金重要,积极情绪得到修复,温和看涨成为主流舆论,房段子对此表示谨慎看多成都楼市。
但随着市场分化加剧,需警惕外围区域库存压力及房企资金链风险;利率政策若转向或影响短期需求释放。
2025年成都楼市将呈现“核心区稳中有升、外围区域承压,新房高端化、二手房刚需化”的格局,政策托底与市场分化仍是主基调。
【项目概况】
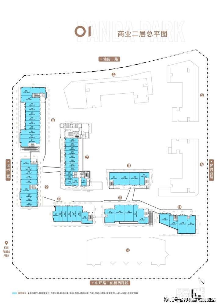
作为二八板块核心商业地标,合信k101广场占地87亩,分两期开发。一期45.8亩,二期41.6亩,总建面达27万方,容积率3.5(一期2.6,二期4.5)。项目主打LOFT商办产品及中环稀缺商铺,产权年限40年。
【商铺信息】
一期推出199套1-2层黄金商铺,面积12-80㎡,支持灵活组合。公摊率5-6栋仅3.2%,9栋8.4%,10栋9.2-12.35%。商铺层高优势显著:首层5.2-6米,二层4.5米,部分赠送屋顶空间或露台。
【LOFT产品】
一期推出2521套精智LOFT,主力户型24㎡套一总价32-33万,34㎡套二均价46万。4.2米层高设计,5栋为清水交付,6栋提供精装方案(24㎡装修费4.3万/套,34㎡5.3-5.6万/套)。4梯27户配置,单层面积709-716㎡。
【物业服务】
由四川天诚物业提供专业服务,商业物业费8元/㎡,LOFT5元/㎡。得房率66-110%,预计2026-2027年分批交付。
【区位价值】
项目位居成都七大副中心之一的二八板块,定位CCD中央文创商务区。30亿巨资打造的中国公园城市商业综合体,对标新加坡"星耀樟宜",将成为西部文创新地标。
【文创产业集群】
东郊记忆艺术区升级为文创商业中心,聚集红仓完美文创公园、B站西南总部、腾讯电竞基地等优质企业,形成新青年消费磁场。
【高端居住氛围】
板块内3000亩品质住区汇集品牌开发商,预计新增15万高净值人群,百万常住人口为商业运营提供坚实保障。

【文旅黄金三角】
项目串联大熊猫基地(6公里)与春熙路商圈(7公里),构建"熊猫基地-合信k101-春熙路"黄金旅游动线,打造川渝文旅新名片。

【立体交通网络】
双地铁(7/17号线)+双TOD(二仙桥/八里庄)的交通配置,配合"三横三纵"路网体系。208亩二仙桥公园环抱,形成生态与繁华的完美平衡。
【优质配套资源】
全龄段教育:七中英才、嘉祥外国语等6所优质学府环绕。医疗配套:华西妇儿医院、省第一中医医院等三甲资源。
【27万方商业旗舰】
项目规划热带雨林购物公园、甲级写字楼、精品酒店等多元业态,打造公园城市商业新范式。
【建筑地标】
PANDA PARK以三组玻璃球体构成熊猫造型,创亚洲单层玻璃网壳建筑纪录。


【沉浸式商业体验】
引入热带雨林生态景观,打造彩虹瀑布、穹顶光影秀等十大主题场景,集合全球轻奢品牌,重塑商业空间体验。
【文创演艺标杆】
水上剧场与光影秀构成西部超级文旅IP,101个特色场景带来持续商业活力。
【166米城市地标】
超高层总部大厦采用双色玻璃幕墙,规划奢华酒店与甲级办公,重塑城市天际线。

【24H潮玩街区】
以"2大主力店+4大功能+6大业态"布局,引入米其林餐厅、Livehouse等多元商业,打造不夜城商业典范。

【收藏级商铺】
6米层高临街旺铺,全业态硬件配套,部分带花园露台,满足品牌商家高阶需求。



【精奢LOFT资产】
5.0版LOFT产品以酒店标准打造,2.6低容积率,5800㎡海岛中庭,配备铂金会所等高定配套。
【创新户型设计】
24-34㎡魔法空间,4.2米层高+全景落地窗,创新收纳系统实现空间高效利用。
☎合信k101售楼处电话028-83516246「来电尊享优惠活动」☎
☎【置业经理】:15928896133「微信同步」☎
温馨提示:为了给您提供更高更好的接待服务质量,看房请提前致电售楼处预约!
【有免费看房车接送服务,如需预约,请致电售楼处】