02883516246
位于成都大邑县云上旅游度假区
距离成都仅40分钟,距安仁古镇30分钟
距离青城山30分钟,距西岭雪山80分钟
号称川西旅游环线唯一万亩生态大盘的云上旅游度假区(后文简称“云上”)。

云上旅游度假区实景图
这个项目是否是天堂一样的存在?究竟值不值得购买?
云上旅游度假区
开发商
合景泰富
销售中的物业形态
平层院墅、退台洋房、山景洋楼
占地面积
项目总占地约11000亩
配套
木莲庄度假酒店、金苹果森林营地、云之谷康养中心、社区医院、悠云里商业中心(规划中)、体育公园(规划中)等
老规矩,基于度假项目的特殊属性,我们先梳理出一个好的微度假项目,所需具备的几个硬性条件:
生活方式:度假不是换个地方睡觉,享受悠闲自在的度假生活才是目的;
地段:微度假的地段更强调的是交通的方便快捷,生态环境的优质或者旅游资源的丰富;
配套:度假不是修仙,一切的诗和远方,都是源于物欲需求的品质满足;
可持续运营:长效可持续发展的运维模式,决定未来的发展潜力和价值空间;
产品:适合你的产品,才是值得下手的好产品;
1
生活方式
回归自然
逃离城市喧嚣的好去处
度假类产品的测评,我们将生活方式摆在了首位。
就如前面所说,度假不是换个地方睡觉,享受悠闲自在的度假生活才是目的。
所以现在的项目,越来越擅长于场景营销,目的就在于直击消费者内心的感性细胞。
云上所构建的生活状态是怎么样的呢?
当我走进项目大门时,第一反应是:“在这里晨跑一定很巴适。”
当深入了解后发现,云上,带给我们的除了回归自然的那份放松与安宁,还觉得这个地方竟然这么好玩。
云上,一共打造了十六大景观节点,包含梯田花海、茶语公园、拾光果园、健身步道、业主农场、儿童营地、桃源蹊、闲趣生态园……
这种生活方式,是很多人在疲惫于职场,厌倦于城市喧嚣后,所梦寐以求的诗和远方。



不过需要提醒的是,我们更应理性思考开发商或者后续的运维团队是否有能力,尤其是否能将眼前的营销场景变成未来的生活态度。
这考验的不仅是开发商的实力,更考验团队的运维经验及决心。
据合景泰富官网资料显示,合景泰富集团顺应当下中国文化和旅游的趋势,专注开发文旅特色小镇、打造文化博物馆、蝴蝶博物馆等文旅项目,除了云上外,在其他地方也有多个项目在开发建设中。
2
地段
交通便捷
旅游资源生态资源丰富
度假项目的地段考评不同于市区普通住宅项目,更侧重于交通的方便快捷,生态环境的优质或者旅游资源的丰富。
这是享受前述生活方式的基础。
交通:便捷,5+2毫无压力
首先,既然称之为度假区,尤其是成都周边的微度假项目,关键词就在于“近”、“方便”、“快捷”。
如果时间成本太高,“诗和远方”就真的变成难以成行的远方了。
从地图可以看出,位于大邑的云上,被川西旅游环线、成灌高速与成名高速交叉包围,三条高速大道,组成一张密集的交通网络,不论是通向成都市区还是省外,都非常便捷。
高德数据显示,从天府广场出发,最快不到一个小时车程就可以到达项目。
这样的距离,每周来个成都—云上之间的“5+2”的度假生活,可以说是毫无压力。
旅游资源:丰富
作为文旅度假项目,它的交通无疑是合格的,那它的旅游资源又是怎样的呢?
摊开川西坝子的地图,西北方向,有都江堰、西岭雪山、青城山、街子古镇、烟霞湖风景名胜区和静惠山公园;西南方向,有平乐古镇;东南方向,有安仁古镇;东北方向,则有元通古镇旅游区、白塔湖风景区等。
每个景点的车程都在一个小时以内。
生态资源:理想生活的净土
云上被定位为川西旅游环线万亩生态大盘。
据项目公开资料显示,项目整体占地约11000亩,超8000亩为原生植被覆盖,汇集森林、原山、湖泊、湿地、田园、温泉等诸多自然资源。

据中国天气网官网统计,云上所处的大邑青霞镇,年均空气质量指数40,年均气温14-22℃,年均日照时长1076H,负氧离子8200个/cm3,生态宜人,是理想生活的净土。
这里宏观的生态环境无可挑剔,自然生态令人神往。
3
商业配套
约32亩商业规划中
运营能力大可放心
度假不是修仙,一切的诗和远方,都是源于物欲需求的品质满足。
那么云上的配套如何?
目前云上销售中心所在的云之谷,配备了餐饮、健身房、阅览室、电影院等设施,现已投入使用,后期将作为业主的配套,5100㎡的体量能基本满足现有业主基础需求,但随着项目的持续开发入住以及更多游客的涌入,这样的业态及体量,将不足以支撑业主的日常生活需求。
根据规划,项目将打造集休闲、娱乐、购物、餐饮于一体的占地约32亩的悠云里商业中心。



既然是度假区,就意味着并非长久居住之地,消费客流的不稳定性对未来商业的运营是一个极大的考验。
在国内,商业运营最后半死不活的度假项目不计其数,最终受害者不仅是商业投资方、运营方,还有购买度假产品的业主。
长效可持续的商业运维不仅是度假生活品质的最基础保障,更是项目价值空间的基石。如何长效可持续,这就对项目运营方提出了至高的要求。
云上未来的商业运维,从开发商合景泰富的实力,以及在成都市区的商业运营能力和经验来看,我们还是比较有信心。
公开资料显示,合景泰富一直专注于高品质物业的开发,房地产的开发项目涵盖顶级豪宅、超甲级写字楼、国际品牌星级酒店和大型购物中心等。
现已在国内开业了9座商业项目,其中在成都就有三个,分别是悠方、魔方和瑧林天地。
2021年,在中国房地产开发企业综合实力榜上,合景泰富位列第40名。
2020年,在中国商业地产百强榜上,合景泰富位列第8位。
由此可见,商业资源运营能力和整合实力还是不错的。
4
医疗与教育
一半未知
一半宽心
作为旅游度假项目,除了度假休闲,还有很大一部分客群的购买目的是给父母养老或者未来给自己养老。
同时也因度假项目远离城区,因此除了需要满足日常生活的基础设施外,医疗资源也是必不可少。
在云之谷旁边,项目配备了社区医院,96个床位,可以满足业主基本的医疗需求。
同时还将打造云之谷康养中心,根据他们的构想,这个康养中心由伊东丰雄设计团队主笔设计,引入春雨医生,定制高端医疗服务体系。
大邑人民医院距离项目约8公里,交通相当便捷。
在教育方面,合景泰富集团与金苹果教育集团联合打造了金苹果森林营地。

该营地由日本国宝级教育空间设计师日比野拓亲自操刀,“五育并举”无边界教育学校,涵盖山谷乐园、自然学堂、知识森林等六大教育主题,以自然为师,以万物为友,让孩子在行走中成长。
5
产品
各有千秋
总有一个适合你的
适合你的产品,才是值得下手的好产品。
云上目前在售的产品,分别是平层院墅、退台洋房与山景洋楼。
平层院墅是云上花大力气打造的产品,由中国著名古建筑大师李哲辉先生亲临指导,传承徽派建筑风格,融入川西风韵。

院墅实景图
之所以设计为徽派建筑风格,云上设计师之一的杭州九米总建筑师荣嵘先生说道“中式建筑,更多的是讲究跟自然的结合。用融合的方式,来解决建筑形态与自然的关系。”而山水环绕、曲径幽深的苏派建筑,无疑是与此地最搭配的建筑形式。
庭院0.3的超低容积率,提供了舒适的居住体验。院落与院落之间,错落相连,整片别墅群像极了江南小镇,宁静、悠远。门上贴幅大红春联,大红灯笼高高挂,日子便好像落进了木心的《从前慢》里。

院墅实景图
与慢生活相对应的,购买院子还将赠送菜地,让人进一步融入自然,用身体与土地对话,完全沉浸在怡然自得的节拍里。
在云上的退台洋房产品中,每户都是玻璃幕墙立面设计,户户横厅,线条感强烈,极具现代风格。
产品地处整个项目建设用地的最高点,搭配270°景观露台,观山揽湖,视野效果极佳,地块位置优越。

退台洋房实景图
此外,平层别墅群地块,项目还推出了套二/套三的山景小洋楼。
户型紧凑方正,空间利用率高,价格也非常亲民,50万-80万之间便可以到手,装修交付。

山景洋楼建面约65㎡二居室装修示意图
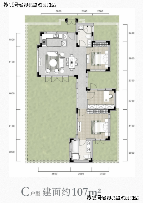
楼盘户型展示
院子户型




退台墅户型鉴赏


项目的物业由合景泰富旗下的香港上市公司广州宁骏负责,曾获中国物业服务百强,因此物业方面不必过多忧虑。
综上所述,我们可以清晰地发现,成为优质文旅项目的条件,云上满足了丰富的旅游资源、优美的生态环境、便捷的交通和实力雄厚的开发商四大点。
那么这样的度假区,在你心中能否算得上接近人间天堂般的存在呢?