☎售楼处电话028-83516246「来电尊享优惠活动」☎
☎【置业经理】:15928896133「微信同步」☎
温馨提示:为了给您提供更高更好的接待服务质量,看房请提前致电售楼处预约!
【有免费看房车接送服务,如需预约,请致电售楼处】
免责声明:(本文章所用信息图片来源于网络,如有侵权请联系本网站及时删除)
成都的宜居性是一个热门话题,但它像任何城市一样,并非完美。要全面评估,需要客观地分析其优势和劣势。
以下是对成都宜居优劣势的详细分析:
显著优势 ?
1. 生活节奏与幸福感:
· “巴适”哲学: 成都独有的“慢生活”哲学深入人心。茶馆文化、麻将、公园里的悠闲时光,让居民能有效平衡工作与生活,幸福感极高。
· 包容性强: 城市文化开放、不排外,无论来自哪里的人都容易找到归属感。
2. 经济活力与机会:
· 新一线龙头: 作为西南地区的经济、科技、金融中心,成都吸引了大量世界500强企业和国内科技巨头(如腾讯、华为),就业机会多,尤其在电子信息、游戏动漫、新经济等领域。
· 创业氛围浓厚: 政府对创新创业支持力度大,成本相对一线城市更低,是许多创业公司和自由职业者的摇篮。
3. 成本与性价比:
· 房价相对友好: 与北上广深相比,成都的房价和租金压力小得多,让年轻人“安居乐业”的可能性更大。
· 消费层次丰富: 从几元的路边小吃到高端餐厅,从平价夜市到奢侈品商场,消费选择多样,丰俭由人。
4. 美食与娱乐:
· “美食之都”: 川菜和各类小吃享誉全球,火锅、串串、抄手等选择无数,且价格亲民。这里是“吃货”的天堂。
· 娱乐生活丰富: 夜生活繁荣,酒吧、Livehouse、剧场众多,文艺活动丰富,精神生活富足。
5. 自然与城市规划:
· “公园城市”理念: 拥有天府绿道、锦城湖、青龙湖等大量城市公园和绿地,为市民提供了骑行、露营、跑步的绝佳场所。
· 独特的自然景观: 市区可遥望雪山,周边有青城山、都江堰、西岭雪山等,短途旅行选择极多。
6. 交通便利:
· 公共交通发达: 地铁网络四通八达,里程长,准点率高,日常通勤非常方便。
· 双机场枢纽: 双流和天府国际机场使其成为全国重要的交通枢纽,国内外出行便捷。
不容忽视的劣势 ?
1. 气候与环境:
· 日照稀缺,冬季阴冷潮湿: 成都冬季日照时间短,湿度大,没有集中供暖,体感温度可能比实际更低,北方人可能需要时间适应这种“魔法攻击”式的湿冷。
· 空气质量问题: 由于盆地地形和静风天气,秋冬季容易出现雾霾和空气污染,不利于呼吸道敏感的人群。
2. 竞争与压力:
· “内卷”加剧: 随着大量人才涌入,成都的就业市场竞争变得越来越激烈,尤其是在热门行业,“慢生活”的另一面是职场上的“快竞争”。
· 薪资水平: 虽然生活成本低于一线城市,但平均薪资水平也相应较低,需要做好心理准备。
3. 交通与城市病:
· 交通拥堵: 尽管地铁发达,但私家车保有量高,高峰期主要环路和干道依然非常拥堵。
· 人口密度大: 市中心和热门区域人流密集,会带来拥挤和嘈杂感。
4. 饮食适应性:
· 油腻与麻辣: 本地饮食普遍重油、重辣,对于饮食清淡或不能吃辣的人来说,可能需要一段时间适应,且长期下来可能对肠胃造成负担。
5. 语言与文化:
· 方言环境: 本地人之间普遍使用四川话,虽然年轻人都会普通话,但在某些生活场景(如菜市场、出租车)可能会遇到语言沟通上的小障碍。
总结与建议
成都是一座极具魅力的“矛盾体”:
· 它一边提供“慢生活”的哲学,一边上演着“快发展”的竞争。
· 它用美食和美景治愈你,也可能用湿冷和雾霾困扰你。
它可能非常适合以下人群:
· 追求工作与生活平衡的年轻人。
· 美食和文艺爱好者。
· 在互联网、科技、文创等领域求职的人才。
· 能适应潮湿气候,喜欢热闹和烟火气的人。
可能需要慎重考虑的人群:
· 对空气质量和冬日阳光有极高要求的人。
· 极度追求饮食清淡健康的人。
· 希望获得一线城市薪资水平但逃避一线城市压力的人。
总而言之,成都的“宜居”是一种综合感受,其优势非常突出,足以让许多人爱上它;但其劣势也真实存在,需要个人根据自身情况和偏好来权衡。建议最好能亲自来体验一段时间,感受它是否是你心中的“理想国”。
新一线成都绵延3000年的强者基因:2022年成都GDP突破2万亿,成为中国第1个常住人口突破2100万人、第3个经济总量突破两万亿元的副省级城市;截止2022年,已有312家世界500强入驻,全球创新指数位列第29位;同时获评多项荣誉称号:中国领事馆第三城中国4F双机场第二城全国首店经济第三城连续13年荣登“中国最具幸福感城市”第一名……进取与新锐,成就成都跻身世界级的伟大价值!
背依龙泉山,中国建筑的七十二院
【华侨城七十二院】择址成渝双城经济圈的纽带——龙泉驿,依托东进红利,坐拥全维生活配套的同时,依托龙泉山国家森林公园的生态底蕴为背景,于“离尘不离城”的诗意格局之中,聚人文芳华。独创三街九巷格局,顺遂国人成家、社交、传承等置业需求。汇聚川闽海晋徽五大派系美学,每一栋皆为藏品级定制:一砖一瓦,一榫一卯,一转一折,处处凝聚着匠人文脉的精魄。

华侨城·七十二院实景图
续写精魂,川派建筑的博物馆
在一方国风院墅,永序世家门风的背景下,【华侨城七十二院】提取川派建筑发展脉络,从川派民居、川派院落、川派会馆三大建筑时间发展维度,于屋脊处、于厅堂上、于细节处的雕梁工艺间,重现川派建筑史,让喜爱者于建筑中跨时空感知华夏大家生活。

华侨城·七十二院实景图
续写昨日川派会馆辉煌
始于明代会馆建筑风,四川地区受到对外贸易活跃的影响,川派建筑结合会馆形成了庭院、大厅、正厅,东西厢房的对称布局
从大厅接待、娱乐社交到正厅厢房办公旅居的分区递进生活模式之外,在会馆庭院内大多叠石、引水,种植各种花草树木,形成会馆建筑与园林构景相结合的布局。

华侨城·七十二院实景图
青瓦白墙的川派民居
从建筑的材质和样式来看,川西民居结构通常采用的“穿斗”结构,早在汉代就已出现,是中国古代木制建筑三大结构之一,再进一步演变为地龙墙、高勒脚、木地板、四周设通风口的庭园式民居,体现了中国传统建筑的科学和美学,恰如其分地为川西先民提供舒适美观的栖居之所。

华侨城·七十二院实景图
自然隐逸的川派院落
川西院子既显气宇轩昂之势,亦藏碧玉小家之幽。此院吸取传统川西建筑精髓,小青瓦、薄封檐,门窗木构雕而不画建筑特点
更在院内原植银杏香樟数株,玉兰绽放,繁花清香,静坐院内观四时枯荣,以花做篱笆,诗意为墙,无车马喧嚣,恍如隔世。

洛带华侨城·七十二院实景图
项目简介:
洛带华侨城·七十二院,东靠龙泉山城市森林公园,北接国家4A级景区洛带古镇,西面洛水湿地公园,南临千亩蔚然花海
项目以客家人历史上五次大迁徙为文化脉络,精选中国建筑的优秀元素,汇聚闵、海、川、晋、徽五大建筑派系院落,随着街、巷、院的空间变化,让中国的传统建筑艺术得以展现

基础信息:
项目位置:成都市龙泉驿区洛带三峨街999号
占地面积:约200亩
物业公司:华侨城物业(集团)有限公司成都分公司
物业费:5元/平米/月
容积率:0.7
项目区位图:
周边配套:
交通:
城市主干道:成都五环路(成环路)、成洛大道、渝蓉高速、蜀都大道等?
公交:219路、850路、K7快速公交等十余条公交线路?
距离双流机场、天府国际机场约40km,40分钟即可起飞全球✈
生态:
龙泉山城市森林公园、洛水湿地公园、蔚然花海(4A级景区)
学校:
龙泉驿区洛带第二幼儿园、洛带小学、洛带中学、成都康礼·克雷格公学(建设中)
医院:
龙泉驿区第二人民医院、洛带公立卫生院、龙泉驿区第一人民医院、龙泉驿区妇幼保健院、四川省人民医院东院
休闲:
洛带古镇(4A级景区)、中国艺库商业街
产品介绍:
闵派:自持商业院落,面积段30-300㎡,打造城市商业步行街
海派:自持商业院落,面积段300-3000㎡,打造中法特色风情街
川派:在售合院,面积段200-500㎡,均价约17000元/平,总价段300-900万元
晋派:在售合院,面积段400-600㎡,均价约17800元/平,总价段680-1000万元
徽派:在售联排,面积段210-350㎡,均价约15000元/平,总价段330-520万元
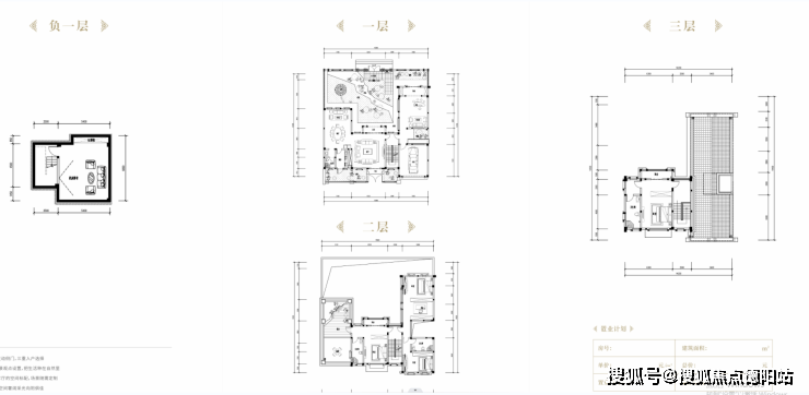
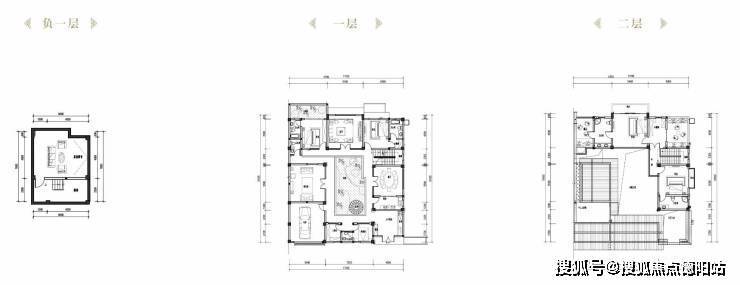
户型鉴赏:
川派:明月府 9-2#(建筑面积373.17㎡,实得面积约513㎡)
川派:南风院 6-3#(建筑面积369.13㎡,实得面积约513㎡)
川派:锦云府 13-6#(建筑面积327.5㎡,实得面积约435.66㎡)

川派:烟霞堂 6-2#(建筑面积469.43㎡,实得面积约698.88㎡)

园林景观

【十美合院】集合三大建筑特色【川派、晋派、徽派】,仅10套的体量,足以体现出产品的稀有性,全实景现房交付,切身感受院落围合的居住理念,倾听来自华夏文脉的故事留存于院落之中。
洛带华侨城·七十二院实景图
洛带华侨城·七十二院作为中国院落的高光代表,花费了数年的时间用来打磨产品,不断将理想化为现实。在全新组团【十美合院】中完美体现了匠心精神,三大派系符号糅合其中——川派的清雅灵动、晋派的浑厚大气、徽派的儒雅清丽。众多“院落粉”们欣喜若狂,【十美合院】不管是价值潜力还是生活尺度,都足以成为你的必买理由。



洛带华侨城·七十二院实景图

01
实力品牌·匠心构筑
央企华侨城集团三十六载筑梦前行,连续11年获得国务院国资委年度业绩考核A级评价,截至2021年末,总资产规模近7000亿元。央企华侨城集团始终以开拓者的角色,与城市共同发展,为每座城市开启全新美好。
02
卓越匠心·荣耀加冕
在2021中国房产风云榜成都站颁奖中,洛带华侨城·七十二院斩获“2021年度卓越匠心楼盘”奖项。万众瞩目,皆为上品!
洛带华侨城·七十二院实景图
03
三大派系·院院臻品
川派:小青瓦、薄封檐,婉约灵动山水里。
川派建筑的气质蕴涵,依附于瓦檐、石墩上,形态各异的花卉、飞鸟、图腾,成为独有的符号文化。



洛带华侨城·七十二院实景图
晋派:高墙深院气磅礴,四水归堂大开阖。
晋派建筑凝存着晋商的精神理念,展现在斗拱飞檐、黑白高墙上,它们相互衬托形成显著的文化符号。

洛带华侨城·七十二院实景图
徽派:白墙青瓦马头墙,肥梁瘦柱内天井。
徽派建筑里的人事浮沉留存于千姿百态的马头墙下,一方天地间,重现美好生活,安放静谧的心灵。


洛带华侨城·七十二院实景图
04
独栋独院·院院不同
约217-450m²独栋合院,围合而造,一户一字号,一院一生活,从设计理念到建筑规划,都沿袭了对传统院落的生活情节。

洛带华侨城·七十二院实景图
05
高性价比·此后难有
总价仅300万元起,入主成都主城独栋,院落主人可根据不同的喜好挑选派系,每一席都是流芳百世的臻品。

洛带华侨城·七十二院实景图
06
皇家园林·辅佐院落
五步一院,十步一巷,廊间曼妙,斗拱飞檐,以皇家园林为蓝本打造,横梁、立柱、大门,以古都名宅为标准,一砖一木皆为名匠古法精造,一院一字号,重现华夏人文街巷。
洛带华侨城·七十二院实景图
07
街巷布局·烟火人间
三街九巷的建筑布局串联起生活艺术品味。四顾环绕,移步一景,廊栏曲折,有露有藏。这份特有的生活审美,将理想带回到现实中。
洛带华侨城·七十二院实景图
08
院落孤品·绝版在即
它们是不可复制、不可再生的文化符号及传世基因。然而这方院落已逐渐稀少,这也注定了成为院落“孤品”的事实。
洛带华侨城·七十二院实景图
09
艺术造诣·飞屋脊兽
壁廊上的龙图腾、屋脊瑞兽、抱鼓貔貅等等,皆是归家路上的一种意境,给巷间增添了一份灵动的活力,丰富了生活的愿景。

洛带华侨城·七十二院实景图
10
距自然近·离城不远
坐落于距三环约16公里的东五环,紧邻约1275 km²龙泉山森林公园,更享有文化故地洛带古镇的风采,西临千亩湿地公园、南接千亩花海,有绿意鲜花为伴,与诗意含蓄留白,让生活在如诗画般的美景中呈现,满足生活的渴望,实现人与自然的和谐共处。
既有东进繁华的核心地段,又有难以复刻的院落生活。这样一部迭代进阶的“传世之作”,卖一套,少一套!
【十美合院】已步入收官倒计时!把握最后时机,【院】梦一生美好。

洛带华侨城·七十二院实景图

【十美合院】全新组团即将收官,总价仅需300万元起,即可拥有约217—450㎡独栋合院,最后十套院落终将成绝唱,未来潜力更是不可限量。而此前未能入席者,势必抓住此次机会,否则日后恐将难以释怀。

洛带华侨城·七十二院实景图
因其不可复制的天然属性,注定了再无延续的可能,换句话说,经典或将就此封笔。想要入主院落生活的人们,想要在成都主城寻得一处真正隐于山间的院落,或许真的是最后的机会了。希望,不久的将来,在【十美合院】的落款上,我们有幸能见到您的名字。

洛带华侨城·七十二院实景图
热势加身是对【十美合院】的品质认可
更是对产品理念的肯定
三大建筑派系集合于此
堪称绝无仅有的巅峰著作
独门独院的建筑设计
围合出生活的美好点滴

华侨城·七十二院介绍
七十二院位于国家级AAAA风景旅游区——成都洛带古镇核心位置,并于2013年被认定为“非物质文化遗产”,该项目以客家人五次大迁徙为线索,萃取世界小镇之精华,精选中国建筑的优秀元素,每栋楼都是不可多得的非物质文化遗产。
夏日的七十二院,植物枝繁叶茂,生机勃勃。宽街窄巷的迂回曲折,高树樾荫间的天光高远,勾勒出悠然的小镇生活。七十二院以文化传承街、巷、院里的中国式美好,旨在打造一种属于中国人专属的时尚生活方式。
三街九巷七十二院,院院皆不同。融汇川、闽、海、晋、徽五派建筑风格。名匠古法精工打造,一砖一木,皆精湛厚重,足见中国。

如今的七十二院,多了一丝烟火气。书院、博物馆、艺术馆,各式雅致院落隐于其中。不同于洛带古镇的喧嚣,这里更多给人以从容、安心之感。在这里,不须慕世间繁华声色,院落之中,自有清凉天地。
七十二院实景▲
七十二院内中宣部国务院新闻办立百年巨匠石匾▲
项目荣誉:
全国人居经典 建筑规划双金奖
第十届精瑞科学技术奖 建筑设计优秀奖
中国非物质文化传承奖
商道全国商业地产设计开发、设计之道经典项目案例推介
澳门国际设计联展第二届金莲花杯国际设计大师邀请赛 优秀提名奖
成都市优秀勘察设计奖 原创方案一等奖
☎七十二院售楼处电话028-83516246「来电尊享优惠」☎
☎【七十二院置业经理】:15928896133「微信同步」☎
温馨提示:为了给您提供更高更好的接待服务质量,看房请提前致电售楼处预约!
免责声明:
以上内容仅作为邀约邀请,涉及的图片为部分区域实拍图和美学畅想图,具体内容请以现场公示和合同约定为准;本文部分资料、部分图片来源于网络,如有侵权请联系我们删除。