?售楼处电话028-83516246「来电尊享优惠活动」?
?【置业经理】:15928896133「微信同步」?
温馨提示:为了给您提供更高更好的接待服务质量,看房请提前致电售楼处预约!
【有免费看房车接送服务,如需预约,请致电售楼处】
成都现在房产市场三级分化,第一类是核心资产,止跌横盘或小幅上涨都有,补涨的苗头已经出现了,这类资产受大环境影响很大,也是市场风向标,随时被人关注。
第二类是优质产品,表现不一,涨跌幅取决于之前的价格泡沫大小,像北门几个改善楼盘涨跌就很小,没有大涨过自然不会大跌,而以天新为代表的新开发区域、次新盘往往入市价格偏高,止跌压力比较大。
第三类是完全丧失流动性的小区,集中在五城区,只有居住价值,一年成交几套,探讨涨跌意义不大,成交数据比较偏离真实市场情况。
2024年成都新房市场趋向高改化:成交主力面积段为120-144㎡,成交主力总价段为200-300万。其中,建面180㎡以上新房供应总量约为255万方,成交总量约为258万方,为成都新房市场成交次主力。
二手房成首置、首改家庭主阵地:2024年大成都二手房成交主力面积段为90㎡以内,成交次主力面积段为90-120㎡,建面120㎡以内中小户型的成交套数占比超八成,这说明在成都购买二手房市场的家庭,主要住房需求为首次置业或者首次改善;
根据2024年大成都二手房成交价格来看,总价两百万以内的房源成交占比接近九成,这说明活跃在成都二手房市场的家庭购房预期价格普遍在两百万以内。据CRIC数据,11月成都二手房成交规模居全国重点52城之首,远高于上海、北京,约为广州+深圳单月二手房成交总量的1.65倍。
成都二手房成交量之所以能领先于其他城市,一方面是因为卖旧买新的置换群体日渐增多,促使二手房挂牌量持续增加。
关键是成都对四川川内具备天然的人口吸附能力,城市首位度居全国第四,一城GDP占全省36.7%,仅次于银川、西宁、长春三市。
其二是人口流入在全国处于中上水平,考虑到成都已经有超2100万常住城市人口,这个数据也是很亮眼的。
第三是新房大幅度缩量,购买力转向二手市场,特别是总价400万以内这部分需求,在主城供应量正在减少。

对于2025年成都的房产走势,预测如下:5+2区域全年只卖了31宗地,新房库存见底,多个200㎡+户型曝光,大户型成明年新房供应主流。
房价=土地取得成本+开发成本+管理费用+销售费用+投资利息+销售税费+开发利润等。其中土地是有限资源从来没有降过而是一路高歌猛进,一大群建设者的工资一年比一年高,以上影响房价的任何一个因素都没有降过,所以除了抖音里面的房子在降价,自己也不希望买到的房子降价,万物生长才是欣欣向荣。如果政策上再利好一点,比如限购松一点点,贷款利率下浮一点点,提升城市形象的活动或会议来一两个,各种配套逐渐呈现,城市人口再增加一点点,房价就会随着市场的升温而加速上扬,越是宜居宜商法治的城市的房子越是不会降价,即使几十年后可能会降价,到那时买了也没用!这里套用那句名言“买房无技巧全靠买的早”我真不希望多年以后再见时提起那句话“当初该听你一劝”
有的人说公寓40年不好,除了不能上户和税费略高一点外有什么不好?从投资的角度说小户型公寓反倒比住宅受益更高。目前成都二圈内层还能找到200万的普通住宅可以说没有,就算找到了,200万就一套而已,而200万可以买5套单价40万的公寓,每套月收租金2000元,一个月得收租金5*2000=10000万。谁能200万买到月租金10000元的普通住宅,所以今天给您推荐的这个项目既适合投资也适合过度性的居住。

项目名称:碧桂园·海德ONE99
占地:56.7亩
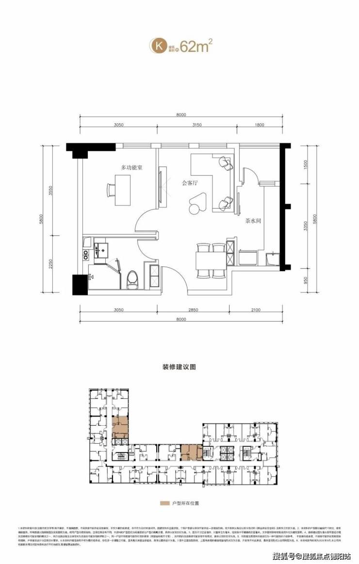
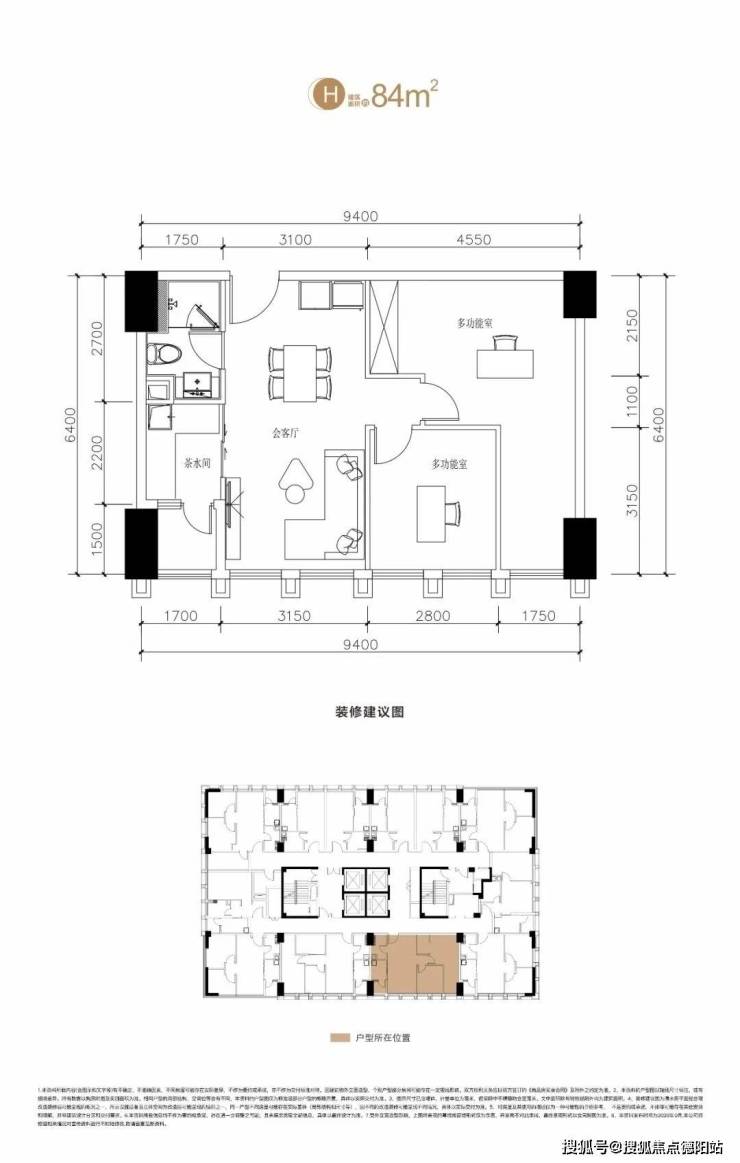
户型:标间(43—52㎡)/套一(62—67㎡)/套二(67—87㎡)/套三(84—120㎡)
公摊:25—30%
交付:精装
总户数:2457户
单价:8400—9000元/㎡
总层高:23F—32F
层高:3米
绿化率:20%
梯户比:6T24/4T12
开发商:碧桂园
物业费:2.4元/㎡
物业公司:碧桂园物业
交房时间:2023年11月
付款方式:按揭、全款、支持首付分期、全款分期

项目区位——位处新一线城市,成都市双流区的杨柳湖城市中心,功能定位为双流城市主中心,以军民融合产业园、成都芯谷为支撑,正在逐步建设成为双流的行政中心、经纪人中心、文化中心,享受城市升级、产业繁盛、宜居宜业的城市红利。
随着杨柳湖城市中心的规划和发展,现已有双流区委党校、 社保局、建设局、规划局、档案馆、图书馆、双流体育馆等市政配套,均落成于此。


成都芯谷——中国西部唯一的千亿芯片产业园,中国集成电路增长的新一级,是杨柳湖城市中心的重点发展产业,未来将打造成为比肩美国硅谷、武汉光谷的国家级产业新区。成都芯谷占地21平方公里,现已签约入驻60余家公司,总投资超128亿,预计将容纳45万高精尖人群,现已华大北斗、中国科学院微电子研究所、中电九天、澜起科技、中发建设等名企入驻,未来将形成产业汇聚、人才汇聚、商业繁荣的经济区。


城市级轨交站点——彭镇TOD ,距离项目200米,与春熙路、天府广场等城市轨交站点串联,无缝接驳城市繁华商业区。同时区域内有地铁14号线和17号线,通达市区及城南核心区,区域未来人口繁盛,发展潜力巨大。


教育配套——双流区域内有三所四川省一级示范高中,其中全国师资排名前30的棠湖中学,距离项目仅8分钟车程,同时临近项目有普瑞斯新蒙国际幼稚园,双流艺体中学,棠湖小学、双流实验中学以及英国酒大公学之一的威斯敏斯特国际学校等,师资力量雄厚,教学质量好,满足全龄段孩子的教育需求。

医疗配套——完善的医疗体系是一个优质项目不可或缺的,距项目约1公里就有“三级甲等医院”——双流中医医院,3公里范围内还有双流县医院,双流区妇幼保健院,双流第一人民医院等,为您和家人的身体健康保驾护航。


商业配套:项目自建约8万方叠水潮流商业街——海德广场,以餐饮、娱乐、零售(电影院、生鲜超市)、儿童五大业态,打造集娱乐、购物、休闲为一体的商业街区,是继海滨城、优品道广场、万达广场后的双流第四大商业街,繁华生活荟萃于此。


自然资源——距离项目700米有1100亩的杨柳湖公园,距离项目2公里有全亚洲最大的湿地公园,8500亩湿地公园,尽享天然氧吧的负离子生活。

项目核心价值:
【艺术美学园林】
采用奢美的玻璃水景、花园辅道、林荫夹道,形式花香漫步路,同时将空间设计巧妙嵌于园林景致中,营造露天电影、全民瑜伽、乐跑环道等休闲空间,让景观同生活空间相融合,形成多功能阳光会客厅,满足业主的不同需求。

【社区共享中心】
为丰富业主的会客、社交场景,项目打造多重园区配置,包括 :自取自享的共享书吧、畅享购物新体验的无人超市、打造多人用餐环境的公共厨房、随心洗涤衣物的公共洗衣房,为业主构建社区场景化生态圈,满足业主对美好生活的向往。

【智能化社区】
为了给业主提供舒适、安全、智能的社区环境,项目打造科技智能管理平台,通过人脸识别开门、电子巡更系统、电子脉冲围栏、云可视对讲、社区云监控、访客管理等,360°覆盖园区安全。

【精装智能化配置】
项目配置四大精装科技配置:1、 指纹密码锁;2、 智能马桶;3、 电动窗帘轨道;4、中央空调(标间为壁挂式),同时装修主材均甄选一线品牌,如:蒙娜丽莎的地砖、大自然的木地板、嘉宝莉的乳胶漆、玉兰的墙纸、西门子的开关面板、摩恩的水龙头等等,为业主营造舒适的居住空间。



△以上图中标注内容均为精装交付配置
【TOP1星级物业】
项目采用碧桂园的自有物业,是中国物业服务百强企业的TOP1。项目特设海德管家式服务,给予客户一对一的贴心服务,为业主提供最贴心的归家礼遇。同时定期组织丰富多次的睦邻社交活动,营造和谐美好的社群氛围。

项目户型图
六大购买理由:
1、零门槛买入新一线城市——双流区主中心
2、近享千亿产业园发展红利——成都芯谷
3、便捷的城市级轨交站点——彭镇TOD
4、城市级商业地标,第四大商业街——海德广场
5、标间/套一/套二/套三全面积段产品,满足所有需求
6、总价38万起,清水价买超高性价比类住宅
?售楼处电话028-83516246「来电尊享优惠活动」?
?【置业经理】:15928896133「微信同步」?
温馨提示:为了给您提供更高更好的接待服务质量,看房请提前致电售楼处预约!
【有免费看房车接送服务,如需预约,请致电售楼处】